查看完整案例


收藏

下载
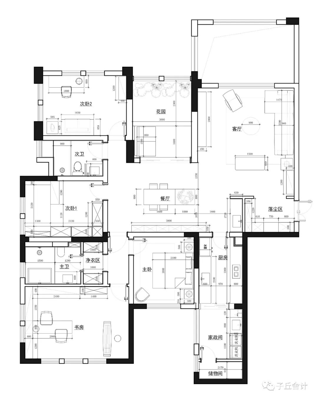
面积:180m²
风格:现代
户型:套四双卫
项目地址:成都
设计主创:王兴波
需要一个大书房,老人偶尔上来住,喜欢简单温馨。
原始结构图
平面布置图
入户玄关
进门首先封闭挂衣区,回家脱下衣服放进去收纳起来。如果吃了火锅,可以在卡座区临时挂一下去一下味,再放入挂衣区。卡座稍微做宽一点,回来公文包可以直接放在上面。做了一排抽屉,可以分类放消毒液等回家用品。最底下一排是一个夹抽屉,里面放一个垃圾桶,拆完快递可以放垃圾。
客厅
客厅
电视墙刷乳胶漆
偶尔投影看大片
餐厅中岛跟餐桌一体化设计
餐厅
餐厅
餐边柜
西厨扫地机器人暗藏设计
花园
花园
书房
书房
书房
厨房
厨房
主卧
次卧 1
次卧 1
次卧 1
次卧 1
次卧 2
次卧 2
主卫
主卫
次卫
家政间
菁萃里精装改造--宇宸的家啊
复古混搭完工手机记录
45 平方米一人居公寓完工手机记录
祥域温馨小筑,张弛的家啊
精装房猪肝红改造
泰悦湾精装软装改造,言狩&鹏鹏的家啊
海伦春天,260 平刚需设计
南山御峯,毛毛的家啊
菁萃里精装房软装搭配奶噗噗的原木奶油暖居,胡鑫的家啊
铲屎官的温馨小窝,耀匀的家啊
皓璟的家啊,83㎡奶油原木暖居
桂桂的家啊,看 26 平米公寓变身梦幻两居
宇皓的家啊
乔一的家啊
青姐的家啊
马哥的家啊
龙湖揽境黑白灰
郭帅的家-奶油复古风
谭姐的家啊
中南海棠集
山城原木风
龙湖揽境法式
边城水恋
麓湖公寓
2013 苹果店设计
恒信友邦家具设计
绵阳升达家具卖场
乐山棠颂府
面(蒙德里安)
线(圣地亚哥.卡拉特拉瓦)
点(草间弥生)
荷兰风格派
色彩基础知识初探
设计史
客服
消息
收藏
下载
最近
































