查看完整案例


收藏

下载
Casas, Interiroes De Casas, Mondaí, Brasil
设计师:Cuboverde Arquitetura Sustentável
面积:352 m²
年份:2017
建造商:Cebrace, AutoDesk, Isover, Maccaferri, Trimble, Weber
负责建筑师:Albert Koelln
设计团队:Greice Machado Lorscheiter
工程:Julio Cardinal
设计师描述 | Designer description:
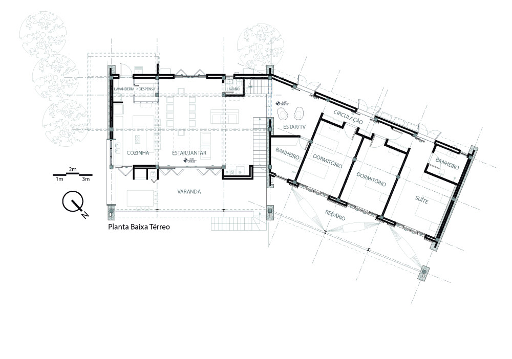
Essa residência foi projetada para uma família que gosta de ser anfitriã de amigos e parentes. São 500 Km entre a residência dos clientes e o local onde eles construíram essa casa de férias, na cidade da matriarca da família. O desafio foi projetar uma edificação que reforçasse as raízes familiares com a terra de seus ancestrais, utilizando a arquitetura para motivar as novas gerações a continuarem percorrendo tamanha distância. Conceitualmente, a residência é composta por três grandes planos de pedras que estruturam e configuram toda a espacialidade. A edificação foi concebida de forma “espalhada” no grande terreno e o plano central de pedra separa a área social da íntima, garantindo que eventos diferentes pudessem acontecer simultaneamente sem ferir a privacidade dos moradores.
Com 352,90m² de área, a edificação propõe um contraste entre o rústico e o arrojado, combinando harmonicamente as pedras típicas da região com a estrutura metálica. Tendo como conceito primeiro a verdade dos materiais, o tijolo à vista e a madeira utilizada nas estruturas do telhado e mezanino completam a materialidade do objeto arquitetônico. “Nesta casa, a sustentabilidade completou o seu tripé social, qualificando a equipe e trazendo ensinamentos que transcendem uma única obra.” Mesmo com a abundância da pedra ferro na região de Mondaí-SC, sua utilização limitou-se à construção de taipas e muros em propriedades rurais. Mauro Wolf era um desses construtores que trabalhavam a pedra de maneira mais rústica. Porém, para esta obra, recebeu treinamento para trabalhar com prumo, nível e aperfeiçoar a sua técnica a fim de levantar as paredes de pedras que norteiam este projeto. Após esta obra Mauro ganhou notoriedade na cidade e passou a ser solicitado para construções maiores e mais sofisticadas.
“Quando o Sítio fornece os principais materiais que irão compôr o edifício que sobre ele se erguirá, aí temos um verdadeiro exemplo de Arquitetura Sustentável” A maioria dos materiais brutos da construção foram oriundos do próprio terreno ou proximidades. As pedras vieram da própria escavação do terreno. Grande parte das madeiras da estrutura do telhado e mezanino vieram da plantação de pínus feitas 10 anos antes, já pensando na futura construção. Os tijolos das bancadas e paredes são de uma antiga olaria desativada da família. O total de CO² que deixou de ser emitido pela utilização dos materiais encontrados no terreno e capturado pelas árvores plantadas para a construção, equivalem há 486 árvores capturando CO² no período de 10 anos.
项目完工照片 | Finished Photos
设计师:Cuboverde Arquitetura Sustentável
分类:Casas
语言:葡萄牙语
阅读原文
客服
消息
收藏
下载
最近



























