查看完整案例


收藏

下载
—寓尚设计&泰瑞软装 · 致敬每一位生活大师—
公司地址:宁波市鄞州区潘火路197号寓尚设计&泰瑞软装(和荣大厦店面)
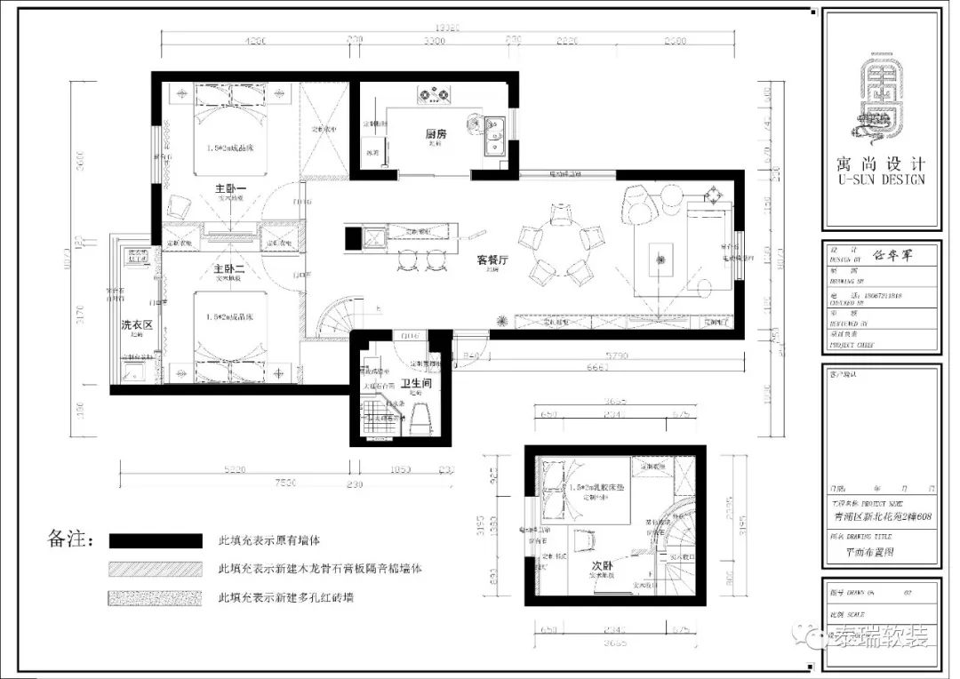
作品名称:让你的目光所及都能有我
项目地址:上海青浦区新北花苑
项目面积:94m²
全案落地实现:寓尚设计 & 泰瑞软装
室内设计单位:寓尚设计
软装设计单位:泰瑞软装
总设计师:任华军、陶栋
参与设计:岚戈
撰文:陶栋
-
本案的实际使用面积不足一百平方米,房子是上世纪90年代建造的,为了方便父母居住,想好好改善一下这套承载了业主及儿子十多年回忆的老房子。
The actual use areaof this case is less than 100 square meters. The house was built in the 1990s.In order to make it convenient for parents to live in, I want to improve thisold house which bears the memories of the owner and his son for more than tenyears.
-
开始这次设计之前,我们在想,这样的小空间要满足可以容纳3代人的住宿,这次的作品中又能送给他们怎样的惊喜与人文关怀呢?那就让一家人的相伴变得更紧密且无形吧,空间功能设置上,做家务等事情的时候,能让目光所及都有爱人的身影相伴。
Before we started this design, we were thinking that such asmall space should be able to accommodate three generations of people. What kindof surprise and humanistic care can be given to them in this work? Let's makethe family's company more closely and invisible. When doing housework and otherthings in the space function setting, you can have your lover's shadow with youas far as you can see.
-
在户型上为了改变老房子一进大门就能看到所有区域的门的情况,先把卧室的门内退,外走廊使卧室区域相对处于静区,同时客餐厅的空间也有所拓展。一进入户门通过2个造型屏风的设置把玄关分隔出来,也解决了进门见灶的忌讳。西厨岛台的设计拓展了小厨房的空间局限,也让整个公共空间的动线更合理。
In house type, inorder to change the situation that the door of all areas can be seen as soon asthe old house enters the gate, the door of bedroom shall be retreated first,the outer corridor makes the bedroom area relatively in the quiet area, and thespace of guest dining room is also expanded. A door into the door through thesetting of two modeling screens to separate the porch, but also solved thetaboo of entering the door to see the stove. The design of the West kitchenisland platform expands the space limitation of the small kitchen, and alsomakes the moving line of the whole public space more reasonable.
-
客餐厅原房型窗户窗台过高,所以对客餐厅的2面高窗做了拉长设计,窗套拉长落地,窗台下方做了镜面处理,使原窗户的轮廓变大。空间层高比较低,所以对于客厅结构梁的处理也是一个亮点,即不占层高又有造型与灯光的结合。中央空调在顶里面的位置,设置在了入座的沙发上方,保证了使用高度舒适之外也让整个出风效果在整个公共空间达到最快速无死角。
The original windowsill of the guest restaurant is too high, so the two high windows of the guestrestaurant are lengthened. The window cover is lengthened to the ground, andthe mirror surface treatment is done under the windowsill, which makes theoutline of the original window larger. The space floor height is relativelylow, so the treatment of the living room structural beam is also a bright spot,that is, it does not occupy the floor height and has the combination ofmodeling and lighting. The central air conditioner is located on the top of thesofa, which ensures the high comfort of the use, and also makes the wholeventilation effect reach the fastest speed without dead corner in the wholepublic space.
客餐厅区域的划分以及家具的设置,让小空间也具有比较强大的会客入座的功能。一家人晚饭后聚在客厅共同看部电影或者聊一聊天,又或者接待三五好友家里来喝个下午茶,一点不成问题。
The division ofguest dining area and the setting of furniture make the small space have morepowerful function of meeting guests and sitting down. It's no problem for afamily to gather in the living room after dinner to watch a movie or chat, orto receive three or five friends to have afternoon tea.
-
对于小户型,生活细节的设计尤为重要,进门的换鞋凳挂衣功能,鞋柜,电视柜,储物柜功能都有序的做到了最大化。
For small houses,the design of details of life is particularly important. The function ofchanging shoes, hanging clothes, shoe cabinet, TV cabinet and storage cabinetin the door are orderly maximized.
中央岛台的设置,还希望平时大厨的活动区域变得更轻松和有爱,一边做餐前准备,一边陪伴在客厅休憩的亲人身边,不知不觉中让你的目光所及都能有我。
The setting ofcentral island station also hopes that the activity area of the chef willbecome more relaxed and loving. While preparing for dinner, you can accompanyyour relatives who are resting in the living room, and unconsciously let youreyes have me.
-
一层的2个卧室里面的柜体空间也都做到了最大化,不仅拥有了美观也方便了生活。父母卧室和主人夫妇卧室即色调统一又有风格的变化,来适应不同年龄层的喜好。
The cabinet spacein the two bedrooms on the first floor has been maximized, which not only hasthe beauty but also facilitates life. Parents bedroom and master couple bedroomare unified and have style changes to adapt to different ages.
-
阁楼设计成了儿子的卧室空间,整体做了更轻盈自然的配色,踏着设计感强烈的红色楼梯走上二楼,让身体能最大程度感受到放松。原来用作储藏空间的区域陡然间就焕发了新生,也让整个原来古板老旧的户型变的活泼有趣。
The loft isdesigned as the son's bedroom space. The overall color matching is more lightand natural. Walking on the red stairs with strong sense of design to thesecond floor, the body can feel relaxed to the greatest extent. The originalarea used as storage space suddenly coruscate new life, but also let theoriginal old house type change lively and interesting.
好的设计能让空间得以重生,让家庭关系无形中变的更融洽有爱,设计就是有这样的力量。
Good design can regenerate the space and make the familyrelationship more harmonious. Design has such power.
— 设计师简介 —
任华军
寓尚设计(U-SUNdesign)创始人/首席室内设计总监
泰瑞软装(TERRIdesign)联合创始人
宁波建筑装饰行业协会设计分会会员
毕业院校: 97年毕业于浙江纺校装潢设计专业
设计专长: 室内设计、平面设计
设计理念: 实用是生活,风格是气质,通过对空间的
布局设计有气质的生活!
服务介绍: 在全国范围内,我们针对别墅、大平层等
高端私宅以及高端工装项目,为业主提供
高质量的室内全案设计以及专业化实施服
务。
荣获最新奖项:
2018-2019 40 UNDER40 中国(宁波)设计杰出青
年
2017 《青木筱居》荣获红鼎奖--住宅空间类
TOP10
2016-2017 年度中国室内设计50强杰出青年设计师
陶栋
泰瑞软装(TERRI design)创始人/首席设计总监
寓尚设计(U-SUN design)联合创始人
注册高级陈设艺术设计师----国际建筑装饰室内设计协会认证
宁波市建筑装饰行业协会软装分会理事
宁波市建筑装饰行业协会设计分会会员
宁波“君雅十尚”软装设计团队成员
从业经验: 14年
设计专长: 整体创意概念设计、整体软装陈设设计
设计理念: 聆听使用者的声音,始终思考设计的真
正意义及其对人们的影响
服务介绍: 在全国范围内,我们针对别墅、大平层
等
高端私宅以及高端工装项目,为业主
提供
高质量的室内全案设计以及专业化
实施服
务。
荣获最新奖项:
2019 2019第四届“龙承奖”专业组空间陈设搭配奖
银奖
2019 2019上海国际设计周--金梁中国设计奖(省际
榜)
2019 2019 50 IDEA年度设计人物
2019 宁波市建筑装饰行业协会软装分会2019优秀
软装设计师
2018 CBDA中国软装陈设设计奖--2018年度最具影
响力设计人物
2018 IDEA50 I
宁波装饰年度设计人物榜年度杰出
软装设计
2018 “金堂奖” 年度优秀住宅软装设计
2018 宁波软装+艺术设计大赛--十大软装风尚设计
师
2018 宁波软装+艺术设计大赛--专业组住房类(私
宅)铜奖
2018 宁波软装+艺术设计大赛--专业组住房类(私
宅)优秀奖
2017 软装作品《繁花似锦》荣获2016-2017年度国
际环艺创新设计作品大赛(华鼎奖)软装陈设
艺术类金奖
2017 作品《青木筱居》荣获红鼎奖--住宅空间类
TOP10
2017 “茶花奖”2017年度十佳陈设设计师
2016-2017 年度中国室内设计50强杰出青年设计师
岚戈
泰瑞软装董事∣设计主管
青岚花房创始人
从业经验:5年
毕业院校:浙江理工大学
设计理念:设计者本身就应该是非常热爱并享受生活
的人;设计不仅是对生活态度的反省,也
是对生活方式的不断理解与感悟。
欢迎分享至朋友圈
本案由寓尚设计&泰瑞软装原创设计出品,请勿商用
客服
消息
收藏
下载
最近


















