查看完整案例


收藏

下载
私宅新作
家--源于生活,融于情感
从平常日子的空间中
以一种全新的方式来呈现令人着迷的生活气息
优雅而现代
复古又新生......
■ LIVING ROOM
每个空间里都隐匿着每个人的记忆。
THE SECOND■
■ TEA ROOM
一杯茶,
一卷书,
倦来高卧软塌上,
品香茗,
数缕光遐逸悠闲一午后。
简洁而不失优雅,
时尚而不失古典,
也是现代人对于格调生活的追求,
一处灵魂居所,
一个真正可以放下不羁,
回归自我的空间。
■ BEDROOM
青年区域空间
为了让每一位家庭成员,
在保持各自生活习惯的同时,
又能和谐且有界限感的居住在一起,
设计师将空间重新布局,
功能及空间上既不渗透又互不打扰。
BEDROOM■
设计 / 红设计软装
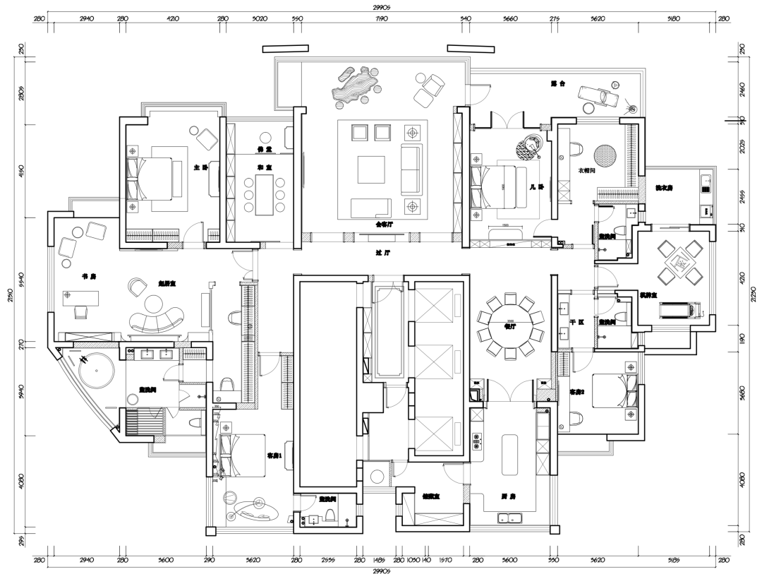
项目地址 / 江南一品
设计面积 / 450m²
软装主案设计 / 戚雪君
软装品牌 / 青蓝艺术馆
摄影 / 朴言
客服
消息
收藏
下载
最近



























