查看完整案例


收藏

下载
私宅改造设计
设计理念
木心说:
从前的日色很慢
车、马、邮件都慢
一生只够爱一个人
其实
慢的不是日色
也并非车马
而是一颗感受生活之美的心
当你的心慢下来
变得简单了
便会感受到万千美景
皆入我心胸怀
【减+简 · Living Room】
【食+时 · Dining Room】
【爱+友 · Master Bedroom】
【童+奇 · Children room】
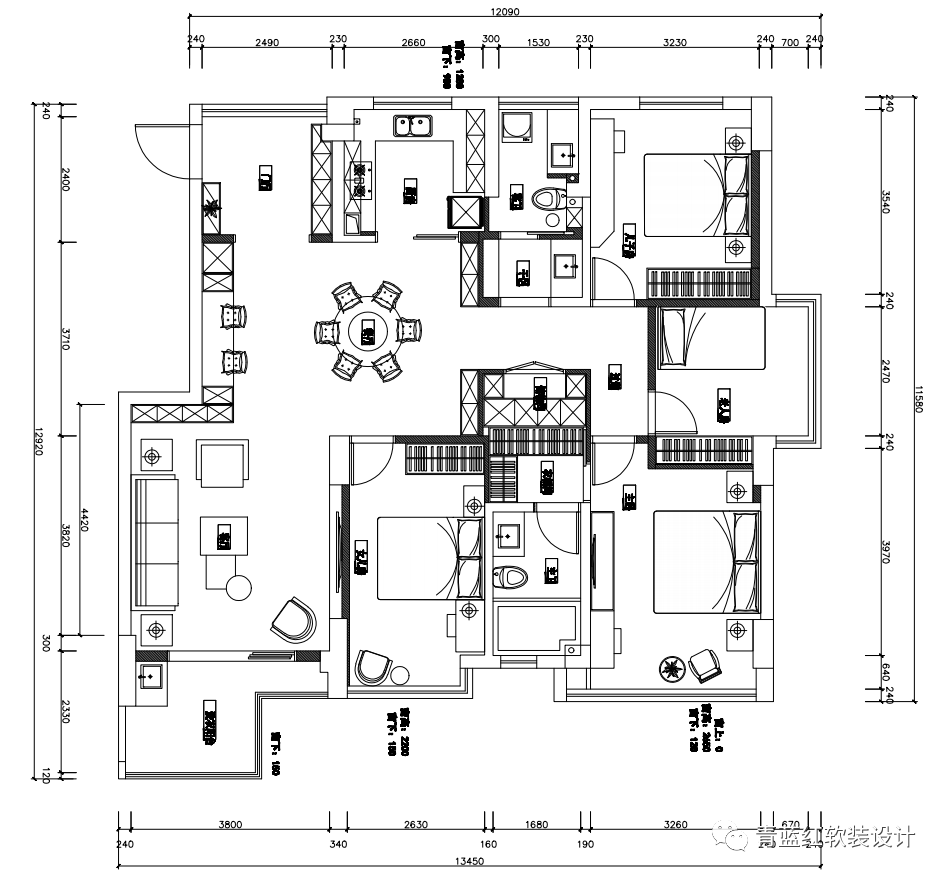
【House Plan】
软装设计 / 红设计
项目地址 / 天合家园
设计面积 / 143m²
室内设计师 / 王燕君
软装品牌 / 青蓝艺术馆
客服
消息
收藏
下载
最近




























