查看完整案例


收藏

下载
C Y A
N
- D E S I G N
Location 项目地址 :
成都 | 牧马山.蔚蓝卡地亚
Original Design 原创设计 :赵涛
Perform
Design 执行设计 :
曹瑜
cyan
Effect of Rendering 效果呈现:润图
Ccartographer施工制图:
叶韬 王治
斌
姜涛
Copy Writer文案编辑:
曹瑜
cyan
Area 项目面积 :600
㎡
Design Agency 设计机构:胤尊原创空间设计
Project Time 设计时间
:2020 ·
05
“牧马山蔚蓝卡地亚位于成都牧马山中央纯高端低密区,联合美国Dahlin道林、TCDL香港陈建中等优秀专业团队,打造国内全新居所理念——俱乐部式名邸.以经典传世建筑、欧式四季美景、俱乐部
配套与定制服务,成就格调的蔚蓝生活.”
蔚蓝广袤浅丘 碧湖环绕宅邸 坐拥着成都牧马山的绝美景色.
.
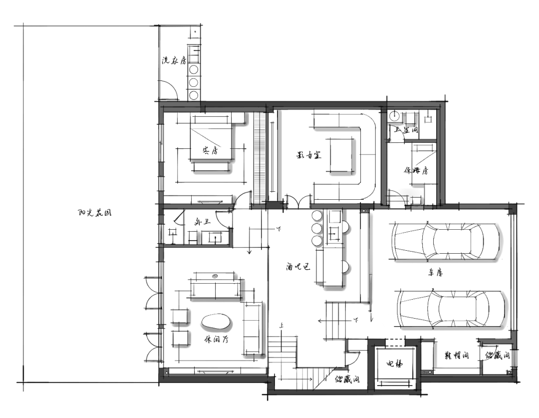
1F LAYOUT
PLANS
LEISURE AREA |
休闲区
临近花园的休闲区,顶面圆弧形包裹着两个圆形灰镜,而地面的水纹大理石呼应着波澜不惊的灰色“泉眼”.吧台搭配着休闲区,便可
闲暇与
友人品茶,
清晨和
亲人温粥,
午夜伴
爱人饮酒.
VIDEO ROOM |
影音室
GUEST ROOM |
客房兼长辈房
2F LAYOUT
PLANS
LIVING ROOM |
客餐厅
入户独有的挑高优势得到保留与扩展,建筑外花园景色映入室内,以向上延伸的格局把餐娱空间和休闲空间分化区分的同时,又借用灯光与材质的运用合二为一.
规划
布局时
化繁为简,在结构装饰上面做减法,在细节体验上做加法,预设不同的氛围场景,思考家庭每一个成员的生活细节要求,除了满足基本的生活需求以及功能需求,设计更重要的是人
在空间
里面
的精神需求.
从这个有趣的视角,我们可以感受这个家庭最本质的幸福与温暖,他们会在这样的空间里欢愉聊天,谈论琐事,享天伦之乐.
3F LAYOUT
PLANS
PARENTS' ROOM |
父母房
CHILDREN ROOM
|
孩子房
TOILET |
孩子卫生间
4F LAYOUT
PLANS
MASTER BEDROOM |
主卧室
本
案的业主是90后,有着尊重和疼爱他的父母,同样,也有着对于生活的热爱,对事业的追求,积极乐观的心态,对未来生活的规划,以及对这个世界的理解与尝试.❤️
WeChaet:Jtncyc
ADD:四川省成都市锦江区德必川报易园
- END -
客服
消息
收藏
下载
最近






























