查看完整案例


收藏

下载
九江誉江华府
誉江半岛别墅
项目依托于得天独厚的自然山水,建筑与江、山资源的和谐交融,自然流畅地将景观资源、区域功能、文化意念等多种元素贯穿于整个别墅区。
设计单位|木美空间设计
施工单位|东成至盛装饰
项目地址 |九江誉江华府.誉江半岛别墅
项目风格 |现代轻奢
项目户型 |五层别墅
项目面积 | 800㎡
主案设计师 | 周华乔 杜枫
设计团队 |刘林玉 陈永国 陈浩裕 赵刘焱
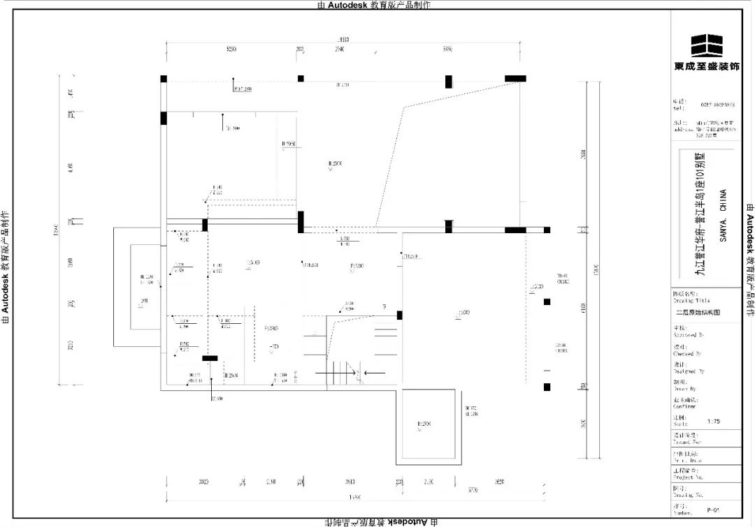
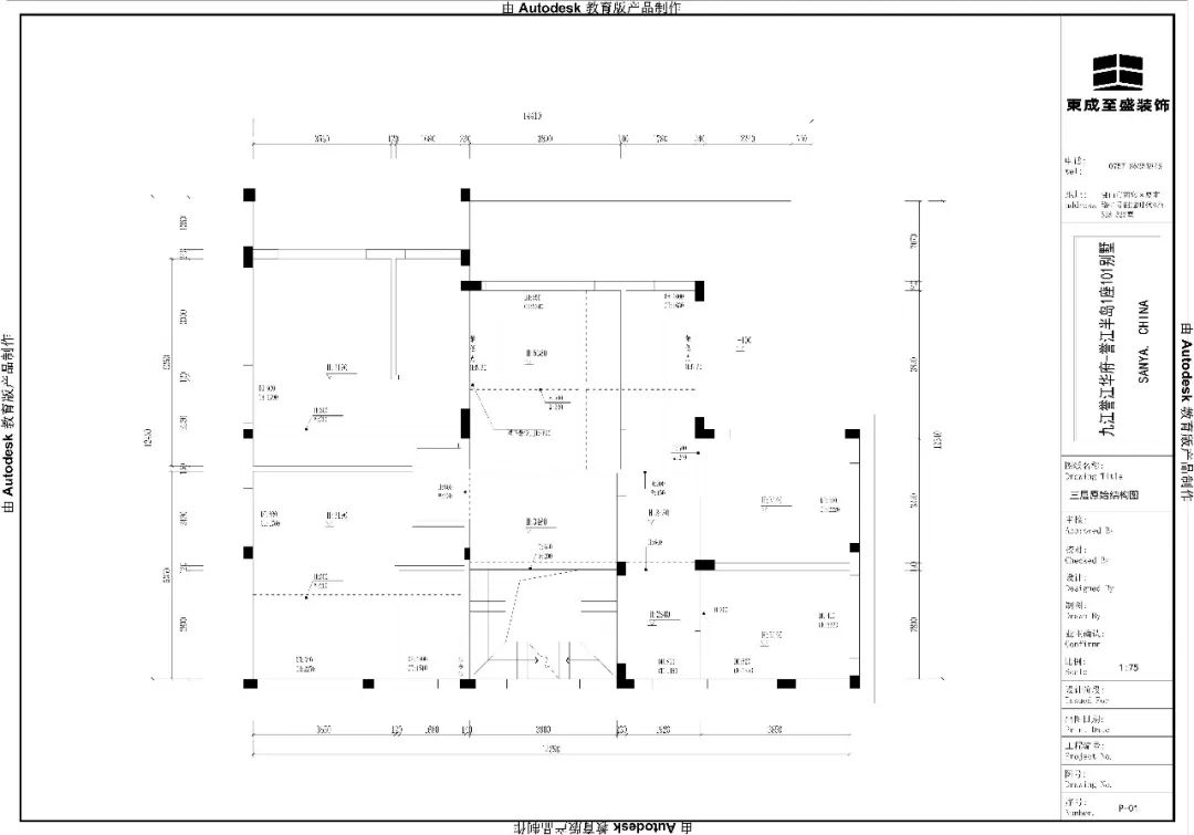
原始结构图
02
03
04
05
滑动查看更多
设计解析
Design analysis
原户型空间划分不完整,需要重置的地方居多。
整体户型的动线需重新优化,使动线更加合理。
原户型区域划分不合理,需要重新构思。
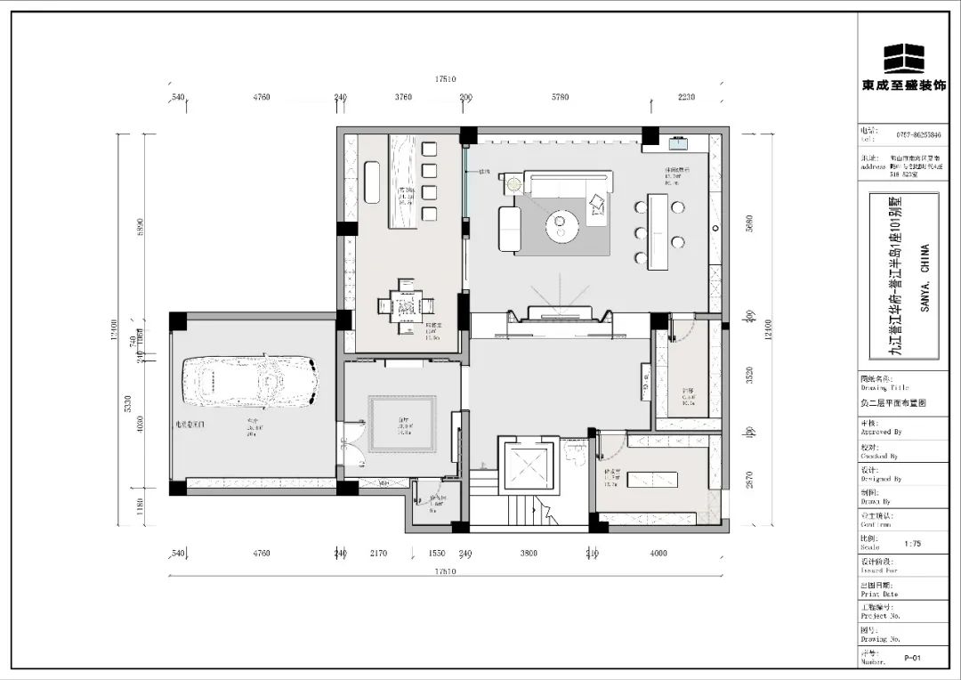
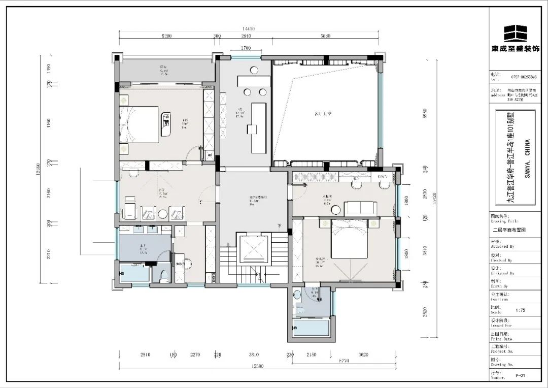
平面设计布局图
02
03
04
05
滑动查看更多
改造亮点
Renovation highlights
地下室原空间采光不足,家人需要运动,还需要保姆照顾,需要合理规划动线,改造后设计师通过地下空间进一步细化增加了居住功能区及休闲区,一层用作客厅活动区,二层、三层为居住区。
空间整体的改造非常的舒服,开阔的布局,充满仪式感的元素,合理的规划空间使用,都让业主感觉无比的踏实和自由。朋友来了都不想要离开,也分享给大家看看。
负二空间展示
Space display on the second underground floor
会客厅
精英代表的地下室,通常是作为会客室来呈现的。家居要高端大气,布局要通透合理,设计也要配得上身份,简洁有力带一点柔软。
作为家中的会面,它也比外面的谈判更为真诚和私密。彼时灯光柔和,茶香四溢,气氛温馨,大家放下几分戒备,再握手时尘埃落定,促成双赢结局。
茶室
麻将室
过厅
电梯间
负一空间展示
Space display on the first underground floor
健身房
对于喜爱健身的人来说,在地下室搞一个专门运动健身的地方也是个好选择,既不担心噪音问题,还有足够的场地能折腾。
当然每人的运动方式不同,有人偏爱台球这种静态运动,也有人喜欢跑步机、篮球、乒乓球这些激烈的运动。
和三五好友一起运动是种乐趣,与家人孩子一起健身是陪伴,而自己每日打卡,是热爱和坚持。
卫生间
一层空间展示
First floor space display
客厅
挑空客厅+一整块大理石的设计,不仅极显空间恢弘大气,更显奢华的格调。简约玫瑰金造型垂吊灯彰显一丝轻盈与精致,吊顶采用同款玫瑰金线条装饰,与整个空间融为一体,高级又精致。大幅简约壁画是背景墙的一大亮点,淡蓝色彩赋予空间清新、轻盈的氛围感。客房
一层客房是较为简约的天花设计,线性床头灯给予空间简洁轻奢的质感。
玄关
厨房
卫生间
二层空间展示
Space display on the second floor
小客厅
通过挑高式处理设置修长高窗,保证一年四季都可引入充足的日光,沙发与木纹柜面,对比周边浅色系墙面及窗纱显得格外抢眼。
开放式书房
长辈房
衣帽间
客房
结合实际,以居住者的体验为出发点,展开对理想生活范式的勾勒,把衣帽间与就寝室贯通,完美结合创造呈现,流畅地打造出一个现代、时尚又私密的灵感空间。
卫生间
三层空间展示
Three floor space display
主卧
一些简单的细节贯穿始终,简约的床头线灯、透过床头两边的窗户照耀在室内的光线,在自然光的照耀下加强了住宅的内外联系,增加了一种自然的感觉。
书房
衣帽间
对于独立的衣帽间而言,设计时,要合理安排灯光、色调等元素,最好设置接近自然光的光源,使衣服的颜色最接近正常,方便主人选择,使之既融入室内整体风格,又保持自己独特的情调。
卫生间
小孩房
在小孩房设计上,我们的房间是动态的,而不是静态的,适当的搭配,使用简洁大气的色彩,留出来更多的活动空间,有利于培养孩子的审美,形成舒适的空间氛围,与各种年龄段的孩子都可匹配,不会因为年纪增长而显得过于稚气。
卫生间
过道
主创设计总监/周华乔
创意设计总监/杜枫
公司荣誉
中国室内装饰—“优质工程奖”
广东装饰代表—“推荐装饰品牌”
广东省建筑设计协会-常务理事单位
广东建筑设计协会-副会长单位
荣获 2022 年广东(佛山)十大居住空间设计师-金住奖
荣获 2022 年 CSE 江西省室内设计大赛-优秀奖
荣获 2021 年华人设计师网-集美奖
荣获 2021 年亚太当红-别墅设计师奖
荣获 2018 年广东室内设计 50 强
荣获 2018 年-鼎银奖
荣获 2018 年-华银奖
荣获 2017 年-大金匠心奖
荣获亚太建筑设计周 2017 年春季洋房设计-入围奖
荣获亚太建筑设计周 2017 年住宅空间设计-金奖
鹏鼎奖中国空间设计大赛-年度新锐设计师
中国国际室内设计双年展-铜奖
亚太区室内设计大赛-优秀赛
中国国际室内设计双年奖-铜奖
家饰作品杰出设计师大赛-一等奖
中国工艺美术作品展-金奖
中国工艺美术作品展-金奖
客服
消息
收藏
下载
最近


























































