查看完整案例


收藏

下载
用心·专研 ShiYan·design SPECIALITY Interior design/ 2022
品质墅居,心灵净土
Immersive shopping and leisure space
当美的灵魂与美的外表和谐地融为一体,人就看到,这是世上最完善的美。
——柏拉图
奢雅是心境的外显,人文才是高端生活的提炼,倾听居者对与生活的深层次诉求,把“空间愉悦感”作为设计中持续思考的命题,用质感疗愈纷繁情绪,以建筑诠释生活哲学。
结合居者审美志趣与生活阅历,在用精妙的设计语言,寻觅空间个性与情感共鸣的集合点,以此对话精英圈层的文化品位,生活礼仪。
Luxury and elegance are the expression of the state of mind, while humanity is the refinement of high-end life. Listen to the residents’ deep demands for life, take the "sense of space pleasure" as the topic of continuous thinking in design, heal the complex emotions with texture, and interpret the philosophy of life with architecture.
玄 关
Porch
时尚 仪式
简约黑白色调,搭配墙面的线条与体块,以一种纯粹理性形态,酝酿着浓郁的氛围体验,延展出主人高贵内敛的气质。隐藏灯带,洒下玲珑光影,无声地渲染着归家的仪式感。
客 厅
Living room
开放 简雅
客厅作为第一休闲场域,用简洁明快的布局,构建严整的秩序与视觉节奏。体块状沙发、温暖壁炉、艺术单人椅,家居摆件勾勒融汇,深藏设计功力。一株绿植,灵妙可爱,不仅激活了空间生气,也丰富了进入者的色彩体验。
/
餐 厅
Restaurant
精致 惬意
/
餐厅上方以玻璃代替吊顶,超强视觉穿透力,让就餐空间多了几分恢宏大气。
圆形餐桌,彰显中国人骨子里对于温馨家庭氛围的向往。休闲时光,邀三五亲朋,觥筹交错,推杯换盏,一场家宴,宾朋尽欢。
通透餐厅,通过布置自然划分为两个区域,餐桌后方的石材岛台,搭配定制酒柜,和青绿色亚克力单人椅,为饭后品茶小酌定义一方专门场域。
/
洗手区 Hand washing area
理性 高级 /
体块墙面,彰显空间的结构逻辑,墙面之间保有缝隙,追求一种视觉的模糊朦胧感。
三墙围合,饭前的洗手时刻也变得精致优雅。神秘蓝调的立柱洗手台,用材质本身的调性,刻意塑造一种被看见、被感知的能量场。
/
二层 公 区
Public area
互动 纯粹
我们始终谨记设计服务于生活的原则,挖掘客户内心最根本的需求和喜好。
用纯粹的白调,主导二层公区的视觉感受,使空间去除多余的表面装饰,单一视觉语言的表达,更具纯粹感和“简洁的精致性”。
/
主卧
Master bedroom
私密 格调
/
主卧兼具收纳、办公、观影功能,宽绰的空间尺幅,自然带出一种高级闲适气度。
通铺的木地板,汲取自然造物灵感,并融入对家庭空间的独特感知,与业主的高雅格调相互碰撞。
主卫
Chief Guard
秩序 美学
主卫三分离设计,相得益彰的功能布局,切实提高屋主生活质量。
大尺幅洗手台,搭配双台盆设计,夫妻二人同时段洗漱,契合商务人士对时间的精确把控。泡澡区以高级灰色调,进一步强调区域的独立性,也让空间的单调感一扫而空。
/
四层空间
The fourth floor
自然 放松
四层空间,于简约中彰显空间精神的丰盈。睡眠区以光与木作为设计题眼,巧妙引入自然光线,光木呼应,打造一个让居者彻底放松下来的空间。
夹层空间
Mezzanine space
古拙 现代
夹层空间兼具茶室与影音室两种功能。石材、木质构筑的茶桌,古拙素朴,呼应居者品茶时的意境。影音室则偏向现代风格,一处空间,两个世界。
每一根光线都经过精心的设计,电视墙的灯带,勾勒翻转,丰富墙面视觉层次,周遭留白亦不显苍白。
地下室
Basement
休闲 自在
旋转楼梯直通地下室,宛如一条飘带,构建空间的纵向连接。
负一层入口处以镂空墙面,作为区域分隔界线,住宅因居住者的品位、认知,显露出追求“自在生活”的人物形象和社会面貌,以建筑语汇,诠释艺术趣味。
借助天井引入的光线,靠墙打造一处室内花园,葱绒生长的植物,表现出一种无所不包的积极力量。一张台球桌,满足商务人士的休闲社交需求。
从室外开车回来,直通地下室车库。车库上方铺陈大尺幅灯膜,极力模拟自然光,室外至室内的视觉过渡更加自然,保证视觉舒适度。
......
项目坐标:中国. 江苏
项目名称:国瑞熙墅
项目面积:1000㎡
设计公司:室研空间设计
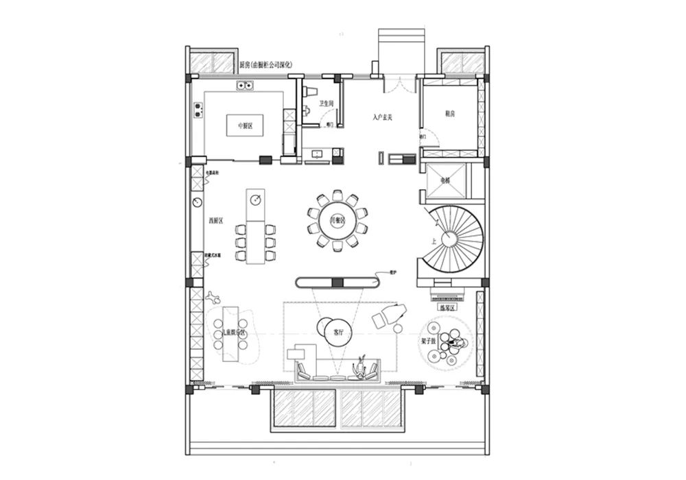
一层平面布置图
二层平面布置图
三层平面布置图
四层平面布置图
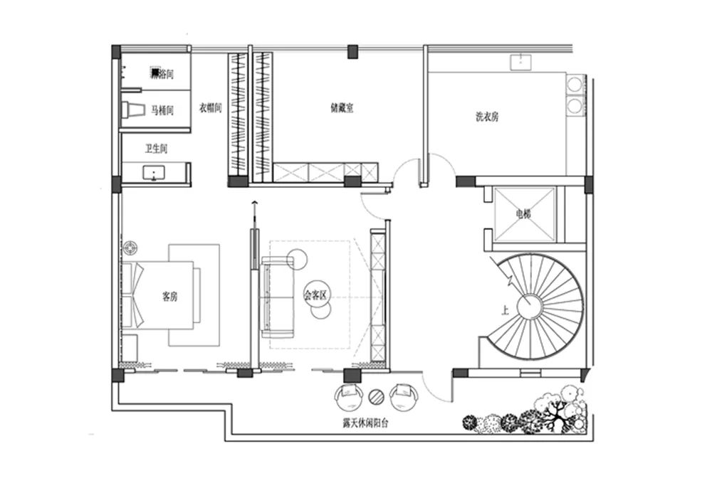
负一层平面布置图
负二层平面布置图
▲向右滑动,查看更多
平面布置图
室研空间設計
商务合作 / 项目咨询 / 设计预约 / 简历投递
苏州市姑苏区人民路 63 号蓝文化创意产业园 15 幢 107—1 室
客服
消息
收藏
下载
最近





































