查看完整案例


收藏

下载
本项目酒店坐落于千岛湖中心湖,原本是作为叶琪林场管理用房,占地约110余亩。
从盘山公路经过一条蜿蜒的小路后,到达项目基地,基地呈半岛形态,视野开阔,四周环水,有非常好的景观基础。
千岛湖全景(
中联论坛
)
改变现状的杂乱无序
改造前的老建筑是一幢
空间布局不合理,设施陈旧的林场管理用房。管理用房分为三个独立的建筑单体,建筑形态呆板单一。
基地现有建筑
基地内的三幢建筑在布局上十分凌乱,且临湖较近,原本的亲水平台面积较小,仅用于通向码头的台阶又十分宽大,导致整体的场地设计利用率很低。
基地现有的景观树
基地原先的叶琪林场内有多棵树干直径大于0.5 米、树冠直径大于10 米的景观大树。
在设计初期考虑保留这些大树,融入后期的景观设计中。
保留结构,整体化设计再现多层次空间体验
为了能最大限度的改变目前建筑的现状并使其能够更好的融入当地环境。我们决定尽可能的使用可再生材料作为新建筑的一部分。
总平面图
酒店入口
在建筑的形式和设计上保持简洁,朴实的自然的风格。用深棕色系的挑窗和大面积的园林景观,使得改造后的建筑宛如一个隐藏在湖畔的世外桃源。
自然古朴的内庭院设计
深棕色铁锈板阳台设计
为了改造后功能更加统一,在保留原建筑的主体结构的基础上,增加楼与楼之间的连接通道。
改造工程分析
将位于中间的小型建筑改造为通高的入口门厅,方便连接两边的客房区域。在建筑的外沿增加了室外露台及挑窗的拓展设计,在功能上提供了更大的空间和使用的可能性,让住客拥有更好更舒适的观景体验。
功能分区
巧妙利用
顶层阁楼
,形成更为通透的室内空间,也在一定程度上增加了房型的溢价空间。
增加挑窗观景空间
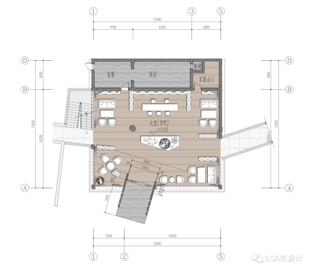
将酒店的公共区域集中设置在入口门厅处,保证了客房私密性的同时,方便两边住客通达。一层为服务台、大堂吧及餐厅包厢。局部二层设计为景观早餐厅,透过玻璃幕墙,能够欣赏到清晨静谧的湖景风光。
入口处
门厅一层平面
门厅实景
门厅二层平面
早餐厅
门厅屋顶平面
由于场地本身室外空间较小,业主方对增加泳池设计的要求,是设计开始的一个难点。既要保证泳池的完整性,又不能处在过分嘈杂的门厅附近。因此我们考虑将泳池设计在公共门厅的屋顶处。无边界的设计,拥有更开阔的观景视野。夜幕降临时,漫天星空也为住客提供了更为惬意的度假体验。
屋顶无边泳池设计
原本的亲水平台就有台阶过大,平台过小的缺
陷,我们在改造中向湖面延伸了上层的亲水平台,增大了室外休闲广场空间。
亲水平台设计手稿
延伸亲水平台,扩大室外广场空间
亲水广场还可以作为餐厅的外部延伸空间,提供更多的餐饮体验可能。
临湖露台
露天烧烤晚宴
本项目在空间改造上,更多的注重竖向的视线设计,从广场、露台、客房到屋顶的无边界泳池,多角度多层次的观景空间设计,让住客
真正
体验到山水间的惬意舒适感。
广场、露台、客房、无边泳池——多层次观景空间
回归质朴,重在氛围营造的园林景观
酒店整体设计基于空间场景的多重体验,以启幕、引道、序曲、过场、序幕、尾声的电影情节中的心理感受来营造景观的自然氛围。
空间序列体验
设计手稿
在景观构思上,我们沿湖设计了景观步行廊道,步道连接酒店各个部分,方便交通的同时,也提供了良好的漫步空间。
景观步行廊道
步行廊道不仅仅是一条观景通道,还在各个节点处做了放大处理,提供户外活动更多灵活性。
景观细节设计
以场地内的材质、植物、风景等等为介质,唤起人与原始自然的共鸣。
在具体
的
设计和建造上,我们通过极少的营造将人工痕迹置于自然景观之后。
选用当地原始材料,保留古朴的风格
在材料的选择上,最大程度的运用当地的原始材料,保留场地内长势较好的植物树种,在设计中充分的融入
。
保留树木
场地内融入的平静水池,与湖景的“只可远观”相呼应,在空间上更具有“亲水”感。
平静水池烘托静谧的氛围
减少室内装饰性,突出观景体验
雅谷风林为度假住客考虑了丰富的业态功能,我们在设计上也更多的考量了功能与景观的结合,去繁就简,让自然景观成为最好的装饰。
公共活动区
雅谷风林备有32间客房,11种风格不同的房型设计,在满足不同住客需求。
随着市场变化,度假型酒店的本质,便是“体验”。本次改造在空间上寻求更多角度的观感体验。多层次的观景空间设计,让建筑拥有室内(观景)与室外(景观)的双向渗透。入口空间的私密设计,将人们从快节奏的都市生活中剥离开,慢下来,享受栖居山水间的惬意。
Credits
项目名称 | 千岛湖雅谷风林酒店改造项目
所在地 | 浙江 淳安
设计时间 | 2017年
建筑面积 | 1,682㎡
版权信息:
1.版权归本DSA东设计所有,文中图片均系本公司所有及业主方授权;
4.对于不遵守此声明或者其他违法使用本文内容者,本公司依法保留追究权等。
客服
消息
收藏
下载
最近








































