查看完整案例


收藏

下载
Houses, Refurbishment, Vordemwald, Switzerland
设计师:Gautschi Lenzin Schenker Architekten
面积: 115 m²
年份:2020
摄影:Andreas Graber Photography
建造商: wood construction company
Lead 设计师:Philipp Schenker
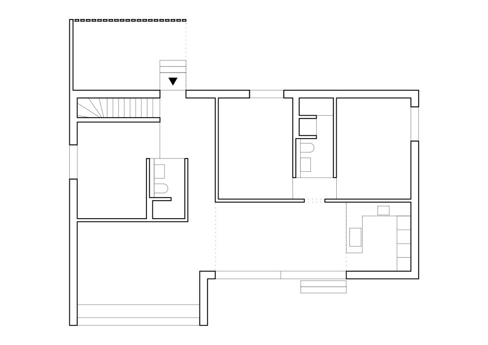
The property which includes a house built in the 1970s is situated on a slope with a beautiful view of the village. The original house was not worth preserving and was therefore demolished except for the basement. After upgrading the ceiling of the basement, new living space was built on top of it using prefabricated timber elements. The floor plan lies congruently above the basement, which results in structurally simple transitions between old and new.
The entire living area is slightly elevated above the garden level, which creates a pleasant and light feeling of space. The bedrooms, bathrooms, and the existing offset on the façade facing the valley, together with the three-part sections entrance/living/dining, generate a flowing room.
The dining room with its extra height is a central area for family life. The view of the village is underlined through long fixed glazing in the living room. The window sill underneath it can be used as a bench and storage space. In the dining room, the showcase-like lift-and-slide window merges the interior with the exterior. The tight budget was considered by dispensing of anything unnecessary, which resulted in untreated and natural surfaces.
The new building consists of only three materials – fir wood, concrete, and chrome steel. This type of construction supports the client’s desire for a raw, studio-like house.
项目完工照片 | Finished Photos
设计师:
Gautschi Lenzin Schenker Architekten
语言:English
阅读原文
客服
消息
收藏
下载
最近
















