查看完整案例


收藏

下载
01.
# 融入森居 #
FOREST HABITAT
自然的绿意与城市的璀璨相互映照,以简约的姿态讲述空间的故事,彰显出优雅而精致的现代美学都市格调。形式化简,畅居无束。
用设计的手段把空间功能分化得更有逻辑性,提高步入者的审美能力,引发情感共鸣,增加互动方式。
02.
# 书香风华 #
ARTISTIC TALENT
摒弃过于复杂的肌理和装饰,书与书架的元素解构与重组,让空间阅读气氛浓厚,置身于此倍感纯粹与惬意。
空间以暖白为主色调,绿植融入其中,辅助以金属作为点缀增加气氛烘托,柔化整个空间,同时也营造出轻松愉悦下午茶的空间氛围。
干净而不失趣味的阅读空间,空间连接书籍,人与书籍产生互动,唤起人和书之间的共鸣,带来无限的惊喜和遐想。
03. # 层层递进 #PROGRESSIVE 方寸之间蕴含玄妙构思,层层递进是有对无的延续,犹如对生命的注入灵魂。
通过现代怀古,以灵巧之态呈现于空间里,克制中深藏着低调。
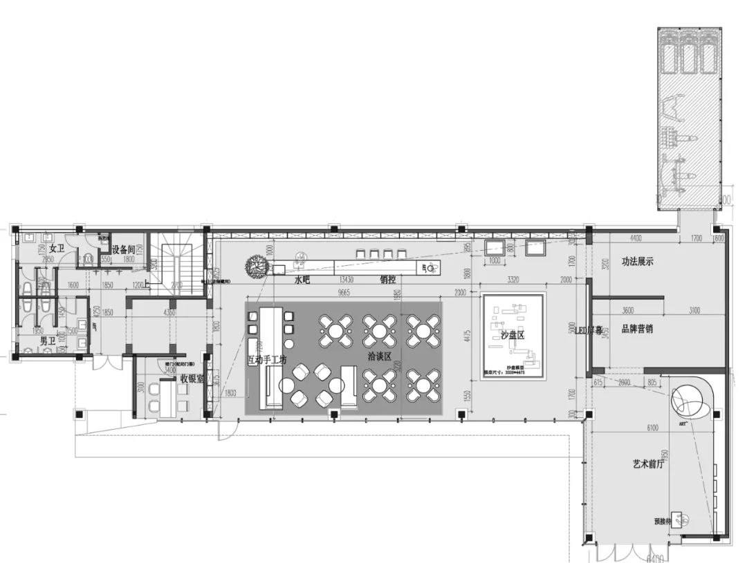
平面图 Layout plan
项目名称|云尚风华城
开发商|嘉善英冠鸿璟房地产开发有限公司
业主团队 |姜红霞、查文芳
硬装设计|上海飞视设计
设计总监|张力
设计团队|甘耀云、吴紫雁、杨洁、吴涛
机电团队|韦蓉蓉、张建成
软装团队|上海牧言室内装饰工程有限公司
灯光设计|新时光照明设计朱晓亮
项目地点|浙江省嘉兴市嘉善县
项目摄影|金啸文
项目面积 |430㎡
主要材料|暗纹石,水磨石砖,古铜拉丝不锈钢,金属艺术漆,木饰面,仿石材砖,夹丝玻璃,壁纸硬包等
Add:上海市徐汇区肇嘉浜路 736 号龙头大厦 5-7 楼
Mob:18930913720
客服
消息
收藏
下载
最近

























