查看完整案例


收藏

下载
杭州是中国东南部的传统城市,我们可以从历史悠久的传统建筑中发掘其文化特色。如果要看最具代表性的建筑群,必须在中和路沿线的历史街区。
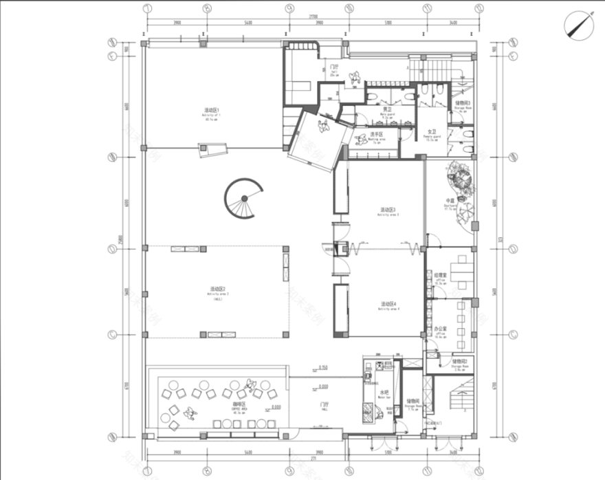
今天的对象位于杭州市中和路附近的历史建筑大同路。在这个地区,民居大多居住在民国时期建造的商店的后方或后方。在这种环境下,设计师胡志乐认为,该项目需要更多地关注建筑物本身的特点和他希望不受团队最初的建筑形式和语言的束缚,希望通过团队的努力可以给这个空间一个新的形式,但是这一切与传统形式的建筑界面巧妙融合在一起,就像彼此了解一样,是不同的。由房主创办的“童上记”旨在通过一种新的“体验式教学”方法,为更多的父母和孩子启发孩子对事物的“判断,理解,认知,感觉和感觉”。多次拜访时,设计师胡志乐提出了使用天然材料的材料,在空间设计上要以柔软舒适为前提,以较大的空间和整体空间的整体性为出发点。之所以这样设计,是因为胡志乐希望孩子们可以在这样的空间中定义自己的交流和空间结合的需求,从而保护孩子们的童趣。但是,如何与大同里的环境保持一致,以及如何做到原则新体验式文化教学中的所有者已成为该案例的首要问题。由于大同巷历史街区与高架桥之间的距离很近,城市建设对旧建筑物的侵蚀太严重了。因此,我们需要一种网格设计来保护亲子活动空间不受城市噪音的影响。一个只有童年自然快乐的空间,我们将折纸,原木,自然和光线融入整个空间。这些元素属于孩子的想象空间。空间中使用木质颜色也使孩子们更贴近自然。在原始结构中,二楼的高度较高,限制了活动空间。因此,业主希望我们可以将教育活动空间,亲子住宿和儿童活动区域整合到该空间中。我们在原始结构中增加了阁楼。在这个区域,我们为父母和孩子们创造了一个寄宿家庭,使孩子们可以有一个一起休息的空间,就像在体验时的家一样。在阁楼上增加天窗更有趣,还可以满足儿童的照明需求。在这个空间中,孩子们可以体验手工工作,与父母一起享受不受干扰的亲子时光以及享受畅通无阻的活动空间。这种自由对年轻一代是最好的启示。
类型:商业
地点:杭州
面积:1000平方米
客服
消息
收藏
下载
最近


























