查看完整案例


收藏

下载
DEMO
DESIGN 完成了赛乐集团位于江苏常州薛家工业园内一座1000平米厂房改造,本案的难点如何打破原有建筑窗口过于狭小,光线的进入不足的问题,通过将整面墙体做打通处理,有效解决了采光的摄入同时增加了建筑体的通透性
DEMO DESIGN has completed the renovation of a 1000-square-meter workshop located in xuejia industrial park, changzhou, jiangsu province. How to break the problem of too narrow window of the original building and insufficient access of light? By opening the whole wall, it can effectively solve the problem of lighting intake and increase the permeability of the building
改造前建筑照片,
Architectural photographs before renovation
墙面的洞口开启,传统借景手法与解构主义结合,赋予空间更多的表达,同时也增加了走道的趣味体验
The opening of the hole of the wall, the combination of traditional borrowing techniques and deconstruction, endows the space with more expression, and increases the interesting experience of the walkway
DEMO设计团队提出,可以赋予空间一定的形式感语言,将原先建筑的走廊部分改造成为内部空间的门厅,使得办公大楼的入口成为赛乐集团的形象主体。考虑到未来几年,工业园区的多元化发展,这样的处理也能够融入建筑群同时不会被淹没
Th
e DEMO design team proposed that the space could be endowed with a certain sense of form, and the corridor part of the original building could be transformed into the foyer of the internal space, so that the entrance of the office building would become the main image of salle group. Considering the diversified development of industrial parks in the coming years, such treatment can be integrated into the buildings without being submerged
现代的洗手间的设置不应该局限于藏而理应精致的露,所以我们在打造卫生间区域,更多的加入了定制元素,饰面的选择,极致黑色的台盆区打造,多动线环绕设计使得整个洗手间区域可以成为空间的重要组成部分
M
odern toilet Settings should not be limited to hide but should be delicate dew, so we in the building of the toilet area, more to add custom elements, the choice of veneer, extreme black basin area to build, multi-line surround design makes the entire toilet area can become an important part of the space
弥漫着温暖舒适自然光线的办公空间,
The office space is permeated with warm and comfortable natural light
柔和纯净的空间,坚持使用大面积木饰面,并贯穿始终,除此之外,根据不同的位置,采用玻璃等元素进行配搭,丰富视觉层次,同时保证空间的通透性,使得空间更加明亮,通透,柔和。并且采用均匀照射和漫反射光源,避免直线光射。DEMO团队希望打造一个没有边界,没有聚焦的场所,让空间无限延展下去,室内外慢慢融合起来,给使用者一个舒适的环境
S
oft and pure space, adhere to the use of large area of wood veneer, and throughout, in addition, according to different locations, the use of glass and other elements for matching, rich visual layers, at the same time to ensure the permeability of the space, making the space more bright, transparent, soft. And use uniform irradiation and diffuse reflection light source, avoid straight line light. The DEMO team hopes to create a place with no boundaries and no focus, so that the space can be extended indefinitely, and gradually integrate indoor and outdoor, thus providing a comfortable environment for users
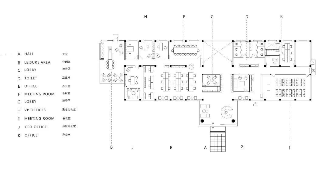
平面图,The floor plan
轴测图,Axonometric drawing
项目地点:江苏 / 常州
设计公司:DEMO DESIGN ( 初品 )
设计团队:蒋国晟 陈寻真
项目时间:2019 / 7
材料选择 :木饰面,水磨石,涂料,玻璃,金属铝板
项目面积:1000㎡
项目类型:建筑改造,空间设计
Project location: jiangsu/changzhou
DESIGN company: DEMO DESIGN (initial product)
Design team: jiang guocheng Chen xunzhen
Project time: 2019 / 7
Material selection: wood veneer, terrazzo, paint, glass, metal aluminum plate
Project area: 1000㎡
Project type: architectural renovation, space design
DEMO 初品
客服
消息
收藏
下载
最近























