查看完整案例

收藏

下载
0928
DESIGN
说在前面
层主对于自己喜欢的风格明确,希望整体是比较温暖的、有气质的,不想要太过于温馨到腻的感觉,希望有色彩对比,并在空间上尽可能大的利用空间,使空间使用率更高,计划会有小孩,所以希望也有一定的宽敞度能供孩子活动空间。
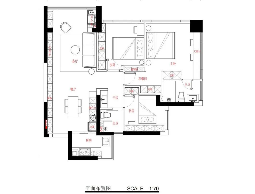
原始户型图
1. 入户处没有鞋柜空间,不方便使用。
2. 厨房面积小,功能使用不多。
3. 小书房面积小,衣柜不好摆放。
4. 主卧有两扇大窗户,不好摆放衣柜,屋主希望保留卫生间同时增加衣帽间。
说在前面。
1. 入户门右转,左侧与电视墙做整面柜增加储物。
2. 原厨房面积不变,将功能分化在餐厅位置,做西厨功能与冰箱位,让原本厨房更加实用。
3. 卧室整体大调整,次卫做干湿分离,改变书房的进门位置,借用走廊面积做出主卧衣帽间,衣帽间做 S 墙做出小书房的衣柜。
01/
玄关
入户利用墙体做整面玄关柜,门口预留换鞋凳和穿衣镜的位置,镂空位置方便摆放首饰、钥匙等小物件,上下藏有灯带,方便东西的拿取。鞋柜下层空位 H=150mm 方便换鞋,中间空位 H=450mm,可放置公文包或消毒液、口罩等。02/厨房
厨房奶油色橱柜搭配白色瓷砖上墙,整体通透明亮不压抑。内嵌筒灯和灯带可以为料理提供更好地照明。吊柜下方有预设灯带更加方便使用。
03/餐厅
因厨房面积较小,根据使用场景将厨房功能进行分化,在餐厅区域将西厨功能结合餐边柜,同时将冰箱外置于西厨,增加使用率。餐桌采用自由式摆法,根据生活场景移动餐桌的位置。04/客厅
电视柜整柜让客厅看上去整洁且储物功能增加,拼接的黑色凹位和玻璃柜让白色哑光烤漆的柜体不至于沉闷单一,让整面柜更加跳跃轻盈,不会显得过于压抑,储物也可以更好地细分。
阳台扩进室内让客厅的采光更好,整体通透明亮。靠近阳台位置柜子内预留扫地机的位置,底下镂空高 200mm 方便扫地机进出工作。
全屋铺设木地板脚感好且安静,棕色皮质沙发搭配奶油色边几,圆形地毯和挂画的点缀让沙发一角更具美感,杂志风拉满。
向上照射的壁灯发出悠悠暖光,像是一颗贝壳静静地倚在墙上,让沙发背景更显淡雅。走廊连接公卫和主次卧,走廊上方预留空调出风口,刚好在客餐厅的区域中间不显突兀。05/阳台
阳台与客厅用弧形门洞做空间的划分,储物柜与门洞齐平,洗衣机与烘干机并入,旁边预留空间做洗手池,下方的储物柜用于洗涤用品的摆放空间。
06/主卧
主卧改变入门方向,利用走廊空间做衣帽间,同时改变主卫门的位置,避免进门看到卫生间,让视觉整体更舒服,达到衣帽间亦是主卧玄关的感觉。
主卧以奶油色为主调,温馨柔和的色调让休息更加的舒适。
床头两边以款式不一的壁灯装饰,银色与玻璃的搭配让高级感倍增,拼色床头柜给纯色的背景墙增添了几分色彩。
主卧双飘窗的窗台拆除做落地窗形式,上方内嵌筒灯方便照明,面积扩大的同时视野和采光更好。
薄纱柔和了光线,阳光撒在床上,撒在地上,让拍摄期间的小伙伴产生了一种惬意质感。奶油色的中古梳妆台简约中带着小设计,桌上的小物件精致而实用,很好地点缀了淡雅的空间,提升整体格调。
天花预留投影幕布的凹槽,休息时躺床上看电影煲剧,更符合年轻人肆意生活享受为主的心态。主卫在衣帽间的后方,衣柜的遮挡作用让主卫在视觉上“隐”于主卧,躺床上时不至于直视卫生间,同时提高隐私性。
主卫马桶与淋浴区用玻璃推拉门做隔断,淋浴区的墙体做壁龛,用于放置洗浴用品,洗手台下方镂空无卫生死角。悬挂柜一边带有镜子,一边则半镂空,既能照镜子又能储物,同时满足储物的细分,一举两得,下方留有灯带,方便照明。07/ 次卧
次卧借用部分主卧的空间将入门位置移位让出衣柜的空间,进门后是整面衣柜的空间,增加额外使用空间。
低饱和的焦糖色做背景墙,让次卧的留白减少,提高空间延伸感,拼色挂画与房间配色相呼应,更具艺术感。吊灯和壁灯的组合照明错落有致,调和吊顶与飘窗高度不一的平衡,同时壁灯可以充当书桌的台灯,方便阅读。
悬浮书桌节省空间的同时,增加整体轻盈感,减少卫生死角。
08/书房
书桌和书柜利用飘窗的位置并入,形成一个整体,床靠飘窗预留更多活动空间。
淡绿的背景墙与砖红的面板拼色,让书桌和书柜的镂空更有设计。细腻圆润的白色亚克力单人椅,简而不简单,为空间提升质感。
09/
卫生间
洗手台外置,抽屉柜悬空下方可摆放洗涤用品,半圆拼色的地砖与半墙拼接,很好地划分了干区区域的同时,增加空间趣味性。木质长方形壁柜与跑道形镜子的搭配和谐美观。
淋浴区与马桶用玻璃隔断,墙体壁龛的高度可摆放日常的洗浴用品,挂架方便毛巾的晾晒和衣物的摆放。奶茶色的瓷砖降低卫生间亮白的清冷感,更舒适。
深圳零玖贰捌设计机构
-服务热线-
18520825872 18665328913
-地址-
深圳市宝安区新湖路宝安 82 区华美居 A 区 836 室
客服
消息
收藏
下载
最近





































