查看完整案例

收藏

下载
项目名称 | 陕西华清宫文化创意有限公司
项目地点 | 西安市曲江新区
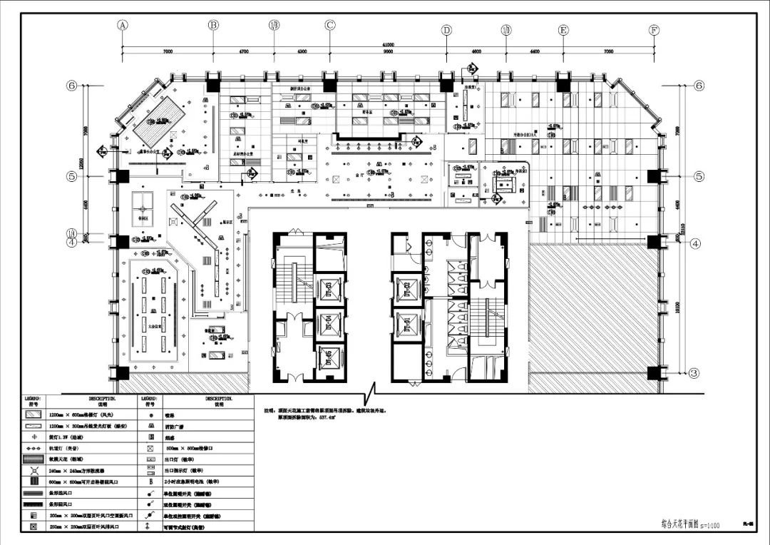
项目面积 | 537㎡
项目风格 | 现代+新中
主案设计 | 毛贵敏
制图校核 | 毛贵敏
深化团队 | 王萌
商务团队 | 锐格惟辰营销一部
施工团队 | 锐格惟辰工程事业部一部
平面布置图
/INTERIOR DESIGN LAYOUT/
宁
静
致
远
各区域效果图
/INTERIOR DESIGN DECORATION
REGIONAL RENDERING/
陕西华清宫文化创意有限公司办公空间,位于西安市曲江新区中海地产写字楼12F,装饰面积537平米。
三姿水态冠秦疆,美色当初醉李唐。说到华清池,最令人印象深刻的,应该还是白居易长恨歌中的名句:春寒赐浴华清池,温泉水滑洗凝脂。距此,已逾千年。然,春风桃李花开日,秋雨梧桐叶落时。华清池,并没有就此蒙尘、就此泯灭。反而,随着时间的洗涤,隔着千年的风雪、日月。那份明珠般的璀璨,更觉耀眼,更为熠熠生辉。
陕西华清宫文化创意有限公司,作为“华清宫”这一文化IP背后的运营团队,其主营业务为景区、演艺管理,智慧旅游升级、文创商品开发三大板块。
具有非常先进的IP经营理念和文化传播头脑。
这些属性,也就决定了,即便是在办公空间的设计上,文化符号植入与文化氛围营造的重要性。
设计师取“宁静致远”一词为空间氛围营造的主题。
取中式之意,重塑现代艺术手法之型。以简洁、明快为基调,实现功能性、艺术化、标志性的空间效果。
现在展厅设计手法的植入,贴合企业本身文化创意属性,也为产品文化及产品周边文化的展示,规划出了合理、又充满现代艺术的展示区域。
在对公司属性和文化符号进行深度剖析和整体解读的基础上,赋予空间更为灵动的气息,增加空间的舒适感。
在空间照明上,采用暖光及白光相结合的手法,办公区域采用白光为主,暖光为辅的区域照明系统。
使得空间简洁明亮的同时感到温馨惬意。
公共区域及展示区域采用暖黄为主,白光辅助的多点照明系统。
增加空间的聚光度,提升空间高雅的气质。
在灯光与材质的配合应用下,在白色中加入青灰色的属性,让空间更为成熟、轻盈与透亮。也更加具有清致雅正的韵味。胡桃木的融入,让这清致雅正多了少了几分缥缈与轻佻,多了几分敦朴与厚重。更添历史的风韵。
整体设计思路上打破常规办公室的印象。伴随着“宁静致远”的主题,创造一个简洁大方、清雅稳重、现代时尚的办公空间。
往期案例
/INTERIOR DESIGN
DECORATIONPAST CASES/
西安锐格惟辰装饰工程有限公司创建于2014年,是西安市装饰协会、中国室内装饰协会的会员单位,致力于为别墅大宅客户提供高品质家居服务,业务范围涵盖住宅、样板间、办公、会所及其他商业空间。
以原创设计为核心,由深圳知名设计师担纲领衔设计发展,立足于
专业化、人性化、个性化
的设计、施工和产品,为客户打造更美好的空间,更美好的生活品质和生活方式。
西安锐格惟辰
装饰工程有限公司
XI'AN RUGER WEICHEN
DECORATION ENGINEERING CO.LTD
△
长按识别关注
别/墅/大/宅/原/创/设/计
add. 西安高新区锦业路锦业时代B3座503
客服
消息
收藏
下载
最近



























