查看完整案例


收藏

下载
除了艺术之外,没有更妥善的逃世之方;而要与世界联系,也没有一种方法比艺术更好。——歌德
▲「建筑外观」
每一座空间,每一缕人文;
每一笔设计,每一个故事,
构建一个充满艺术生活的理想城。
心之安处即是故乡。
Every space, every strand of humanity,
every design, every story,
build an ideal city full of art life.
Home is where the heart is.
01 序幕 / Prelude
▲「接待区」
生活不应该是枯燥的,
而是绚烂而“有机”的。
糅合自然与人文的生活方式,
力图将“有机”的生活方式融入空间之中。
Life should not be boring,
but gorgeous and "organic".
Blend of natural and human life style,
trying to "organic" life style into the space.
02发展 / Development
▲「水吧」
流水涟漪,瓶樽三两。水流无声,蕴含着艺术的美感,将人的视觉带至此处。石材简洁,瓶樽三两列于其上。
Water ripples, bottle bottle bottle three tael.
The silent flow of water, containing the beauty of art,
brings people’s vision to here.
The stone material is simple, bottle bottle bottle three two row on it
03高潮 / Climax
▲「沙盘」
以曲为动,上善若水,水利万物而不争。将水意融入当代语言中,营造出自然交融的生活意境,抒叙场域润泽身心。
To the tune for the move, on the good if water, water and all things without dispute. Water into the contemporary language, to create a natural blend of life artistic conception, express the field moist body and mind.
04 谈笑 / Laugh
▲「洽谈区」
极简的纹理运用,营造返璞归真的自由空间,给心灵一个栖息之所。居于其中,不觉放缓身心。
▲「深洽区」
窗外水光倒影以涟漪般变奏荡漾出其中的诗意,是对空间的回应、亦是对自然的谱写。
整体色调统一,同色系的花束与柔软的织物沙发,各自散发着它们对于美和艺术的追求。
The reflection of the water light outside the window
reflects the poetry in the form of ripples.
It is a response to space a composition of nature.
The whole tone is unified, color and Soft Fabric Sofa,
each sending out their pursuit of beauty and art.
05童趣
/ Tongqu
▲「儿童区」
将色彩的童趣无限放大,带给孩子们童话中的王国,每一饰物,都承载着童年的欢乐。
The color of infinite child’s fun to enlarge, to children in the Kingdom of fairy tales, each accessories, are bearing the joy of childhood.
06沉寂 / Quiet
▲「艺术长廊」
艺术与空间的融合,
以简洁、干净回应理性、克制,
展开一场空间与美学的对话。
The Art and the space fusion,
by succinct, the clean response reason,
the restraint launches a space and the esthetics dialogue.
▲「品牌展示区」
采用不规则的造型,意图打破常规,让人耳目一新,将设计与企业文化相结合,让人不禁驻足而立。
The use of irregular shape, intended to break the conventional, refreshing, design and corporate culture, people can not help but stand.
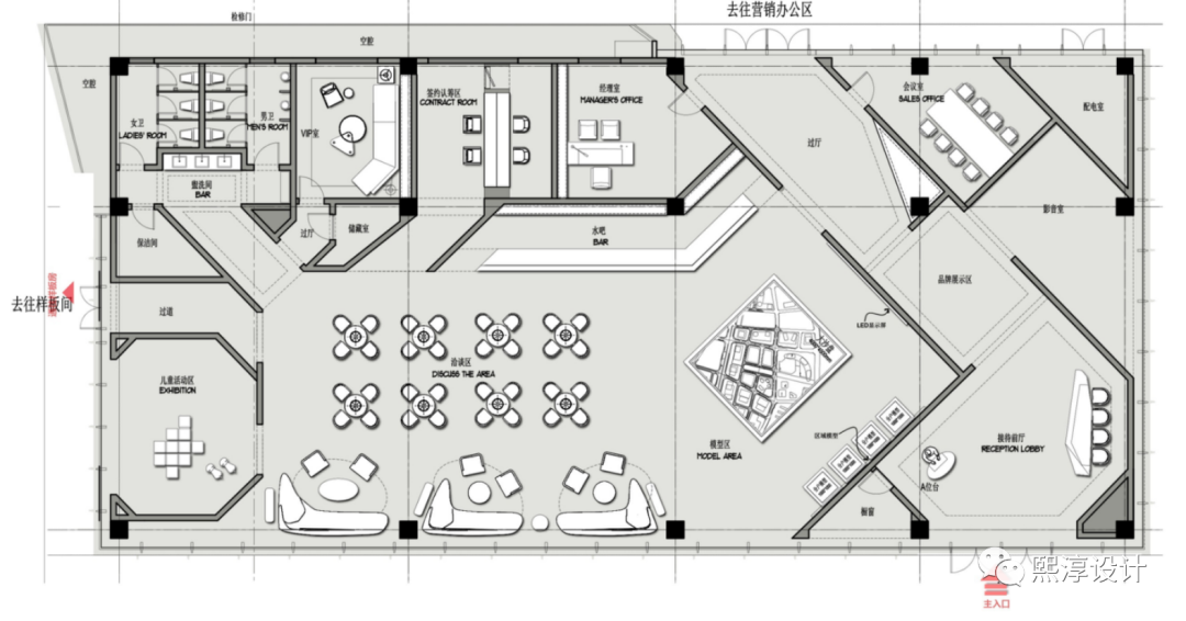
平 面 布 置
项目信息 INFO
项目名称|港龙.旭辉城市江来售楼处
项目地址 | 安徽省合肥市长丰县阜阳北路与庄周路
设计公司| 上海熙淳建筑装饰设计有限公司
设计团队 | 徐霈湋,高林芃,姜蓉,李卫鑫,
甲方团队 |李俊杰,周飞,范苗红,王俊皓
项目时间 | 2021 年 3 月
项目面积 | 560㎡
客服
消息
收藏
下载
最近














