查看完整案例


收藏

下载
现代山居
LS Design+
Make a better Space
2020年,开启在一个突发的疫情中,我们都被迫宅在家中1-2个月了,此时,我们与自己的家,深度交互,可能会引起若干思考,到底一个怎样的家,才是我们最最需要的呢?
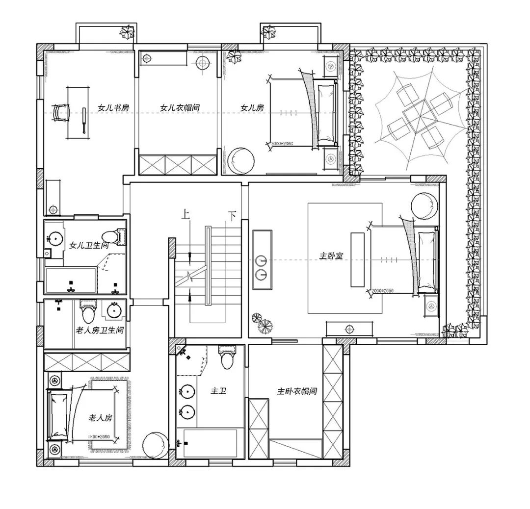
<< 向左滑动查看下一张平面图 >>
一层 / 二层 / 三层
几乎所有的人,肯定都会希望未来的家,能够更贴近自然,推窗即是清新的空气,满眼的绿色;走出去,有一方自由的空间,花园或院子,或者大露台。
特此,我们补录一套过往作品——现代山居。
业主是一对很有先见之明的中年夫妻,在主城居所之外,挑选了一处回归自然的独栋小别墅,四面通风采光,窗外绿意盎然,我相信在这难熬的一两个月里,他们一定是怡然自得的过着“田园诗般的生活”。
本案是多年前的作品,业主是在装修中途更换为LS设计的,在本案设计中,设计师尝试将窗外绿景最大化的引入室内,中式与现代风格融合,中西生活方式的扬长避短,尤其是在软装设计及陈列中,帮助业主实现一个简单而不简陋,低调高品,却极其实用的现代山居。
久在樊笼里,
复得返自然。
Project:「现代山居」
Company:蓝山设计
Area:300㎡
Copyright © LS Design+. All rights reserved.
重庆市江北区金源路华丽家族1栋1108室
(君豪大饭店旁)
-
营业时间
09:30~17:30
星期一休息
如有更多疑惑,欢迎来店咨询哦
* 6332 5833 / 186 8077 2882 *
同时欢迎志同道合的设计师加入我们
Join us 丨蓝山招聘
客服
消息
收藏
下载
最近




















