查看完整案例


收藏

下载

翻译
The site is in Akiba town, Tsubame city, Niigata prefecture. We designed a clinic that is more than just a dental clinic, it is a daycare center, a bookstore and a place to enjoyably spend time, just ‘like a park’. Where a typical dental clinic is not a place to linger, this dental clinic encourages patients to come to the clinic for more than just their appointment, it gives them abundant ways of leisurely spending their time before and after their appointment. All occupants of the clinic are encouraged to spend their time ‘as they please’ enjoying the bookstore or daycare center. This gives way to a new type of dental clinic, which is ‘a place to stay’, ‘come again’ and comfortably spend time.
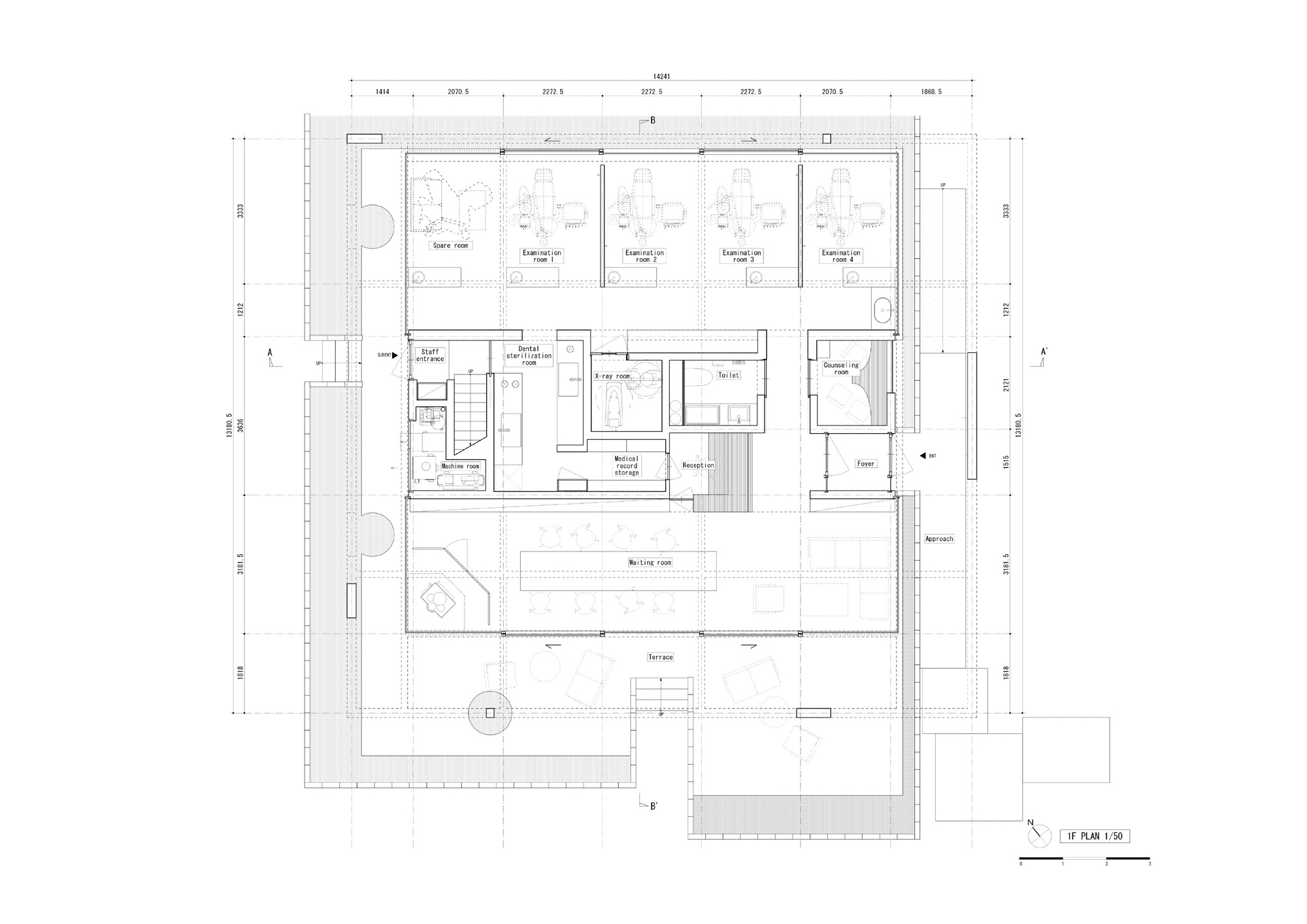
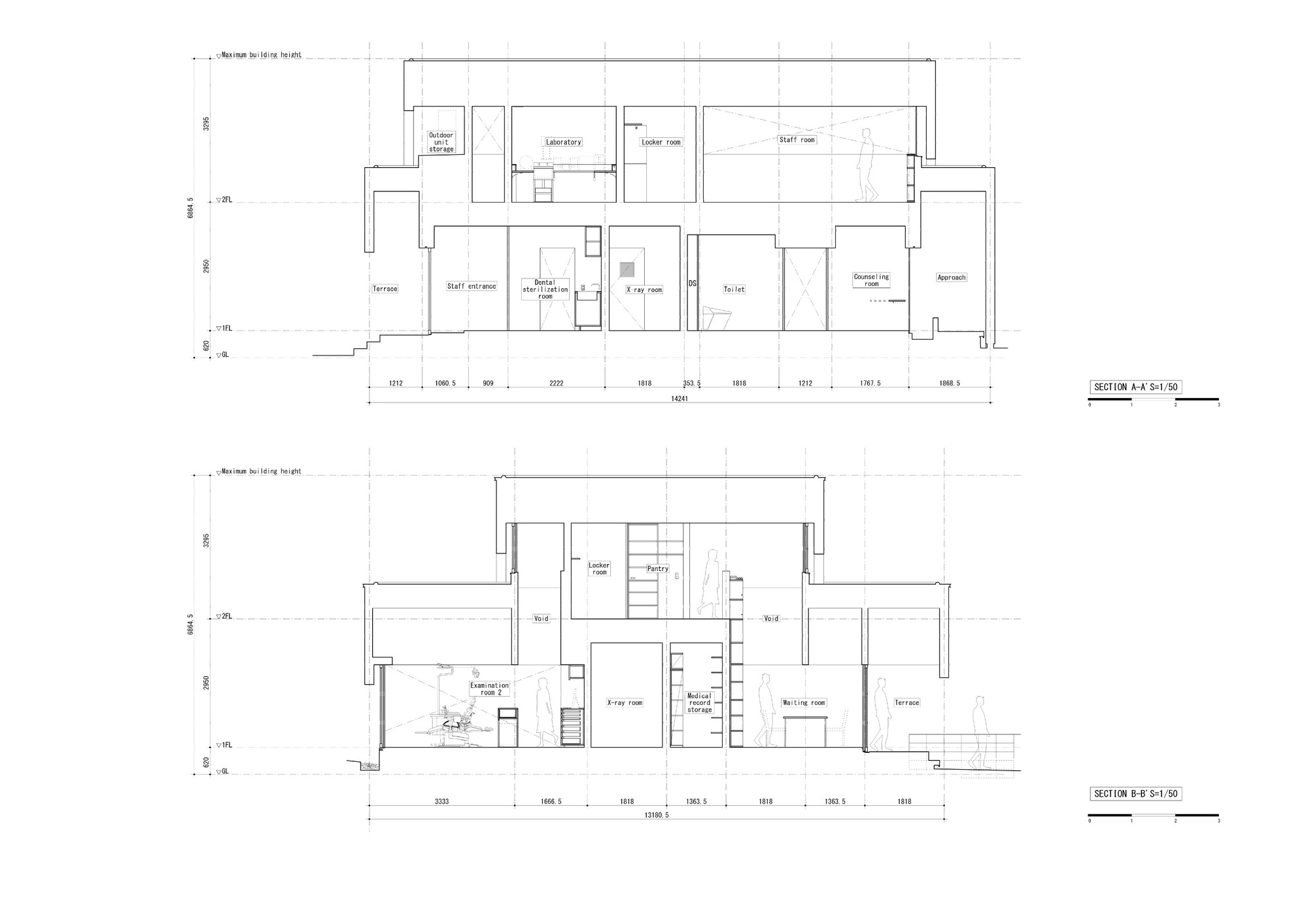
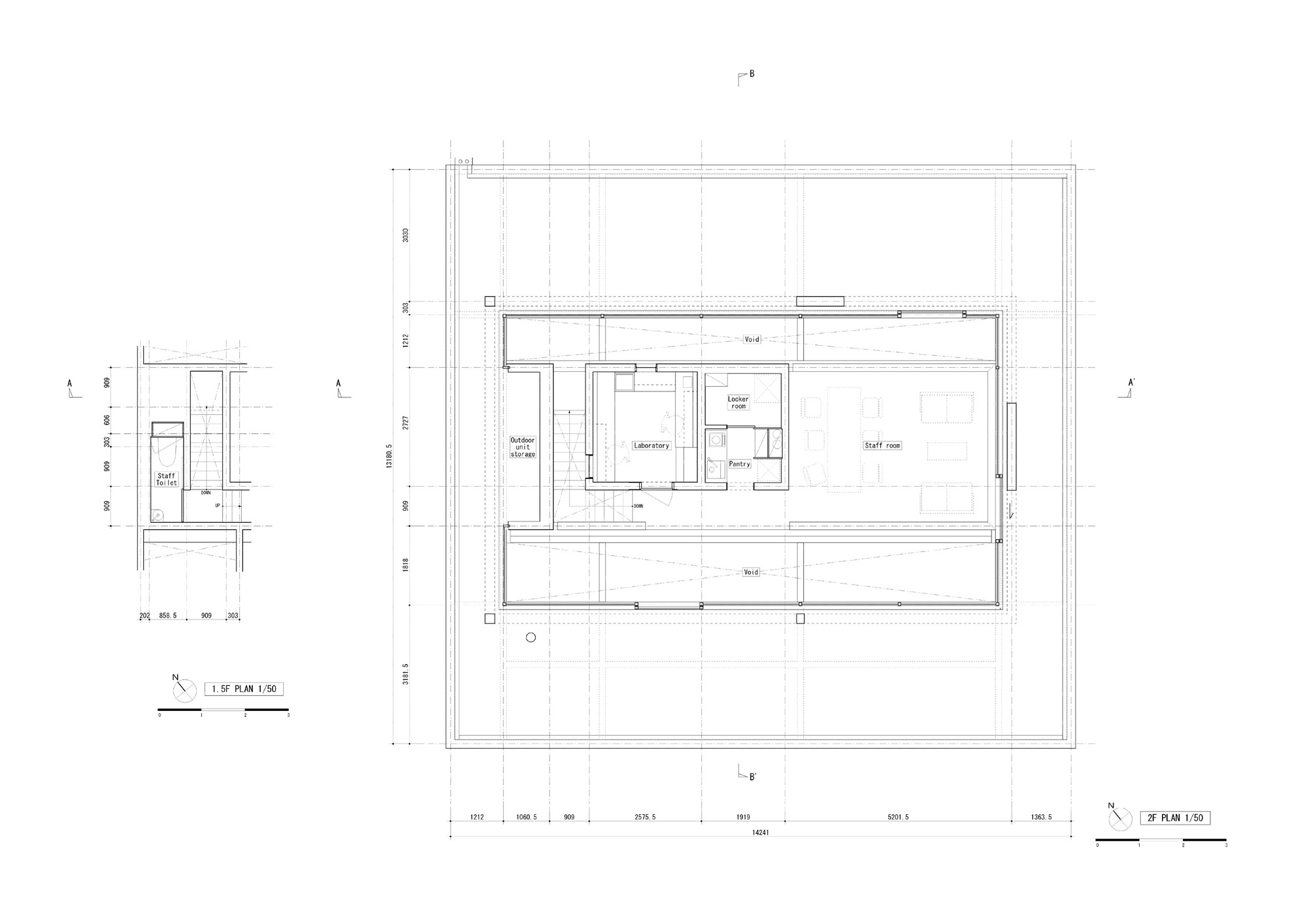
The building is a 2 storey wooden structure, where the 1F is the clinic space and the 2F is for the staff. The 1F arranges the sterilization, X-ray, medical record storage and toilet space in the center of the building and acts as the core. The perimeter walls are entirely glass fronted, and a terrace connecting the examination room and waiting area extends this built form outward, and a garden surrounds the building on all sides.
Furthermore, a big ‘hat’ is put atop the entire building, where the hood of the ‘hat’ forms arches around the periphery. These arches are created by pulling the hood into an arc that bridges two points. Born from this type of built form, is a vague territory in between the inside and outside is created, that mediates and protects the building from the harshness of the snow, rain, summer solar radiation and the winter Northwest winds blowing down from the Yahiko mountain. This buffer space has a rare quality of providing privacy to the people in the waiting and examination rooms, while also allowing them to freely enjoy the four seasons.
Thus this design seeks to create a clinic: 1. which feels the change of time and seasons 2. where the waiting experience for patients feels like time spent at the park; with a good book and comfortable seating. 3. Blurring the boundary between the inside and outside by pulling the material of the deck floor inside, and using the large arch openings as a transitional element to bridge the interior built envelope and the exterior natural environment 4. Provide a protected outdoor space from where the patients can carefree, enjoy nature, sunlight and rain. 5. Attract chance encounters between the people walking about around the site, and the occupants of the building. 6. Create a living room- like space, where people, in the middle of their walk, can stop by and sit on the couch, read a book, or wait for their appointment. As you pass through the trees, the arches and stand under the ‘hat’ you meet different people, each enjoying the space differently, all the while being surrounded by a pleasant breeze and the sounds of playing children.
客服
消息
收藏
下载
最近



























