查看完整案例


收藏

下载
©Hufton+Crow,Nelson Kon
我们所处之时间、空间、地点,皆是物质存在的证明,而建筑作为空间的框架,其核心意义就在于记录了人类行为的精神文明与历史轨迹。因此,在法国建筑师、普利兹克奖得主 Christian de Portzamparc 看来,人类与环境、场地以及空间存在着一种不可分割开来的交互关系。
©Hufton+ Crow,Nelson Kon
Christian de Portzamparc 将空间描述为事物之间的空隙,它既可承载风和光线等无形的元素,也可成为物与物之间沟通的交流渠道。在这一认知前提下,他以空间为切入点来设计建筑,并将艺术性的思考和审美融入其中,建立了虚实相结合的创作体系与个人风格。
0 1 Cidade das Artes 巴西·里约热内卢
©Hufton+ Crow,Nelson Kon
Cidade das Artes 是位于里约热内卢西南区的现代音乐厅及文化综合体,建筑坐落于海岸与山脉交汇处的一片平地之上,且周边环境相对单一,因此音乐厅将在建成后成为该区域主要的文化交流中心,驱动规划新城的未来发展。
©Hufton+Crow,Nelson Kon
音乐厅的主体漂浮于由 Fernando Chacel 设计的热带水上花园之上。音乐厅、排练室、展区和餐厅等配套设施均顺应曲线形式的混凝土结构汇集在 10m 高的平台,并通向开放性的观景视野,一览绮丽的山海景观。Christian de Portzamparc 借助柔和的建筑线条呼应不远处的 Siera Atlantica 山脉,以此致敬场地的历史。
©Hufton+ Crow,Nelson Kon
左右滑动查看更多图片
02Christian Dior Flagship
韩国·首尔
©Nicolas Borel
清潭洞是首尔市极负盛名的商业区之一,这座如同大型雕塑一般的建筑是时尚品牌 Christian Dior 的首尔旗舰店。Christian de Portzamparc 巧借流动的曲线呼应时装设计师常用的白色织物,使其契合品牌理念的同时,从鳞次栉比的现代建筑中脱颖而出。
©Nicolas Borel
建筑外部的白色表皮由模压成型的玻璃纤维外壳拼合而成,高精度的分区装配使建筑外立面呈现出一体化的造型。白色外壳里层的金属丝网则重现了品牌经典的编织图案,回应品牌的发展历史与审美价值。
©Nicolas Borel
左右滑动查看更多图片
03Chateau Cheval Blanc Winery
法国·波尔多
©Erik Saillet,Max Botton
世界葡萄酒中心波尔多聚集了超过九千座葡萄酒庄和葡萄园,Bernard Arnault 在混凝土大桶酿酒方面有着丰富的实践经验。于是他委托 Christian de Portzamparc 设计了一座兼顾生产、销售、品酒和观景功能的综合性酒庄,借助定制的酒桶提高产量和效率,扩大品牌的影响力。
©Erik Saillet,Max Botton
建筑内外空间的和谐关系是 Christian de Portzamparc 的一贯坚持,他将自然界的曲线元素转变为建筑优雅的形体线条,并借助室外楼梯通向绿意盎然的屋顶花园,在建筑与环境之间建立柔和的过渡关系。Chateau Cheval Blanc Winery 是葡萄酒行业内为数不多的 HQE(High Environmental Quality)认证建筑之一,对建筑的可持续发展起到了重要的推动作用。
©Erik Saillet,Max Botton
左右滑动查看更多图片
04 Luxembourg Philharmonie 卢森堡·卢森堡市
©Wade Zimmerman,Christian Richters
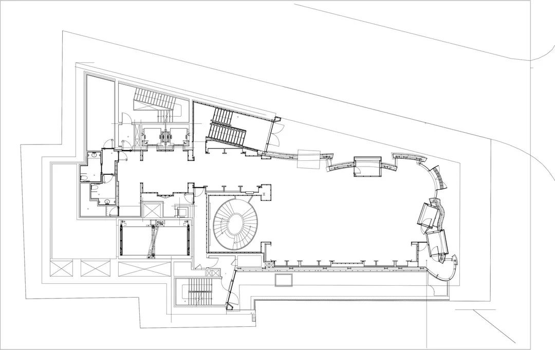
卢森堡爱乐乐团位于被欧盟行政办公楼包围的城市广场中心,Christian de Portzamparc 在最初的规划阶段希望借助密植的乔木形成相对独立的建筑背景,但由于场地面积的限制,他创意地使用 827 根巨型的立柱取而代之,在过滤外部光线的同时保证了内部纯粹的空间氛围。
©Wade Zimmerman,Christian Richters
建筑的室内大厅嵌入了一条独特的室内天桥步行系统,并通过环形的交通流线环绕着位于中心的演奏厅。天桥内侧不规则的墙体上点缀着垂直方向的可变色光带,每当夜幕降临时,便会在大厅内投射出绚烂的灯光效果,演绎极具个性的艺术氛围。
©Wade Zimmerman,Christian Richters
左右滑动查看更多图片
编辑:Neiwai
撰文:YouChuan
校改:YueQiu
编排:Holy
版权:Christian de Portzamparc
原创文章,不支持任何形式的转载。
客服
消息
收藏
下载
最近









































































