查看完整案例


收藏

下载
Casa ANM a Ragusa
Sull’altopiano ibleo, in un’area a sud della città di Ragusa, il progetto della casa ANM affronta il tema del completamento di una masseria degli inizi del novecento mediante un sistema di operazioni teso a restituire qualità all’intero complesso immobiliare ed ai suoi spazi di pertinenza esterni. Il progetto si inserisce nel contesto agricolo circostante come un elemento eterogeneo ma chiaramente identificabile, di forte caratterizzazione del paesaggio esistente e dei suoi naturali processi di trasformazione.
Il progetto si concretizza attraverso tre operazioni principali: l’addizione esterna di un nuovo corpo di fabbrica, la sistemazione degli spazi esterni mediante la realizzazione di una piscina e il riuso di un container, un’addizione interna.
Mediante la demolizione di alcuni corpi di fabbrica minori ed il successivo riutilizzo sotto altra forma del loro potenziale edificatorio, è stato realizzato un nuovo volume che contiene la cucina e alcuni locali di servizio per la casa. Questo ha forma trapezia e si affaccia sulla campagna generando nuovi spazi di relazione con gli edifici preesistenti ed il paesaggio circostante;
- La sistemazione degli spazi: nuova geografia artificiale
La demolizione dei due fabbricati accessori ha liberato uno spazio centrale compreso tra gli edifici principali ed i muri di cinta e ha permesso la costruzione di un podio che accoglie una piscina ed un solarium. Su questo è stato ricollocato un container rinvenuto abbandonato nella campagna. Il container sostituisce e completa il preesistente muro di cinta in pietra a secco assolvendo al contempo alle funzioni di locale tecnico per gli impianti, deposito attrezzature e servizio igienico a servizio della piscina;
- L’addizione interna: costruire nel costruito
All’interno di uno dei fabbricati preesistenti viene realizzata una “scatola” in legno che accoglie il living, lo studio ed i servizi, soluzione alternativa ad una divisione interna di tipo convenzionale che avrebbe snaturato lo spazio che invece risulta fortemente caratterizzato dalla presenza di un grande pilastro centrale in pietra calcarea dura rastremata verso l’alto.
项目完工照片:
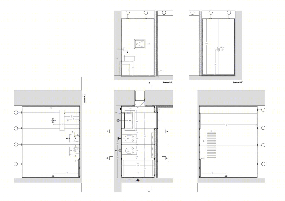
平面与结构图:
效果与概念图:
待补充……
坐落:Ragusa / Italy / 2016
语言:English
阅读原文
客服
消息
收藏
下载
最近














































