查看完整案例


收藏

下载
RENAISSANCE INTERIOR DESIGN
JiangYin 2023
项目坐标 | Location:江阴
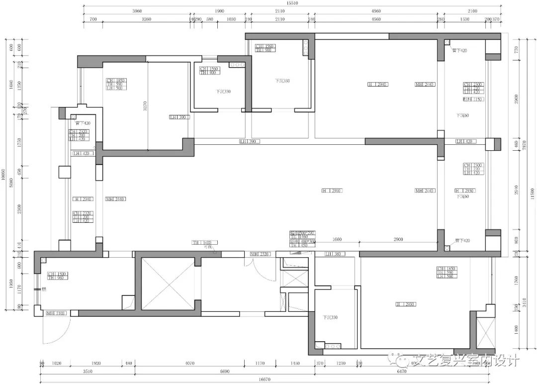
项目面积 | Square Meters:180
m²
项目类型 | Property:平层
设计时间 | Time:
2023.06
设计机构 | Studio:文艺复兴室内设计
设计团队 | Team:林恺、张倩芸、承佳欢、周丽华
文艺复兴创立于二零一七年,是一家提倡回归到使用者本身,追求多元化创意的环境艺术设计公司。提供商业与住宅的设计及落地服务。设计的本身是一种探讨和研究的过程,我们致力于建筑与光的积极互动,生活方式与空间的碰撞交叠,尊崇欧几里得《几何原本》,参询自然,这就是设计的开始。
RENAISSANCE INTERIOR DESIGN
文艺复兴室内设计
JIANGYIN.
客服
消息
收藏
下载
最近

















