查看完整案例


收藏

下载
天空之城
City of sky
一线美景入窗 一城繁华尽揽
项目简介
Project Introduction
项目地址 / Project Address:江南里 6-1-1601
设计主题 / Design Theme:现代极简
项目面积 / Project Area:93㎡
施工工期 /Construction Period:50 天
设计大咖 / Chief Designer:苏工 / 龙游设计团队
主要用材 / Main Materials:石材 艺术漆 护墙板 玻璃砖 藤编等
顶层择居
天空之城
93㎡尽显 120㎡宽阔之姿
奶油色温柔包裹
添一匙梦幻的香甜
Penthouse
City of sky
93㎡is as large as 120㎡
Cream wrapped gently
Add a spoonful of dreamy sweetness
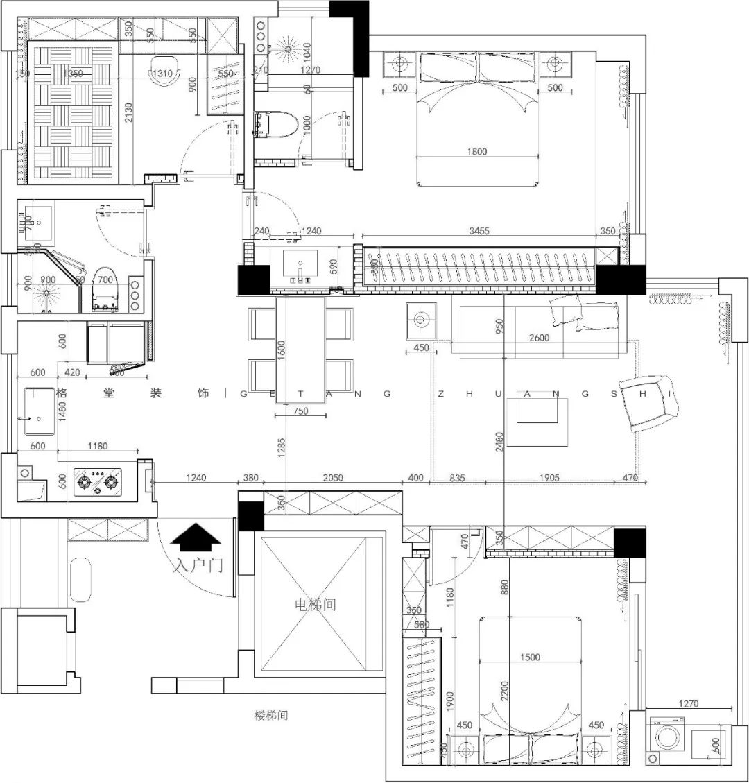
Plan
功能布置说明
93㎡的房子,兼备了大户型的功能,有 3 房 2 卫一个大阳台。户型非常适合一家四口居住。但是总体面积偏小,就让每个房间、卫生间、厨房都会偏小。内卫洗手盆,马桶,淋浴挤在 4 个平方的空间里太拘束。所以在格局设计上做了大调整,把星级酒店的理念植入了主卧室里。把洗手盆挪到了入门处,就有 1.2 米宽大的洗手盆,内卫也有一个 1.1 米宽的淋浴房。透过洗手盆的玻璃砖还能跟外面的餐客厅对话。厨房、餐厅、客厅在动线上做了一条,让家具都靠墙上,把更多的空间给与了客餐厅。让入门的整体视线就有了大户型的既视感。跟洗衣区打通的客厅也让客厅能有更多延伸空间感。此套房子的最大特点是顶楼,楼层高能看到远处的山,整个城市都在眼皮底下。
设计前
设计后
LIVING ROOM
客厅
—
顶层择居,天空之城。93㎡尽显 120㎡宽阔之姿。客厅与阳台贯通,视线开阔,阳光涌入。客厅的阳台做了一块大玻璃,让视线直接无障碍的延伸,让户外的景色一览无余。门打开的一刻,窗帘缓缓的打开,让人恍若在云端,疑惑自己活在天空之城。
储物式电视背景墙满足多重收纳需要,白色与木色清雅交织,演绎自然清新的生活美学。
无主灯设计,视觉上拔高层高的同时,独具高级氛围感。整体高级质感的奶油色温柔包裹,软糯的弧形沙发更添一匙梦幻的香甜。
时尚单品梦幻帘,开合之间,光影游弋,朦胧之美,意境横生。
The top floor is the city of sky. The living room is connected with the balcony, with a wide view and the sun pouring in. You can enjoy the prosperity of the city by sitting on the viewing platform with excellent view. The cream color of the overall high-level texture is gently wrapped, and the soft waxy arc sofa adds a spoonful of dreamy sweetness.
RESTAURANT
餐厅
—
木色护墙板大面积运用,好似参天大树平地起,细腻的木纹洋溢着自然与生机。
餐厅融入藤编、亚克力、玻璃等时尚元素,减少空间量感,入目轻盈开阔。
单列玻璃砖做隔断,透光不透影,与主卧洗手台两相映照,妙趣横生。
The large area use of wood color dado is like a towering tree rising from the ground. The delicate wood grain is permeated with nature and vitality.
The restaurant integrates rattan weaving, acrylic, glass and other fashionable elements to reduce the sense of space and make it light and open to the eye.
KITCHEN
厨房
—
开放式厨房设计,线条极简利落,哑光质感高级,邂逅优雅生活。一扇窗,一幅大自然的杰作,四季流转,美景天成。
The open kitchen is designed with simple lines and advanced matte texture, meeting the elegant life.
A window, a masterpiece of nature, flows through the four seasons, and the beauty is natural.
MASTER BEDROOM
主卧
—
主卧延续整体奶油色调,满目温柔,材质上乘。
床背景采用硬包设计,上下错落。石榴裙色延伸出的环抱状包裹,塑造精致立体层次。
点缀轻奢风鱼线灯,优雅中浸润一丝精奢腔调,满载现代风情。
The master bedroom continues the overall cream color, full of tenderness and superior materials. The bed background is designed with hard cover, which is scattered from top to bottom. The embracing package extending from reddish brown shapes a delicate three-dimensional layer.
SECOND BEDROOM
次卧
—
床头背景三色碰撞,层次丰盈。黄铜鱼线灯的点缀增添一丝复古气息。
木色相遇碧绿,自然清新,每一寸都流淌着勃勃生机。
阳台极简素雅,洗晒功能一体。绝佳的视野景观,舒展情怀。
The bedside background is in three colors, with rich layers. The decoration of the brass fish line lamp adds a sense of retro style. The balcony is very simple and elegant, and the washing and drying functions are integrated. Excellent view landscape, stretching feelings.
STUDY
书房
—
榻榻米与书桌组合,高效利用空间。白色与木色为主基调,散发着细腻与温暖。
The tatami is combined with the desk to make efficient use of space. White and wood color are the main tone, emitting delicacy and warmth.
HALLWAY
玄关
—
木色护墙板一体延伸,空间和谐统一。自然的肌理质感,至简至美。
The wood color dado extends as a whole, and the space is harmonious and unified. The natural texture is simple and beautiful.
MASTER BATHROOM
主卫
—
高级灰添一匙温柔奶油色,优雅之中透着丝丝甜蜜。平滑镜面与时尚肌理的玻璃砖比肩,随光影变换,绽放浪漫。
A spoonful of soft cream color is added to the high-grade gray, which is sweet in elegance. Fashionable glass tiles change with the light and shade, and bloom romantically.
GUEST BATHROOM
外卫
—
高级灰演绎绅士品格,一抹靓丽的爱马仕橙惊艳岁月。
The senior gray represents the gentleman’s character, and a touch of beautiful Hermes orange surprises the years.
LITTLE SCENERY
小景
—
顶层择居,天空之城。93㎡尽显 120㎡宽阔之姿。奶油色温柔包裹,添一匙梦幻的香甜。
The top floor is the city of sky. 93 ㎡ is as large as 120㎡. The cream color is wrapped gently, adding a spoonful of dreamy sweetness.
衢州总公司:衢州西区财富中心 3 号楼 2 层
龙游分公司:龙游龙翔路 443-449 号
常山分公司:常山县东方广场紫港街道琴雅路 50 号
江山分公司:江山市锦绣大道东方广场 8 号二楼
开化分公司:开化县金佰汇广场 2 幢 2 楼 239-243 号
客服
消息
收藏
下载
最近














































