查看完整案例


收藏

下载
此片查找的关键词:
清新北欧,住进美梦
# 案例信息 #
项目地址 | 府前1号2#
户型面积 | 145㎡
设计主题 | 北欧风格
主要用材 | 瓷砖、地板、玻璃砖、乳胶漆
装饰公司 | 格堂装饰
半包费用预计 | 15万
项目经理 | 施申和
本案设计师 | 郑春胜
设计师说 | 爱是春日细雨,是夏日和风,是秋日果实,是冬日暖阳。
三餐四季,花香常伴。
▼▼▼
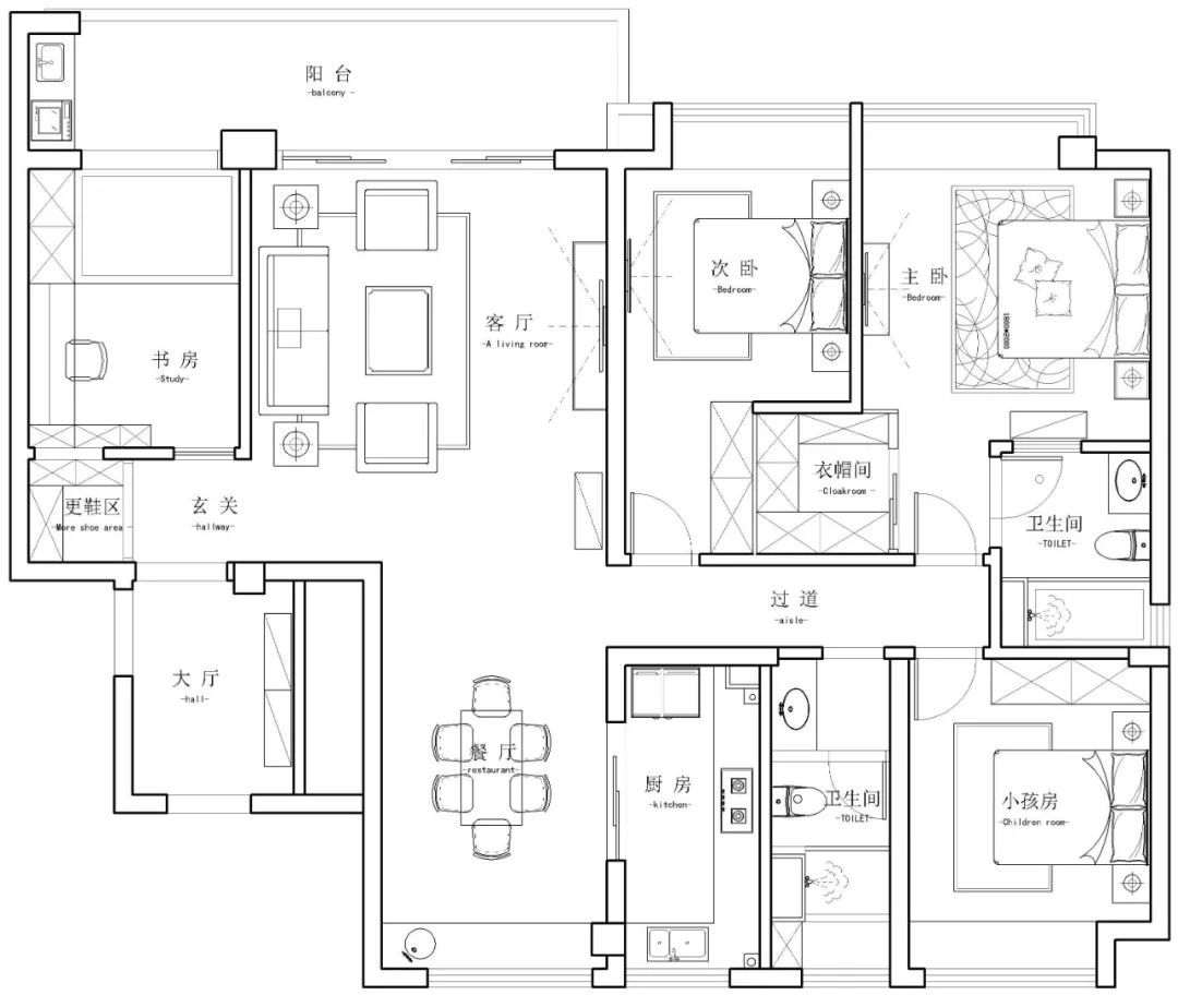
平面布置图
▼▼▼客厅
客厅以木地板上墙打造沙发背景,温润的木质肌理与优雅的灰色搭配,带来生机与温暖,呈现冷暖平衡的和谐之美,营造宁静雅致的休憩氛围。
粉色单人椅,时尚装饰画,美丽的花束与清新的绿植,撩人心窝。
▼▼▼餐厅
餐厅以优雅的灰色为基调,搭配个性肌理的石材餐桌,粉黑双色黄铜座椅,清新的花束,摩登装饰画,整体呈现精致优雅的用餐氛围。
▼▼▼厨房
灰色长条墙砖带来视觉上的延伸感,组合洁净光面的白色系整体橱柜,整个空间清新文艺,休闲而浪漫。
▼▼▼主卧
深蓝背景以包容姿态进入视野,质感出挑,带来非凡的时尚感。
粉色丝绒大床充满奢华质感,宛如宝石般美丽夺目。
简雅的梳妆台,白与粉的绝佳配色甜美而浪漫。
轻盈的羽毛吊灯以独特造型凸显美感,成为诗意的存在。
▼▼▼次卧
靓丽橘与素雅灰的质感搭配,清新梦幻,卡通灰猴床边桌,成为空间里的点睛之笔,趣味又可爱。
▼▼▼儿童房
淡淡温柔的粉色系空间,白色清新的蕾丝床品,精美可爱的装饰物件,每一处都充满着甜美浪漫,营造趣味的童话梦境。
▼▼▼玄关
视线尽头的现代装饰画个性迷人,独特的吊顶造型也充满了时尚感。
▼▼▼阳台
宽阔的阳台将美景尽收眼底,洗晒功能齐全,尽享休闲时光。
▼▼▼外卫
外卫干湿分离,灰色系空间优雅美丽。
梳妆镜、毛巾架和浴室柜的拉手细节,结合质感的黄铜金属元素,彰显轻奢品质。
▼▼▼内卫
黑与白的极致组合,碰撞出时尚摩登气质,组合优雅的灰色浴室柜,宝石形黄铜梳妆镜,轻奢格调扑面而来。
▼▼▼软装搭配
爱是春日细雨,是夏日和风,是秋日果实,是冬日暖阳。
三餐四季,花香常伴。
格堂贺岁大片连续放映,记住此片查找的关键词:
清新北欧,住进美梦!
客服
消息
收藏
下载
最近































