查看完整案例


收藏

下载
静谧诗意
东方与优雅
OPIENTAL AND ELEGANCE
在艺术与审美的结合上
多元化的融合让空间实现和映射
出东方文化中的浪漫情
怀
本项目位于美丽的七彩云南昆明.坐落于滇池路华夏.天璟湾别墅区,
入户花园应用中式园林院落居住文化,
贯通自然之道,宁静致远,在喧闹的都市中给人以平静祥和,静中取幽的宁静之美。
△负一层花园
挑空设计的客厅,优雅温润的色调,柔和舒适的配饰。在观影之间、空间之间、虚与实之间,通过石材、木材、绿植相互融合,美好共生。结合现代中式元素,营造出繁华似锦,层台累榭,错落有致的空间氛围感,让整个空间极具东方韵味。
客厅以干净素雅的米白色硬包结合暖色系墙板硬装作底,搭配上深邃墨绿沙发和精心挑选饰品陈设加之鲜明的色彩层次,丰富的家具配饰元素及质感,体现出独特的当代东方美学。
△负一层客厅
禅意空间
在静谧的茶室空间中将阳光与自然的气息引入室内,无论是从文化角度还是生活体验,这个空间都在诉说着人渴望寻找内心的宁静与归心。光影交错,万物静止,每处细节都以强有力的东方笔触写意文化之美。
△负一层茶室
休闲空间中融入了中国人喜爱的颜色
‘红色’,红色最具刺激性,象征着热烈,让人联想到了吉祥、喜庆和美好,红色是中华民族最喜爱的颜色,甚至成为中国人的文化图腾和精神皈依,代表着喜庆、热闹与祥和。中国人近代以来的历史就是一部红色的历史,承载了国人太多红色的记忆与情怀。
△ 一层休闲空间
餐厅以序列式隔架为空间隔断,将中西厨有机结合,超大圆桌足以接待亲朋好友,窗里窗外,阳光尽洒,光影交错,万物静止,呈现出别致的东方意境,雅意中带着静谧。
△ 一层餐厅
在卧室的私密空间里,强调多功能的互动关系,将书房、更衣沐浴有机融合。在不同空间中体现出相同材料通过肌理、深浅、纹理让空间得以延续。“向阳而生,向心而居”此处不只是休息之所,更是心安之地。呈现出精致简洁的美学品质,前卫的艺术精神气质,布局与分区、功能与美学的完美平衡、肌理的自然诠释、光影的悱恻悠扬,于浅吟低唱中直抵美的内核。
△三层主卧
儿童房从男女孩童的性格差异出发,选择不同的色彩表达童趣梦。女孩房以粉色为主题,借儿童所爱之物为灵感,在其中创造二维与三维联动。粉色的墙咔采用错层手法“弱化”了墙壁,这间卧室也因此而生动起来。手办摆放在床头柜默默陪伴着小主人度过快乐的每一天。
△二层女儿房
老人房,温和而舒适,以质朴清雅调性铺陈,柔和的面料肌理浸润出静谧的生活氛围。点到为止的搭配气氛,简单、方便、舒适,当时间与情致于其间细腻流转,居者感受到的是一份从容与安定。
△二层老人房
木色光影的对话,光影婆娑的室内空间带来更开放,生态、包容的氛围。整个空间回归质朴,选用了木格栅,原木这几种基本的材料,创造更具亲
和
感和包容感的风格体验,羽毛似的琉璃灯为空间增加了更多有趣的互动,栩栩如生。
△负二层车库入户
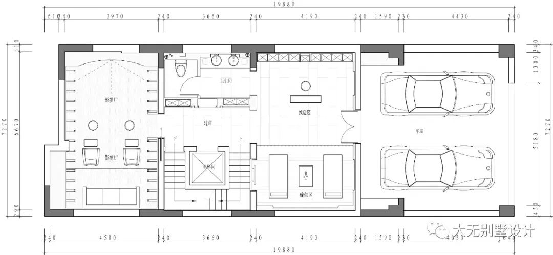
△ 地下负二层 | 平面布置图
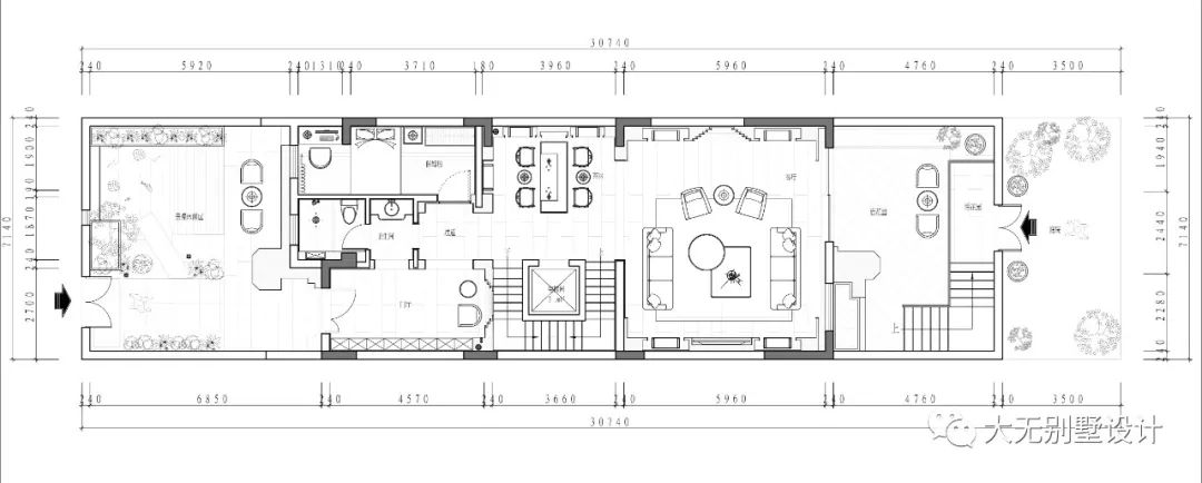
△地下负一层 | 平面布置图
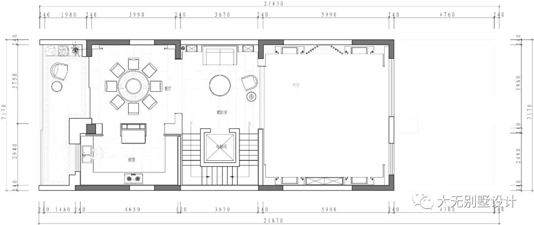
△一层 | 平面布置图
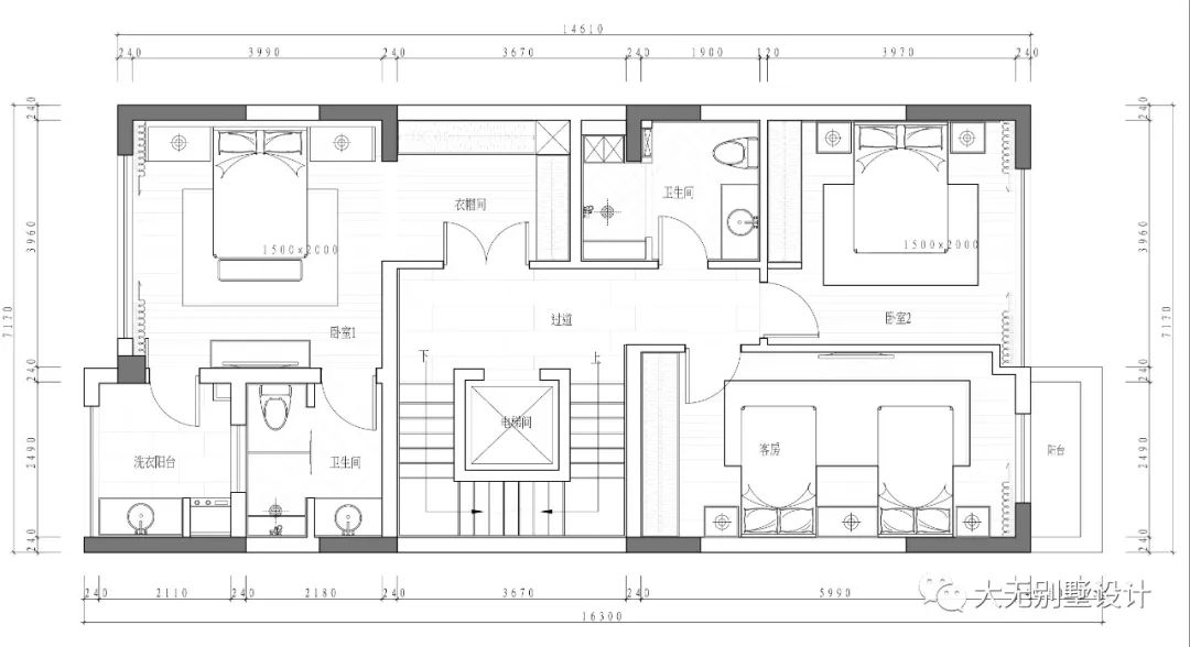
△二层 | 平面布置图
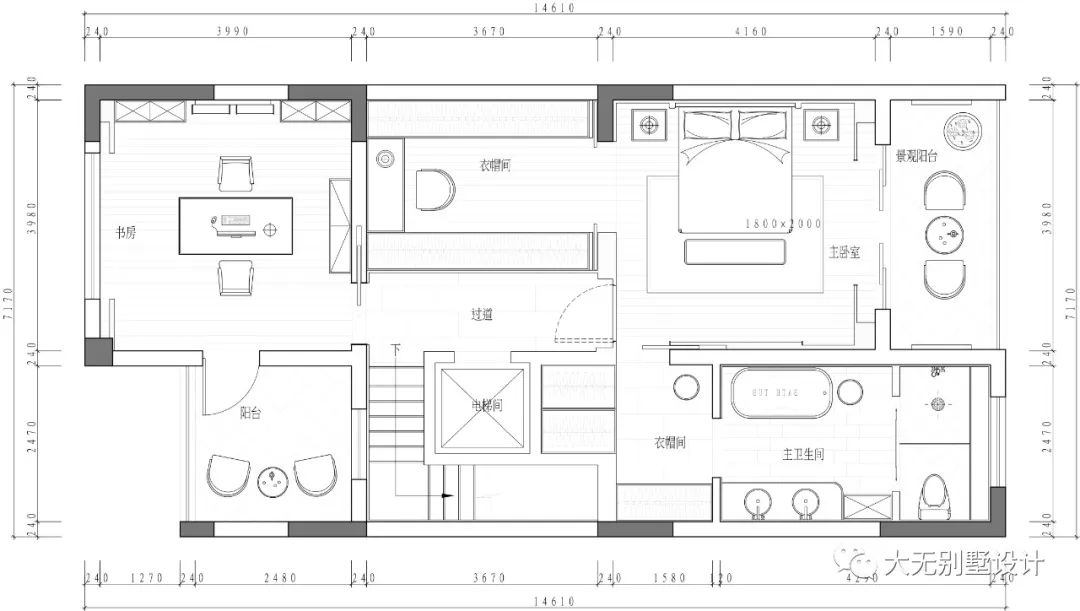
△三层 | 平面布置图
项目名称:华夏.天璟湾
项目地址:云南.昆明
设计面积:680㎡
项目时间:2021年
项目设计:赖小龙
摄影团队:江河
设计/施工单位:云南大无装饰设计有限公司
设计师简介
赖小龙
云南大无别墅设计创始人兼设计总监
设计师理解:
设计应先思考人与生活的关系,生活与空间的关系,让空间为人而活,让空间活的精彩,唯有不停的钻研求变,不断地从全方位思考,尝试不同的可行性,反复地去探索,融合和创新,从空间中‘形态’,‘色彩’,‘格调’,‘功能’,触动客户的心灵
客服
消息
收藏
下载
最近






































