查看完整案例


收藏

下载
现代简约的风格,
勾勒出的是一个精致优雅的轻奢家。
时尚与美学在其中跳跃,
却又不失家的温馨与实用。
Design company:阮秀仓设计事务所
Style positioning:现代
简约风格
Project area:160
㎡
Project site:
合肥市当代MOMA
风格设计特点
Style design features
—
本案整体风格为现代简约,业主希望在简洁大方的基础上,又有生活情调。居家实用却又不失精致,多变而自由,高规格演绎都市美学。
●
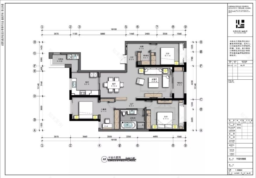
平面布局图
▲入户玄关
—
入户玄关是一副简约大气的背景画,色彩搭配现代感十足,一进门就能感受到业主不俗的艺术品味。
▲客厅
—
客厅采用木质调和灰色调搭配,使整体显得简洁有质感。
木质感的沙发墙和电视墙相互呼应,灰色沙发恰到好处的融合在这个空间里,搭配现代风格的装饰画,呈现出一种简约优雅的舒适。
▲餐厅
—
餐厅与客厅构成一个通间,所以整体色调与客厅保持一致,在视觉上更显得空间开阔且敞亮。
▲主卧
—
主卧依旧是选择木色调作为床头背景,床品则使用大胆的撞色系,更显空间的质感和档次。
▲儿童房
—
儿童房使用粉色的墙面基础,床头搭配一些温馨的装饰,让儿童活动空间充满活力与童趣。
▲厨房
—
厨房色调延续了整个空间的风格。吊柜,橱柜,也能最大程度的满足业主日常所需要的厨具收纳。
▲细节
—
细节处流露出对生活品质的追求,虽然整体空间并无太多隆重元素的表达,但是已经蕴含了简约而不简单的生活真谛。
.
.
.
RXC设计
别墅/洋房/大平层等高端定制
客服
消息
收藏
下载
最近


















