查看完整案例


收藏

下载
-
浙江绍兴,有东方威尼斯之称,给人的感觉,安静而厚重,沉稳而有力量,清新而自在,世俗又不失风雅。既像亭亭玉立秀丽端庄的江南水乡女子,又像一位总是闪烁着真知灼见的智慧老人。绍兴的文化,在于眼前千回百转的至柔与至刚,这是东方文化的一个缩影,也造就了居住在绍兴的人透过水乡看天下的视野。
-
01
Foreword
前言
-
好的作品需要呈现
我们愿一直传承下去
古朴,奢雅,自然,厚重
这是传统中式风格的写照
从传统文化的内涵入手
在传统工艺、天然材质与现代审美之间寻找创新的结合点
让传统文化在创新中获得传承
-
p.01
02
FIRST FLOOR
一层
-
客厅仿佛有一条无形的中轴线
由上而下贯彻天地
再向四周蔓延出方正的庄严与稳重
端庄与雅致并存
诗意与气派相拥
-
p.02
p.03
p.04
p.05
素白抽象装饰画 韵律而又美感
考究的餐具透露出生活的品位
捕获繁华绚烂中的宁静详和
缔造韵味无穷的风雅境界
-
p.06
p.07
圆桌的柔和 搭配对称的柜体
方圆间皆是东方独有的生活情调
-
p.08
p.09
03
SECOND FLOOR
二层
-
深棕与米色的搭配开启新篇幅
主卧橡木色木地板,亲切、平稳
家具恢弘大气却也平易近人
谱写出独有的雅致与新潮
-
p.10
04
THIRD FLOOR
三层
-
暖黄的吊灯是生长在卧室的暖阳
照出一室慵懒与华贵
手绘山水画在尺度上呼应空间的氛围
映衬主人的气魄格局
-
p.11
p.12
p.13
05
THE BASEMENT
地下一层
-
茶室以灰石墙为背景
结合精致淡雅的原木茶桌
增加空间层次感 不显得厚重
简约却不简单
散发亦古亦今的层次之美
-
p.14
影音室以极具质感的皮沙发
金属茶几 美观舒适的单椅
以及造型独特壁灯搭配在一起
将空间视觉感与整体品质提升到最佳状态
赋予一种极致纯粹奢华的试听体验
-
p.15
p.16
p.17
明亮的艺术光照
古雅别致的圈椅
富有表现力的墙面挂饰
在过厅这一隅空间中体现了许多不同寻常的室内细节
让每个元素和谐地兼容在一起
-
p.18
p.19
p.20
06
ANALYSIS DIAGRAM
平面分析图
-
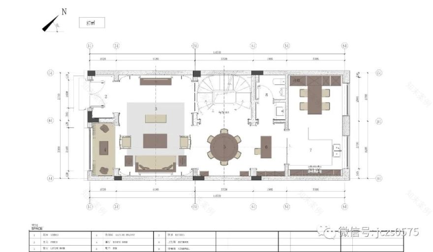
1F平面图 p.20
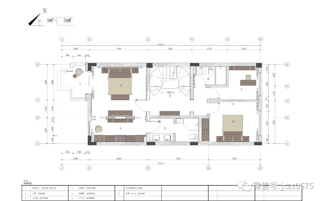
2F平面图 p.21
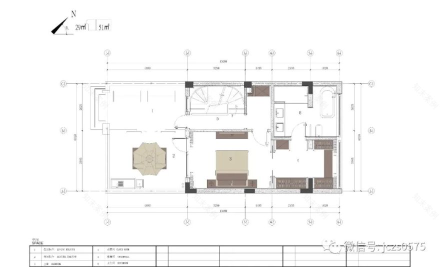
3F平面图 p.22
地下1F p.23
INFO
项目名称:景瑞尚府
设计机构:金蟾室内建筑
设计团队:陶海炎、吴建海、王鸿非、杨志亨、
沈奇斌、任筱萍
项目地点:中国 . 绍兴
项目面积:340 ㎡
客服
消息
收藏
下载
最近



























