查看完整案例


收藏

下载
现代生活压力大,
大家都在追求一种简约生活方式。
简约的空间里却有着不简单的家居生活,
体现出精致与时尚的生活气息,
更有舒适的幸福美感。
体现了居住者注重生活品位、健康时尚。
本案设计师将品味与美感相互融合,
让居住者可以享受惬意的生活。
一起来看看这样的【家】吧~
家
案例信息
面积:360㎡
户型:
6室2厅1厨4卫2阳台
项目名称:
天誉城市花园
风格:
现代简约风格
案例来源:金螳螂·家
常州天宁
店
业主需求
业主偏爱轻奢风格,倾向于高雅调性的色彩,它们简约、时髦且富有轻奢气质,运用在家居设计中,可以在呈现温馨大气的格调之余,又牵引出浓浓的时尚高雅范儿。
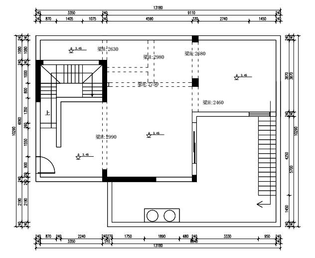
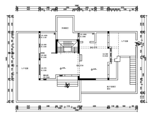
原始结构图
左右滑动查看更多楼层结构图(—1、1、2、3)
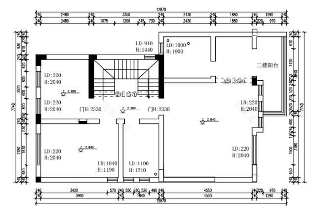
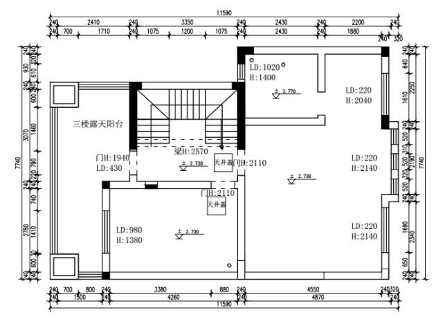
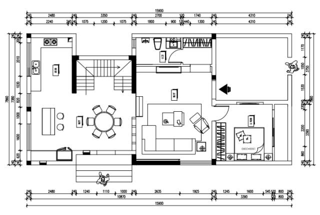
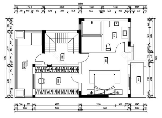
平面布置图
左右滑动查看更多楼层设计图(—1、1、2、3)
平面效果图
客 厅
低调轻奢风格追求以最简洁的设计手法来打造奢华气派,造型上的简洁是为了赋予材质上的奢华。
所谓材质的奢华并非指传统意义上的豪华与昂贵,而是指材质本身表现出的华丽感,我们以一件华丽贵气的晚礼服来打比方形容低调轻奢材质的应用。
餐 厅
轻盈豪华的餐厅,采用白色橡木精致的方盒,然后搭配上海黄梨花的颜色复古,整个餐厅橱柜让主人清新。经过精致的桌椅布局,优雅浪漫,更加渲染浪漫的就餐。
主 卧
轻奢风格家居多以金属色和线条感营造的豪华感,简洁而不失时尚这种搭配令客户舒。
卫生间
卫生间设计以实用为主,简洁的洗漱柜,大大的洗漱镜,视觉上拉伸了空间感,灰色的墙面让整体看上去清爽整洁。
次 卧
黑白灰,简单的色调,简约的风格,沉静而不喧闹,这样独具精心养性的港式风格的家居,带给你不一
样的生活享受,让你的生活不仅仅是生活,还是一种艺术。
次 卫
这间卫生间风格有所不同,选用沉稳的大理石墙地面,凸显空间低调奢华的气质,下方的木质收纳柜,干净靓丽,唤醒了感官,自然舒适,迸发清新活力。圆形的洗漱镜也是可爱的要紧,蛮有格调的。
地下室
这是地下室的一隅,一脉相承的极简风格,人字形地板,错落有致,纯净的素色组合搭配,打造舒适宜人的居家氛围。地毯、沙发的大面积浅咖、灰色色调营造了空间柔软感,创造出一种和谐而舒适的美。
每一个几乎都做到了美观与实用兼具,
亲朋好友汇聚一堂,必充满心灵的碰撞!
看了这么多案例,哪个适合你呢?
快来测一测你家装修需要花多少钱吧?
客服
消息
收藏
下载
最近






















