查看完整案例


收藏

下载
透过建筑本质,还原内在空间精神。△项目视频,是爱与情感的交融之所。还原空间的本质,减少不必要的物件,让生活和欲望变得简单,更加安逸充实。
家应该是包含空间、色彩、情感的多维度立体感受的精神家园,将自身融入其中,感受细腻入微的材质、肌理、构造之间参差质感,细查光影在不同时刻投射的几何形状,寻找人与空间最恰当的相处方式。
日落时的阳光穿透而入,矩形的透光口随着光线的移动投射出扩散的、隐约的、灵动的光影。清光逸影,于明暗之间。
一方火焰,一株雅枝,一扇全景,唤起内敛的优雅自性。随着时间推移,与居者互相之间彼此关联,产生情感的共鸣和对生活理解的肯定与尊重。
若隐若现的室内灯光透射而出,简约有序的光线恰如其分地给予了空间自然又温润的留白意境美。
规则的几何线条互相交织、分离,构成一道道自由开放的体块,构建层次,保持通透,一步一景,温和谦逊中反而释放出更大的空间和能量。
最重要的往往不是对空间的华丽演绎,而是还原生活最真实的模样,从而创造一种和谐的秩序,一种有趣、可感知、被接纳的自由场域,日常生活,每个人都能找到家的温度。
沿着空间的脉络拾步而上,视线随之向上。倾泻而入的光影,予人温润柔和之感,将关怀藏于细节之中。
自由与秩序并存,将生活形式与空间功能的碎片编排成组,写成诗,绘成画,日常竟是如此美好。
我承认日光令我如此心动。它是一种精神上的品质——彼得·卒姆托
“家”是一面生活的镜子,或是慌忙杂乱,或是安定沉静,或是趋向物化,亦或是趋向精神。将风景从外部空间移至室内,甚至是心理空间,以生态隐喻性的视觉象征唤醒时空纵深的生命记忆。
于时光中温存,搭配一抹绿意,一种充盈、清润而淡然的私居之美,是空间同人的关系彼此依存且优雅愉悦。当内在变化反作用外部环境时,边缘不再受限,内与外之间所有意识形态,在看似毫无关系的模式中,却紧密结合。
内生与外延回应了“人、物、景、心”,各自的空间承载了不同维度的四者的内在关系与平衡。阳光透过纱帘,留下絮状的光影。自然与空间同质,怡情入境,与自然的对话,与真正的自我共处。
光线从清透的玻璃砖中随性穿梭,虚实错落,隐匿时光与温暖。
自然的气息与日常交汇,组合出一个个怡然而惬意的生活场景。
向上延展,意向自在,精神为上。
大量的留白,关于家的印象,都存在一个安静温柔的角度。低饱和度的配色与布艺的棉麻质感,带来视觉与触觉的双重柔和,给予心灵一番敞开的、平静的休憩之处。
浸润的阳光为空间铺陈美妙的光晕,微光拂过,脱不开这恣意的情绪,与安静的起笔。为时间哪怕停留一秒钟,也丰盈此生。
情绪从急忙、快节奏转向沉静和关乎体验的一切,使被忽略的、细微的感知开始显现,“家”的存在意义似乎再次得到诠释。
△负一层平面
△负二层平面
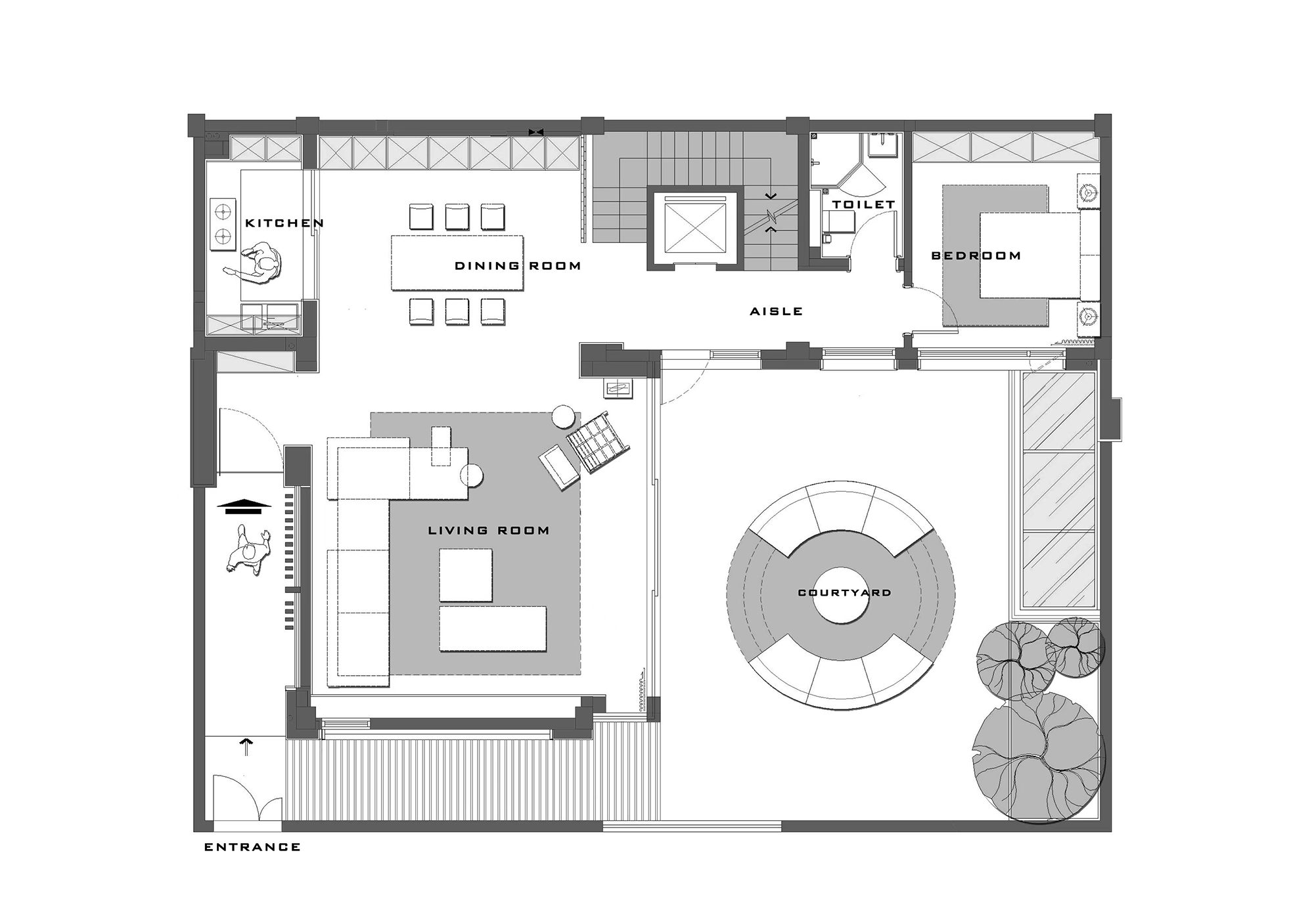
△一层平面
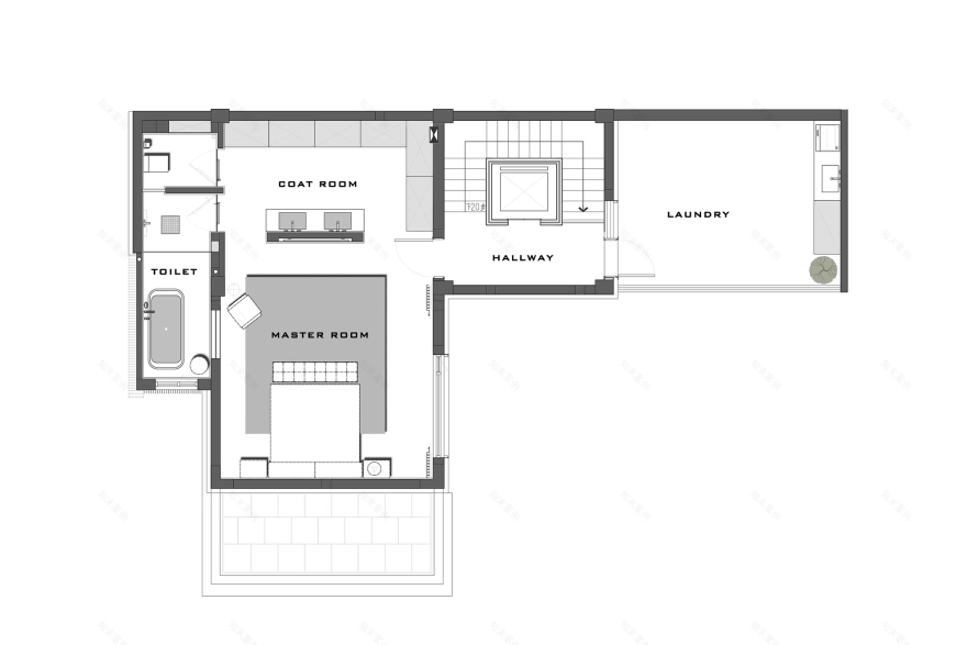
△二层平面
△三层平面
项目名称|苏州极简别墅
项目地点|中国 苏州
项目面积|500㎡
室内设计|石木空间建筑设计事务所(SMD)
主案设计|文秋
参与设计|封亚光团队
软装设计|WOW DECO 沃屋陈设
工程管理|青石营造
摄影摄像|桥墅
部分品牌|Minotti、Royana、Poliform、B-B Italia、b-o、Flos、HermanMiller、Magis、Heyea 和烨-Nacooc 那库、Moorgen、Porcelanosa 宝瓷兰
文秋
石木空间建筑设计事务所(SMD),专注现代风格私宅、商业空间、会所、酒店、艺术空间设计。在空间设计中运用建筑手法做室内,去繁留简,将“少即是多”融入到设计当中,演绎现代主义精神内涵。曾获英国伦敦设计奖金奖,意大利 A 设计大奖,法国双面神国际创新设计大奖,WYDF 年度大中华区室内设计金奖,中国国际空间设计大赛中国杰出豪宅设计师奖等。
青石营造成立于 2014 年,公司坐落于苏州工业园区金鸡湖畔,专注于现代风格别墅大宅,拥有近 10 年从事室内建筑装饰工程施工、管理经验,对现代风格设计及施工工艺有着执着的追求。擅长于新技术、新产品、新工艺的研究并实施于工程项目中。
客服
消息
收藏
下载
最近


































































