查看完整案例


收藏

下载
1. 设计背景
—
Design background
本案例为室内 249 平+室外 126 平的下叠别墅项目。男屋主是外地人,父母大概半年会来这里居住一次。有一个正在上幼儿园的小朋友,是其乐融融的幸福之家。重视家庭氛围的营造,尤其强调书香气息的熏陶,本案主题的关键词为:开放自由、理性克制。
2. 屋主需求
—
Homeowner demand
□
-1F 的会客和阅读。偶尔接待朋友到访。
□ 1F 用餐、休闲娱乐。家庭核心区的功能打造。
□ 2F 安静,睡眠。分区明确,舒适的睡眠环境。
□ 花园好打理,补充日常使用需求。
3. 户型分析
—
Original house type analysis
左右滑动查看更多
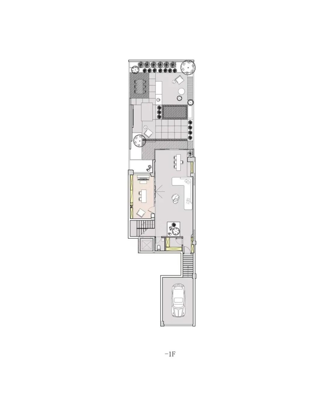
□ -1F 进深长、车库入户黑、入户方式过于直接。小房间与客厅的互动性差,独立厕所(不常用)占据过多空间,导致房间面积狭小。
□ 1F 厨房狭小、结构单一。
□ 2F 原始卧室空间布局的不合理性。
4.设计思路
—
Structural modification
左右滑动查看更多
□ -1 楼将房间厕所改移,使之与入户、杂物间形成一排独立空间,压缩空间进深,营造走廊式入户。在楼梯正对区域内打造一玻璃植物景观,成为整个空间的聚焦点,加强入户的仪式感。
□ 1F 基于业主的生活习惯,将原始厨房墙体重新拆建,打造开放式一体式厨房,增加了厨房的功能性和流动性。
□ 2F 重新规划卧室布局,控制睡眠区域,紧凑的空间更加精致,富有安全感。把空间腾挪给衣帽间和洗漱区,大大增强了空间实用性和有效性。走廊处设计了一个小水吧,除了方便日常饮水需求,更是别具风格,让生活有了一处忙里偷闲之所。
5. 设计呈现
—
Design presentation
根据屋主的审美与喜好,把意式简约定为总基调,以解构主义手法,增加了空间的律动感,呈现出低调含蓄的空间氛围。主体元素:灰色柔光砖、科技木 、艺术漆、奢石、无边框门。
01一
负一楼
使用低调沉稳的设计风格,通过室内外的景观呼应,打造一个舒适闲情的会客空间。身处其中,随时随地能感受到大自然的气息,可亲可爱。
02一
一楼
如果说负一楼是待人接客的舒适空间,一楼则偏重于家庭氛围的营造。
读书是最好的亲子活动,落地书柜、宽大的休闲沙发让人全身心放松,温暖的色彩搭配着软装设计,伴着窗外的阳光,营造出丰富且静谧的读书氛围。
03 一 二楼
04一
花园
项目地址 I Project address:四川内江
·颐和上院
面积 I Square Meters:249㎡+126㎡
项目类型 I Project type:别墅
服务团队 I Service team:内江十亩设计
-END-
#往期推荐#
HONOR
AWARDS
2017
第五届日立中央空调 Hi-Design 室内设计大赛“优秀奖”
2018 中国(四川)首届鲲鹏奖大赛公寓类组“优秀公寓设计奖”
2018 十间坊中国实战设计大赛“全国入围奖”
2018 十间坊实战赛事创意空间手作西南赛区“第一名”
2018 中国人文设计大赛晋级奖
2019 鲲鹏奖第二届中国室内装饰设计大赛公寓类组“银鲲鹏奖”
2019 鲲鹏奖第二届中国室内装饰设计大赛“中国百强设计师”
2019-2020 年度 40 UNDER 40 中国(四川内江)设计杰出青年
2019 华鼎奖金奖
2019 十间坊实战赛中国城市优胜奖
2019 金住奖-2019 中国(内江)十大居住空间设计师
2020
十间坊中国实战设计大赛“中国城市优胜奖”
2020 金住奖-2020 中国(内江)十大居住空间设计师
2020 幸福家年度公益设计师
2020 第二十届银杏金鸟奖最佳作品奖
2021 第 24 届中国室内设计大奖赛内江地区晋级设计师
2021 中国设计新青年西南赛区新锐奖
2021 年度 40 UNDER 40 中国(四川)设计杰出青年
2021 CBDA 第十三届照明应用设计大赛成都赛区佳作奖
2021 年度 40 UNDER 40 中国(四川内江)设计杰出青年
2021 GRP 中意国际设计金指奖
2021 HDA 她设计奖年度优秀作品
2021 金堂奖年度城市(内江)十佳
2021 中国室内设计大奖内江地区金十佳
2021-2022 年度上海国际设计周新锐设计奖
2021-2022 年度上海国际设计周匠心设计奖
2021-2022 年度上海国际设计周家装设计时代风云榜
2021 第 21 届成渝双城设计大展·银杏金鸟奖居住空间实景类优秀奖
2021 香港青年设计奖(YDA)暨香港青年美术设计大赛三等奖
客服
消息
收藏
下载
最近























































