查看完整案例


收藏

下载
设计鉴赏
项目介绍
【项目地址】: 内江邦泰社区
【项目面积】: 168
㎡
【硬装设计】: 十亩设计
【软装设计】: 十亩设计
【空间氛围】: 现代 | 活力
【主案设计】: 兰柳
【服务方式】: 全案设计+施工落地
-=平面设计图=-
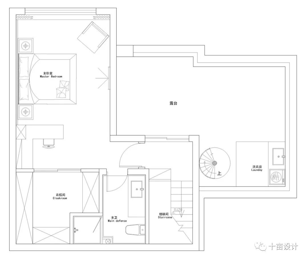
▲一层平面布局图
▲二层平面布局图
▲花园平面布局图
-
=设计说明=-
本案业主是一家三口,夫妻两性格外向,喜欢邀请朋友来家聚会、喝茶、户外烧烤,所以希望花园能有一个宽敞的聚会空间。男主人对影音设备非常“发烧”,在设计前期需要考虑设备的安放问题,又不失美观。
✄ 结构改造
○
本案为上下两层三室的户型,但是由于客厅的开间不够大,显得比较压抑,在体量上和跃层的户型部匹配,所以讲靠近客厅的房间打开,做成通透的玻璃书房,解决了一楼的采光、通风、空间压抑的问题。
○ 二层主卧面积非常大,通过空间的整理,划分为了4个功能空间:休息区、阅读办公区、衣帽间、卫生间。功能分明,能提升居住者的舒适度。
○ 花园分为 了两个区域,一是二楼的私人区(面积不大);二是三楼的聚会区,通过二楼搭建的楼梯上到三楼平台,设计成围合式的格局,四周的流水、花池将聚会平台包裹,临江的一面特意抬高了地面,让观景的视野更好。
✄ 风格设计
○ 用现代主义的手法,营造硬朗、个性化的空间。不锈钢、玻璃、亮光砖的运用,提升空间的轻奢质感。
○ 通过色彩测试,整体设计以黑白灰为主色调,加以饱和度比较高的橙蓝对比,让整个空间不失动感与活力。
○ 整体的设计线条偏硬朗,直线条,符合业主的性格,在软装上加入一些曲线的运用,缓和了直线条的单一节奏感。
-=效果图=-
这是十亩设计效果图集第
28
期 ~
A
wards
荣誉
2017年第五届日立中央空调Hi-Design室内设计大赛“优秀奖”
2018年中国(四川)首届鲲鹏奖大赛公寓类组“优秀公寓设计奖”
2018年十间坊2018中国实战设计大赛“全国入围奖”
2018年十间坊实战赛事2018年创意空间手作西南赛区“第一名”
2018年中国人文设计大赛入围奖
2019年鲲鹏奖第二届中国室内装饰设计大赛公寓类组“银鲲鹏奖”
2019年鲲鹏奖第二届中国室内装饰设计大赛“中国百强设计师
2019-2020年度40 UNDER 40中国(四川内江)设计杰出青年
2019华鼎奖金奖
2019十间坊实战赛中国城市优胜奖
2019金住奖-2019中国(内江)十大居住空间设计师
十分,是一种精益求精的态度。
半亩,是一方自在逍遥的天地。
以十分之态度,耕耘半亩之天地。
开成花,结成果,酿成酒,便是你想要的绚烂生活。
扫
客服
消息
收藏
下载
最近













