查看完整案例

收藏

下载
美学 /
品质
/情怀
/ 人文 / 设计
空间即风景/生活即风格
ShenZhen,2020,BENWU SPACE
主案设计 | 邱子桓
参与设计 | 邹沛聚 何佳林 郑建鑫
项目地址 | 惠州东部合正湾
项目面积 | 280m²
原始结构
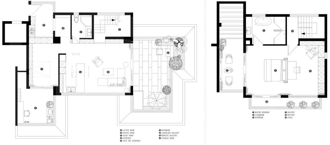
平面规划
空间是人活动的地方,睡眠只是其中一个使用功能。根据客户的使用特性,我们尝试消除房和厅的概念,整体划分为两个板块,私密空间和公共空间。将相类似的空间进行融合,形成整体,让空间变大。功能除了使用,我们希望它在日常之中也能成为空间装饰的一部分,展示出来。
空间形成
整个空间以胡桃木和灰色为基础色调,用蓝色元素来增加空间的时尚感,冷静中不失活跃。不做多余的装饰手法和故作姿态的材料堆砌,提倡让空间本身的结构语言相互对话,追求空间构成美感。
▼
丨
客厅
The sitingroom
丨
▼
丨
卧室
The bedroom
丨
▼
丨衣帽间
The cloakroom
丨
▼
丨露台
Gazebo
丨
▼
▼
BENWUDESIGN
项目咨询/设计请联系
本物设计
为懂你的隐性需求
Add:深圳 福田区 八卦四路 425栋 2F
- END -
客服
消息
收藏
下载
最近


















