查看完整案例


收藏

下载
美颂雅庭装饰,创立于 1993 年,引领家装行业 28 年生态发展,专注于为客户提供高品质工程装修服务。业务涵盖室内设计、全房整装、精装软装等。公司以数字管理为依据,以制度管理为核心,实现全程标准化服务和优质工程达标,为业主提供切实可靠的保障体系,严格确保工程施工质量和服务规范。
城投瀚城璞岸位于武汉市洪山卓刀泉,由武汉城投房地产开发有限公司建成,总建筑面积 250419,总占地面积 11809,共计房屋 620 户。
城投瀚城璞岸产品线丰富,为此我们特意带来了最新潮的设计,为装修再添新选择,准备好带我们回家了吗?重新装修不如从心装修,一起装修一起嗨!
我猜你知道设计是什么,弧度刚好不会撞到的桌角,随意关门时优雅的手感,设计师帮我们设计生活。接下来跟着小编来看看为你定制设计的方案吧!总有一款你会喜欢!
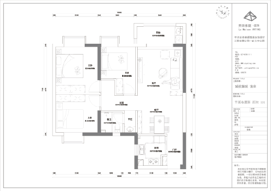
— 1 —
101 户型 建筑面积 101㎡,3 室 2 厅 1 卫。
因原始户型没有预留鞋柜,压缩厨房部分空间留出鞋柜位置,书房面积过小,将书房面积扩大,达到空间的最大理想化,沙发旁做玄关柜即达到了美化装饰,也具有一定的实用性。
在厨房满足生活需求的前提下,留出鞋柜位置,使鞋柜达到日常需求,厨房门改方向,使空间更加的通透,过道做背靠背柜子,加大实用性,书房做榻榻米更利于空间的利用和收纳空间的补充。
第一眼印象很重要,所以客厅设计必须有个统一的风格,能够表现你的生活品味。现代简约永远错不了,奶白高光 UV 柜体拼接棕木纹,几何线条干净利落,给人清新的时尚感。很多人误解定制电视柜只是多个柜子的排列组合,其实好的电视柜设计可以提升整个客厅的高级感。简约式电视柜,储物量丰富且布局严谨,橱窗也更适合展示藏品,特别适合收藏爱好者。
客厅不仅需要美观的外在,更需要舒适体验。布艺沙发是适合大多数家庭的单品,亚麻色、烟灰色等都是耐看百搭的色系。
皮沙发则更适合对品质要求更高的家庭,有时也是复古家居设计的亮点。通常大家都很注重电视柜和沙发背柜的设计。
其实小小的茶几也能影响到整个客厅的格调。木材和大理石永远能用最简洁的外观,达到最加分的效果。大理石与金属也是当下最火的搭档,纤细的金色桌腿交叉焊接,通透又稳定,给整个空间带来一种迷人的优雅气质。
— 2 —
118 户型 建筑面积 118㎡
3 室 2 厅 2 卫
本案为三房两厅两卫一厨的住宅户型,房屋建筑面积为 118m²。环境优美,以一个四口之家为依据进行设计,突出温馨且不失时尚之感。本案设计师以简洁明快的设计风格为主调,全面考虑,在总体布局方面,尽量满足四口之家生活上的需求,以暖色调为主,营造出一个温馨、健康的现代家庭环境。考虑功能方面,要充分满足业主的生活要求,客厅是交友娱乐中心,背景墙采用地板上墙设计,金属边框,既大方又有时尚感,灰色地板配合暖色乳胶漆饰面,营造出较好的居家效果。
面对家里堆积如山的杂物,你永远都觉得空间太小,采用组合式家具和储物柜也是增加收纳面积的方法,很好的利用可焕发超强功能,加设储物柜成为收纳能手,顶层做成悬挂格,中间分成小隔间。如果家中男士或者女士穿着衬衫西服比较多,怕和其他衣服混折在一起变皱,这两种衣柜设计再合适不过了。
世界上有没有属于我们的一片世外桃源?其实一直有的,那个地方叫做家,如果再细化一点,那个地方叫做卧室。当我们躺在床上安然入梦,世界繁杂喧嚣就都被挡在房门之外,这可不就是世外桃源的样子吗?既然是世外桃源,那就要有世外桃源的样子。
设计起来也并不复杂,只需要定制一个尺寸、样式适合的柜子,然后放进卧室,将床从地上,既不影响休息空间,又额外多出来一定的收纳空间,何乐而不为?而且,这样的卧室,无论是看上去,还是每天生活体验,都有不一样的乐趣。告别千篇一律,做一个有趣的人,多好。
极简风的大胆设计,谁说生活就不是艺术了?一个随心所欲的柜子,收纳格完全凭喜欢,甚至凭突发奇想来设计,只要你喜欢,没什么不行的。摆上几本书,放上几束干花,搁上几个喜欢的小物件,一股艺术气息扑面而来,连空气都仿佛变得清新起来。
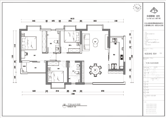
— 3 —
119 户型 建筑面积 119㎡,3 室 2 厅 2 卫。
住宅套内分区明确,以起居室为中心,家庭内部动静分离,寝居分离,干湿分离。室内布置紧凑,提高面积的使用率和舒适程度。住宅套内适应现代生活方式,在保证经济实用上力求做到全民设计。
优点是房型紧凑,满足三代同堂的生活需求。厨房带阳台,可以外扩增加厨房的使用面积。缺点是阳台在主卧,影响主卧的隐私性。
这款最新的客厅设计,很有质感的软皮沙发和高贵的大理石地板,再加上大气的红木家具,一切显得那么的相得益彰,红色能在客厅中起到引人注目的作用。
餐厅地面为米色哑光砖,具有良好的防滑性。大多空间利用了干净利落的线条分割,勾勒出神清气爽、干净利落的气质。本案主暖色调相呼应,丰富了空间层次感。
卫生间设计干湿分区,舒适卫生,环保标准。选材方面,选择美观耐用的瓷砖最为合适,规格越大越容易打理,清洗也方便,很容易保持卫生间室内的干净,做好一定的防滑处理。
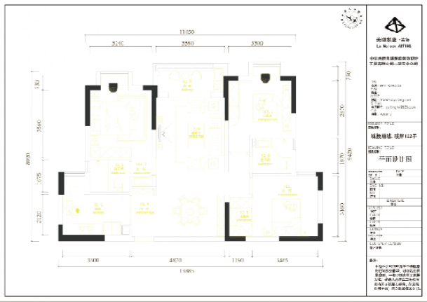
— 4 —122 户型 建筑面积 122㎡3 室 2 厅 2 卫房型空间方正,有利于空间造型,吊顶造型和地面拼花,飘窗都可拆除,嵌入梳妆台或书桌,更能充分利用空间。利用过道位置可以合理划分储物间或者衣帽间,增加储物功能。客餐厅一线贯通,空间互动感更加强烈。
厨房是住宅中重要的不可忽视的组成部分,许多家庭可能认为厨房占据的是隐蔽空间而缺乏热情来设计它,其实这是一种误解。厨房设计质量与设计风格,直接影响到住宅室内设计的风格、格局的合理性、实用性以及住宅室内装修的整体效果与质量等。厨房是住宅中功能比较复杂的部分,是否适用不仅取决于有足够的使用面积,而且也取决于厨房的形状、设备布置等。它是人们家事活动较为集中的场所,一定要以功能为主兼顾其他方面进行合理设计。
民以食为天,饮食是人类生存需要解决的问题。人们对就餐内容的注重包含着对环境的注重,是一种享受、一种体验、一种交流。极简的白灰赋予空间一致的调性,材料以不锈钢和玻璃组合,创造出穿透利落的简洁氛围。用相当的体量和灯具来进行分割空间,灯光纯粹自然,让人们在视觉上产生一种空旷高原的视觉张力和精神内涵。
整个空间流畅自然,色调以白灰为主调,灯光点缀恰如其分,材料运用自然,营造出清新脱俗之美。
现代简约的桌椅,白色简洁淡雅,设计上大行减法原则,一切以空间通透着想,室内陈设组合简单、抽象、明快,现代感强烈,摒弃多余的室内装饰品及无用细节,营造一个华丽清爽、精致、舒雅的氛围。
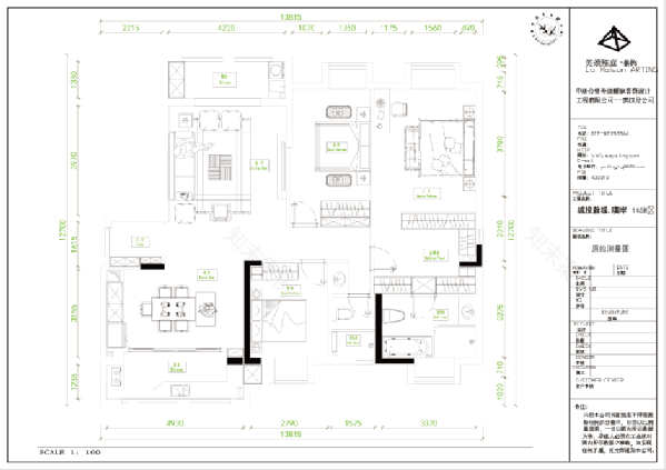
—5—
145 户型 建筑面积 145㎡
4 室 2 厅 2 卫
入户门厅及客厅原始空间不变,保留户型优点。将小阳台、厨房及餐厅重新进行空间整合,保留南北通透的同时扩大厨房和餐厅,增加户型储物空间,改善原户型客餐厅面积不匹配的尴尬,加强厨房的操作空间。走道方面通过一组朝外的展示柜,从视觉上改善走道过长的问题的同时,将主卧门开在干湿分区的地方,从空间上减少走道长度。
主卧 2 米的床保证舒适的空间,将衣帽间、主卫依次排开,使用流线更合理的同时改善了主卧及次卧的居住空间,将朝南的两个空间打造成舒适的居住环境。同时主卫空间进行扩大,保证了独立的浴缸及淋浴房,增加居住便捷性。
功能方面,要充分满足业主的生活要求,客厅是交友娱乐中心,影视墙采用墙面暗藏灯带,中间墙采用高级壁纸饰面,既大方又有气派,形成一个具有特色的小品。玄关设计成新月形,裂纹玻璃与杉木台座相配合,显得十分优雅时尚。设计要超前,本居室在餐具和次卧室均采用液晶电视,安装高度为 1.3m 左右。
总而言之,室内设计一定要用心设计,从总体风格到细部装饰都要结合实际,反复推敲,反复构思,反复比较,比如一块宝石需精雕细刻一样,创造出精品,家装除了造型美外,一个成功的作品还必须具备实用、舒适、时尚、美观、环保。
客服
消息
收藏
下载
最近































