查看完整案例

收藏

下载
留白
M
essage
时间与空间相遇
来一场心灵与家的对话
本案是一对年轻夫妻的家,对新家注入了很多期待,喜欢简约的空间,希望置身其中是自由的,惬意的。当时因为对我们初次设计就很满意,很快便确定了合作。现在他们已经入住新家啦,拍摄的时候家里依然清爽整洁,迎面而来自在舒适的感觉,本案名为『留白』,祝福我们业主在新家遇见更多的美好。
以光为引,拉开生活的序幕,阳台并入客厅,令室内采光更充沛,也显大空间。简洁的灯带装饰,串联起空间的关系,同时也满足空间照明需求。
灯光在空间里很重要,半墙沙发背景墙通过灯带的装饰,简洁不单调,灯带打开别有一番意境。
阳台并入客厅,光影透过百叶帘折射出空间的光影,自然而温馨。阳台柜嵌入洗衣机烘干机,日常必备家居小能手。
黑白灰充满秩序的空间,局部的棕色点缀,让人心情愉悦。由客厅到厨餐厅,拥有大平层的视觉感。
带有弧元素的电视背景墙,纯色自然有张力,悬挂抽屉式电视柜,简约轻盈,还可以补充储物空间。强弱电箱藏在上面的悬挂柜中,设计就是用美的方式解决问题,实现功能与颜值并存。每一个家都有自己的精彩,与主人相映成辉。
半开放式书房,让空间开阔明亮,书房也做了多功能设计,新砌半墙隔断,顶面是石材装饰,有质感且便于打理。
半开放书房结构示意图
4米+悬挂式书桌,3米+顶天立地的衣柜,这个空间兼顾办公和储物。放置一张可折叠式沙发床,一床两用,既是小沙发也可以作为床铺。
动态示意图
开放式厨餐厅,墙体做了巧妙的设计,镜子从顶面相较于墙体,可以增加视觉效果,且出门和进门都要经过的地方,每天嘴角上扬,收拾好自己,愉快的出门啦。
入户设计了一体式换鞋凳和双面柜,作为入户换鞋放鞋,也可以弱化一些入户视线,让空间是连贯有序的。
开放式厨房
结构示意图
极简空间流露小巧思,为女主在主卧现场制作了简洁梳妆台,梳妆台与衣柜一体,整个空间都因它而变得生动。
床头圆弧造型背景墙与客厅造型也形成呼应,家里的弧形是由师傅手工打造,好的设计也需要好的施工配合协同完成。
床头藏有暗灯,晚上可以只打开氛围灯,空间氛围感会很舒适,入了卧室,静下来,暗下来更有利于睡眠。
床头一处极简小景,拉满一个卧室的气质。设计无须过于繁多,点到即可。
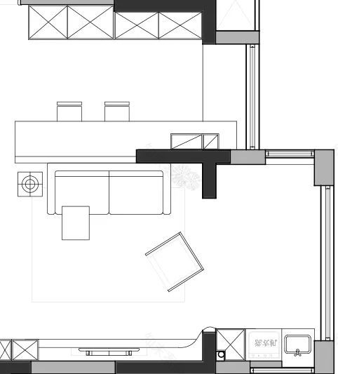
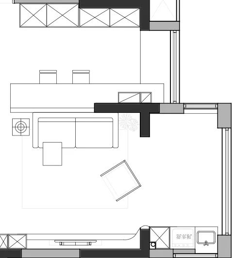
原始结构▲
平面方案▲
作品名称 丨留白
设计施工 丨壹石设计
建筑面积 丨117m²
工程地址 丨南京
壹石设计
一间口碑相传的设计工作室
我们的核心价值理念
设计:创新、实用、唯美、细致、环保、极简
服务:诚实,责任、口碑
壹石创建于2016年
我们的目标是帮业主实现对家的期盼和梦想,
让居住者“
住的优
雅”
在设计上一直坚持实用、唯美,创新为主。
服务坚持口碑铸造品牌,用心服务好每位选择壹石的客户。
公司自创建以来,营造的氛围就是勤奋踏实。做好当下的每一个案子,不断
地
让更多的作品落地,影响越来越多的业主对家有重新的认知,设计是可以影响和改变生活的。
不断影响身边同行坚守在设计的路上,为提升家居审美与家居美学修养做出一己之力。
Tel
Add.:河西万达广场G座1610
咨询
客服
消息
收藏
下载
最近
































