查看完整案例


收藏

下载
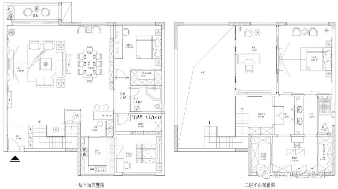
项目名称:勒流泓景园复式楼
设计单位:陈向联合设计工作室
主笔设计:陈意
工程造价:90万
摄 影:
田逢花
序
当生活
成为一种美学
不妨放慢脚步
与她进行一次
交心的对白
精致的饰品、唯美的挂画、优雅的家具
各自组合搭配
形成一场惊艳的视觉盛宴
宛如一个个美妙的音符
独立、个性
将生活谱成美妙的旋律
每个音符都蕴藏着卓然的审美品味
带着舒朗的心情
踏上旅程
于此
享受生活的另一种升华
配以舒适、温暖的灯光
共进晚餐
小叙生活
其乐融融
让幸福留驻在生活的每一寸时光里!
个性化的吧台设计
给生活注入不一样的生活情趣
艺术源于生活
至美自有道
辅以玫瑰金不锈钢条加以点缀
搭配灰蓝色的硬包
摒弃繁荣复杂
增添几分宁静
色彩缤纷的软饰、家具
中和了冷色系带给人的高冷感
增添了空间的童趣与活力
简明、干净的硬装设计
唯美的挂画
精致的饰品
带来生活的仪式感
雅致的半圆硬包背景
独特的装饰挂件
爱马仕橙的皮艺床
颇具淡雅清香和无穷魅力
午后
沐浴在阳光下
静坐于此
一本书
一杯咖啡
让生活和质感达到平衡
设计,是美学与功能的融合
更是感性与理性的平衡
做个宁静之人
月光流砂
记录岁月的印迹
阑珊灯火
恰是时光的蹉跎
15011654392
地址:顺德区伦教街道阳光棕榈园4期95号铺
PS:部分插图源自网络
客服
消息
收藏
下载
最近


























