查看完整案例


收藏

下载
“让回家成为一种期待”
“Let home become a kind of expectation”
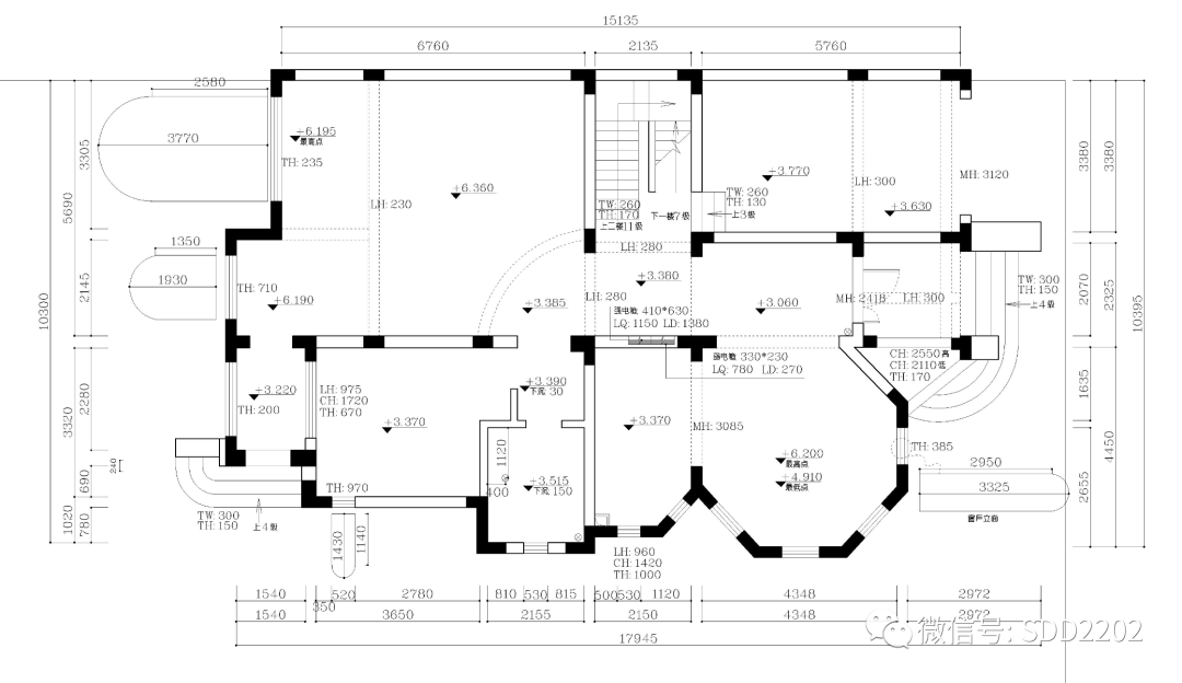
Residential | 480m² | Hunan
Plan design | free-hand sketch
There is no way to define "home" and there is no need to define it.
It's our personal life. It's private. Only we can feel it.
In fact, our design can not give the answer. If there is a definite answer, it is not design.
“家”没有一定的方式来定义,也不需要来定义它。
是我们个人的生活,是私人的,只有我们自己能感受。
我们设计其实也并不能给出答案,如果有明确的答案,那就不是设计了。
Constantly feel the visual beauty and psychological changes brought by the words "geometry, color block, material, light and dark, thick and light" in the space.
不断的去感受”几何、色块、材质、明与暗、厚重与轻薄“词语在空间中带来的视觉美感与心理变化。
设计机构 I Designer Department:點道设计咨询
项目地址 I Project address
:湖南·株洲
项目类型 I Project type:毛坯改造
面积 I Square Meters:480㎡
户型 I Door Model:别墅
摄影师 I Photography:石彦科
點道设计咨询机构
我们希望慢慢成为一个有颜值又有深度的设计平台
专注于室内设计
无论你是业主还是设计师朋友
都可以对我们提出宝贵意见及建议,接受合理的批评,共勉!
客服
消息
收藏
下载
最近

















