查看完整案例


收藏

下载
本案业主为单身男青年,职业为音乐老师
对自己住宅有着独特理解及个人想法,喜欢深色系氛围,但同时保证“家”温暖定义。在与客户密切沟通中,基于生活习性及喜好,进一步梳理、提炼整个空间的雏形。相应的在材质颜色的选择上,将颜色属性倾向于深灰色系,
材质属性选择自然木质肌理涂料类别,让空间材质与颜色的冷暖结合发生某种化学反应碰撞。
整体空间设计皆无主灯设计,
所有空间氛围均为射灯照明点缀空间层次。
与人而言,居住的环境反应人内心的秩序,
与空间而言,人的气韵渲染空间磁场。
PS:因预算控制有限,后期效果将会
有
所折中
项目地址:浙江 · 杭州
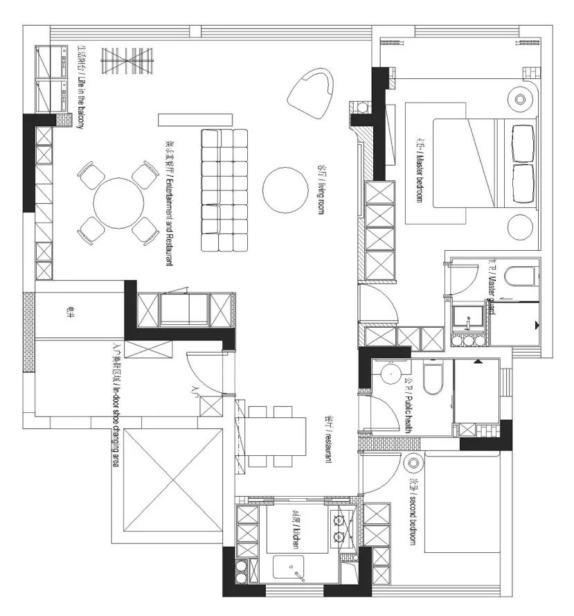
平面布置图
Layout plan
风格意向图
Style intention chart
将原有阳台区域打破,破除隔墙阻挡,加强动线使用及空间利用率,利用拉丝不锈钢漫反射光影形态,材质对比,营造视觉通透质感。
The original balcony is broken, the partition wall is broken, the use of moving lines and space utilization are strengthened, the diffuse light and shadow form of brushed stainless steel is used.
原有卧室舍去纳入客厅面积使用,多功能餐厅的使用结合业主对好客的情怀,两三好友汇聚再次聊天娱乐为主,设圆桌与客厅形成更好的互动。
The original bedroom is incorporated into the living room area. The use of the dining room is combined with the landlord's feelings of hospitality.
正面到顶的柜体设计考虑客厅更多的收纳可能性,层板设计放置小物件及少量酒品陈列,此处蓝色墙体跳脱空间,打破原有黑白灰暖色系,加入克莱因蓝,增添空间氛围,玻璃砖的效果让采光得以充分。
The cabinet put oneself in another's position that the front reaches the top is designed to consider a sitting room to receive more possibility, layer board design places and a few wine to taste display, here blue wall body jumps the space.
厅堂局部特写
Close-up of the hall
厅堂局部特写
Close-up of the hall
餐厅功能保证2-3人正常使用功能,不做过多造型修饰,保证功能使用的输出。
Restaurant function to ensure that 2-3 people normal use of the function to ensure the use of the output function.
黑色木饰面柜体及墙板映射呼应整个深色系,飘窗以体块形式存在,整个木饰面包裹,让飘窗成为卧室的小栖息休闲之处。
Black wood faces ark put oneself in another's position and wallboard map echo whole brunet department, wave window exists with volume form.
室内空间方案第二稿
Second draft of the in-house plan
平面布置图
Layout plan
立面造型展示图
Presentation of the facade
THANKS
項目面積:89
m²
Project Area .89m²
項目類型:住宅空间
Project Types .Rensidence space
主案設計師 : 贺赞辉
Design By. HeZanHui
歡迎轉發分享本文:
You are welcome to share and repost this article.
以空间承载乐 以色彩记录趣
------------------------------------------------
荣誉
杭州民舍制作空间设计工作室联合创始人
2019亚太空间设计新锐设计师
2019年IDS设计星十佳作品
2019金堂奖年度杰出作品
ADA菲斯曼设计优秀作品
绿洲:贺贺贺赞辉
add:杭州市滨江区江南岸艺术园区
圖文涉及隱私版權.如需轉載.請先通過文末的郵箱地址與公眾號管理員聯繫.我們會第一時間回覆.謝謝!
客服
消息
收藏
下载
最近
























