查看完整案例

收藏

下载
惠州国墅园设计方案---
概况
项目名称:时光·思
项目性质:私人住宅
设计面积:120m²
设计公司:惠州森思装饰设计
施工执行:惠州森思建筑装饰
主案设计:姚毅祥
执行设计:林玉君、何嘉莹
设计助理:黄智诚
方案前后
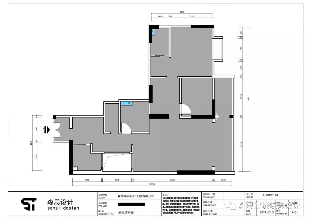
原始图
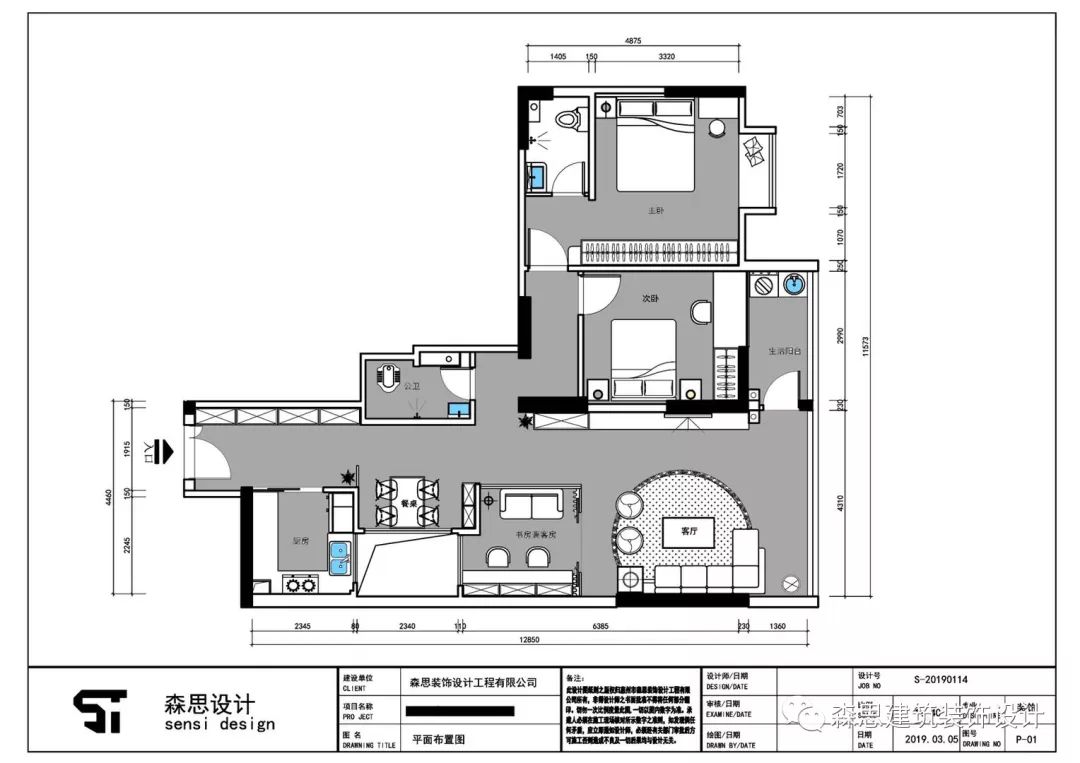
设计布局
设计概况
本案用了现代简约风格, 主要色系氛围以高级灰周边延伸,地面使用亮灰白,使整个空间质感强烈呈现,墙面部分天花以及展示柜体使用实木贴皮饰面,让整个室内设计更具立体感,元素的丰富让家人之间总是能找到联系。在布局上廊型布局,引人入胜,阳台的内收,自然引景,空间宽裕同时隐私性更具保护。与客厅融为一体的书房,能分割成独立空间阅读学习,也能开放增强家人之间的联系,整体采用金属玻璃属性,若隐若现,宁静不寂寞。沙发背景与床头背景分别采用布料硬包,颜色采用当下流行中性灰蓝色系,高贵而不失个性,触感舒适。全屋天花多以平面为基准,搭配灯槽等直性照明,未来感加强,现代元素强烈,光温配以3500K-4500K,之间,温馨自在。当您疲惫的身躯躺在柔软的沙发上,时光仿佛静止,宁静自如!
入户前厅
入户
前厅
入户图
前厅图
主客厅
客厅1
客厅2
客厅3
客厅设计
主人房
主人房
主人房设计
软装索引
末:
现代都市里,快节奏的工作与生活,家更是自己的身心放松的港湾.
客服
消息
收藏
下载
最近



















