查看完整案例

收藏

下载
Casas, Tapalpa, México
设计师:ARGDL
面积:190 m²
年份:2019
摄影:Christian Petaccia
提供协助:Helvex, URREA, AutoDesk, Adobe Systems Incorporated, MANERALES TERZA
设计师描述 | Designer description:
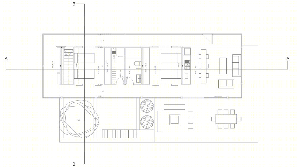
El proyecto está situado en Los Espinos, Tapalpa, un entorno montañoso con grandes árboles. Busca la integración al paisaje a través de dos volúmenes; el primero hecho con piedra del sitio para mimetizarse con la topografía del lugar; el segundo, un volumen de cristal que a través de sus reflejos y el color negro de la estructura se pierde en el paisaje.
Al interior, tenemos un pasillo perimetral que contiene las habitaciones y genera un recorrido-mirador con vistas desde todos los ángulos al entorno natural dentro del predio. Al interior de las habitaciones se abren domos cenitales con vista al exterior, brindándole un balance interesante a la intimidad con la apertura al cielo.
La habitación principal se encuentra en el sótano con una terraza privada, es el espacio más íntimo, con sus paredes de piedra y acabados en parota que refuerzan la sensación de estar en una cabaña.
项目完工照片 | Finished Photos
设计师:ARGDL
分类:Casas
语言:西班牙语
阅读原文
客服
消息
收藏
下载
最近


























