查看完整案例


收藏

下载
本案是个二手房改造项目,业主夫妇平时工作比较忙碌,休息时间也很紧凑,他们对诗意栖居与慢生活方式拥有期待,希望这个家充满浪漫休闲自然的家居氛围. 结合业主的需求,我们在设计上,着重以柔和的线条、金属的质感以及鲜明的色彩,同时辅以复古元素、休闲气息,打造出沁人心脾的现代轻复古风.....
项目地址 / 南京·万科光明城市
Project address / Wanke Guangmingchengshi · Nanjing
设计团队 / 花漾美作·空间设计
Design team / HYMZ · Space Design
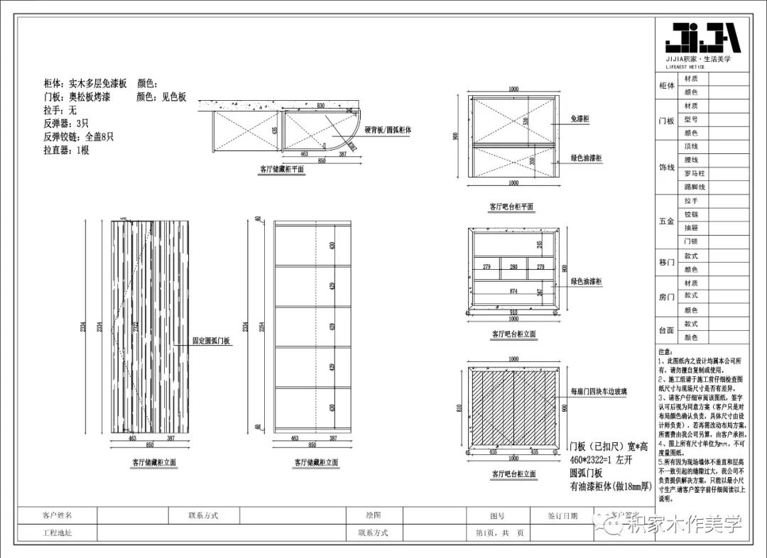
全屋木作配套
/
积家木作美学
Made To Order Team / JiJiaMuZuo Esthetics
门厅
Lobby
推门入户,利用墙面乳胶漆分色和地面材质的切换分隔空间,弱化门厅的狭长感. 迎面白色凹凸护墙,突显层次质感. 金属边框、银镜与黑镜组合,彰显复古感的同时延伸了空间,满足了入户全身镜的需求.
鞋柜绿色烤漆门板,与墙面乳胶漆同色. 鞋柜设置开放柜,挂衣物包包、存放小物品、临时鞋子收纳,功能齐全
02
客餐厅
Guest restaurant
03
主卧
Master room
主卧取消电视背景墙,采用投影幕布,幕布后设置一整排衣柜,满足储物需求.
04
主卫
Main bathroom
主卫选用女主人喜爱的蓝色作为空间的跳色,活力清新
05
次卫
Bathroom
06
儿童房
Kids room
儿童房以黄色云朵壁纸为主调,搭配粉色的弧形软包背景以及糖果图案窗帘,打造温馨又充满童趣的空间.
欢迎扫码关注 积家木作美学
专业木作配套服务商
客服
消息
收藏
下载
最近































