查看完整案例


收藏

下载
项目整体效果
©
SEED席得设计
项目概况
项目名称
深圳宝安湿地公园厂房改造
设计单位
SEED秦琛工作室
项目地点
广东省深圳市宝安区
项目状态
概念方案
建筑面积
3000㎡
岁月使事物老化
但老化的痕迹也会带来某种丰满
通过去除那些枯萎的枝节
赋予历史遗迹在时间和空间上的厚度
为其创造新的使用功能的同时
让人们得以体会那些
实体已然消逝但气息仍存留其中的美妙
这就是遗址之美
工作模型
©
SEED席得设计
年初接到这个任务,改造一处位于公园内的老厂房,并赋予其新的功能,使之成为该公园的基础配套设施。项目位于深圳宝安沙井蚝乡湿地公园中央的一处厂房遗址建筑。
区位分析
©
SEED席得设计
厂房如今已完全荒废闲置,主体为钢筋混凝土结构,一层外墙被后期粉刷,上部为梯形钢屋架,锈蚀严重。
厂房外部现状
©
SEED席得设计
一层为后期新粉刷白墙;二、三层墙体的时间痕迹较重,具有历史风貌价值。
厂房内部现状
©
SEED席得设计
底层墙体存留较少,多为开敞状态;屋顶钢架结构锈蚀情况非常严重。
01
现状问题
建筑位于公园中央,将公园切分成南北两段
近人尺度大,墙体封闭
建筑主体结构及其屋面存在较大的安全隐患
02
设计策略
我们的设计策略希望尽量少地改变原始建筑风貌,修复原有结构,置入新的功能,同时在新旧建筑之间创造对话。
修复,保留,从内部生长而出
©
SEED席得设计
置入多种新的功能
©
SEED席得设计
由于底层的墙面之前被重新粉刷且大部分破败,我们将一层打通,将原本分割的南北公园串联起来,打通的空间也变成了自带遮阳可供人们乘凉休憩的场所,就好像公园里的一个“亭子”,功能以卫生间,便利店等小空间为主。
水平渗透性:底层创造流动空间,结合周边景观串联湿地公园。
水平渗透性
©
SEED席得设计
树池
©
SEED席得设计
建筑二三层新的功能体量与老建筑脱离,二层布置展厅与书店,三层为餐厅与咖啡,三层屋顶用木桁架替换掉被锈蚀的钢桁架结构。新旧分离的空隙成为了通往二层展厅的楼梯以及三层餐厅的室外外摆区。
东立面
©
SEED席得设计
餐厅
©
SEED席得设计
三层庭院
©
SEED席得设计
垂直渗透性:建筑内部插入大量院落,随着时间的沉淀树冠将充满整个建筑,融入公园。
垂直渗透性
©
SEED席得设计
院落
©
SEED席得设计
庭院也为原本封闭的厂房空间引入更多自然采光,在交通路径上也带来更多偶遇对景和框景的机会。
对景
©
SEED席得设计
展厅框景
©
SEED席得设计
在我们看来,时间的痕迹应当被传承,它塑造了某种精神意义,而新的功能又指向了一种生活方式,将这份精神价值得以呈现。
一层院子
©
SEED席得设计
鸟瞰效果图
©
SEED席得设计
北立面
©
SEED席得设计
03
项目图纸
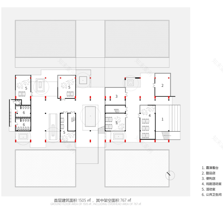
首层平面图
©
SEED席得设计
二层平面图
©
SEED席得设计
三层平面图
©
SEED席得设计
项目详细信息
项目地址:广东省深圳市宝安区
总用地面积:1800㎡
总建筑面积:3000㎡
设计时间:2020年3月
设计阶段:概念方案
设计单位:SEED秦琛工作室
主持建筑师:秦琛
设计团队:苏宋颖、温启常、廖维基、侯金海、胡阳汐(实习)
-End-
编辑:李玺
校对:郑维丹
本文由“
SEED席得设计
客服
消息
收藏
下载
最近


























