查看完整案例


收藏

下载
项目名称:安徽亳州维也纳庄园
项目面积:420㎡
项目设计:安徽东子设计事务所
项目施工:东子设计施工团队
主要材料:土耳其银灰洞、欧亚木纹、木地板、木饰面、墙纸、扪布、镜面不锈钢、乳胶漆、超白玻璃
本案采用现代的设计语言来表达东方的意境。与业主深入沟通后打破传统房屋布局,厨房与卧室及卫生间整体打通,卫生间后移。原有客厅空间整体南移,室外阳光房与客厅完美融合,隐去传统中式繁复沉重的设计表现,用减法来表达东方元素。简洁的栏栅屏风,由竹的形态延伸而至,减去具象的形态,点到即止。客厅与餐厅高低错落,即明确了空间界限,也体现东方意境疏浅高低的空间布局。人物动线清晰简单,无多余的拐弯抹角,围绕简居简行的中心,是现代人居环境一种新的尝试。
一楼平面方案
客厅
餐厅
客厅
客厅
厨房
在对日常生活场景的演绎中,空间没有华丽的装饰外表,而是以生活化的趣事予以描述。正在被翻阅的书籍、正在组搭的积木玩具、纸上的涂鸦、在一旁等候的玩具车……孩童玩耍的日常在空间中被一一还原,毫无距离之感。
二楼平面方案
儿童房
儿童房
主卧舒适的环境,柔软的面料,它似山川流水,可奏雅歌。不同材质相融相生,富有灵气的墙画与中式床头灯相互映衬,尽显清雅与平和。整体空间色彩与形式,无一不在提示着东方人文精神的传承与演变。以丰富的细节展现出低调,艺术的高尚生活品位。
三楼平面方案
主卧
主卧
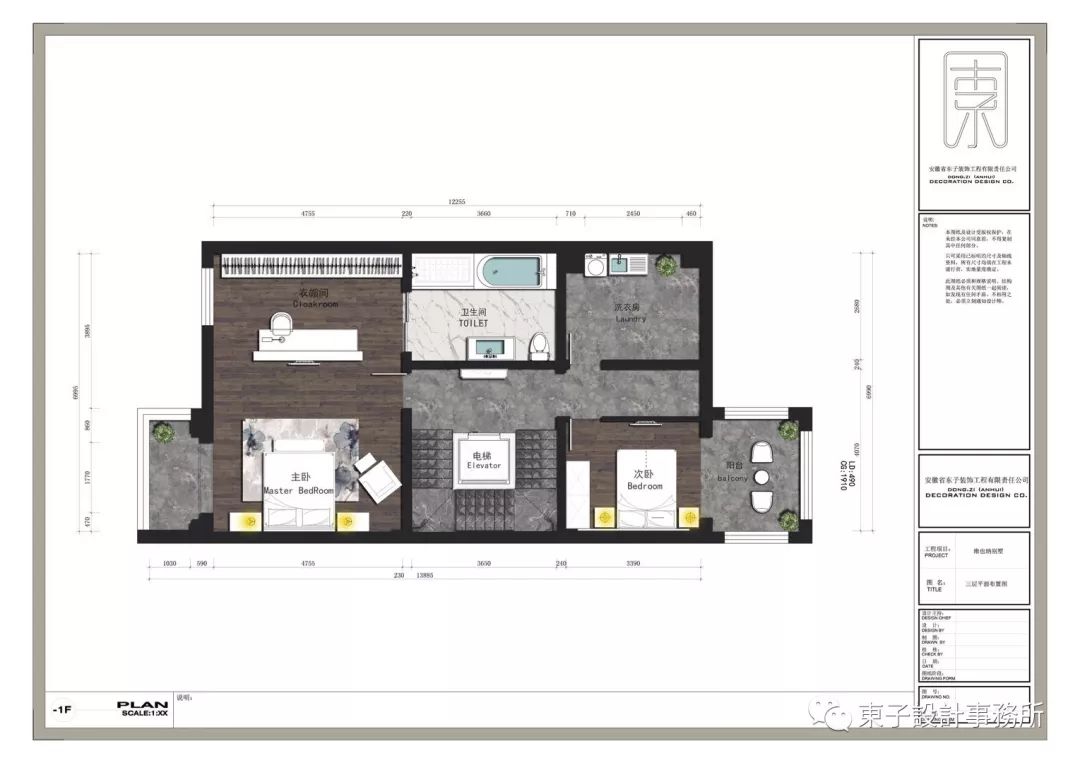
负一楼平面方案
影音室
现代人生活压力越来越繁重,城市生活越来越拥挤,人居环境越来越不乐观。本设计使用简单的语言阐述东方意境,希望能给现代人一种静谧的生活空间,在尘嚣中觅一方净土。简居简行,希望能给现代人一种更舒适的生活环境 一种新的尝试.
设计师是一种职业
是一份信任 是一个值得交心的朋友
向专业致敬!
客服
消息
收藏
下载
最近

















