查看完整案例


收藏

下载
春季焕新 设计巡礼“小区专场户型解析”活动拉开帷幕。『融创壹号院专场户型解析会』诚邀锡城装修业主届时莅临。
01
设计师一对一规划,以国际化视野、前沿设计理念,由国内知名设计大师领衔,人均 10 年以上别墅大宅设计经验,提供一对一专属空间规划服务,快速诊断户型改造核心问题,现场体验非凡设计。
02
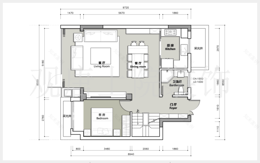
户型设计方案展示
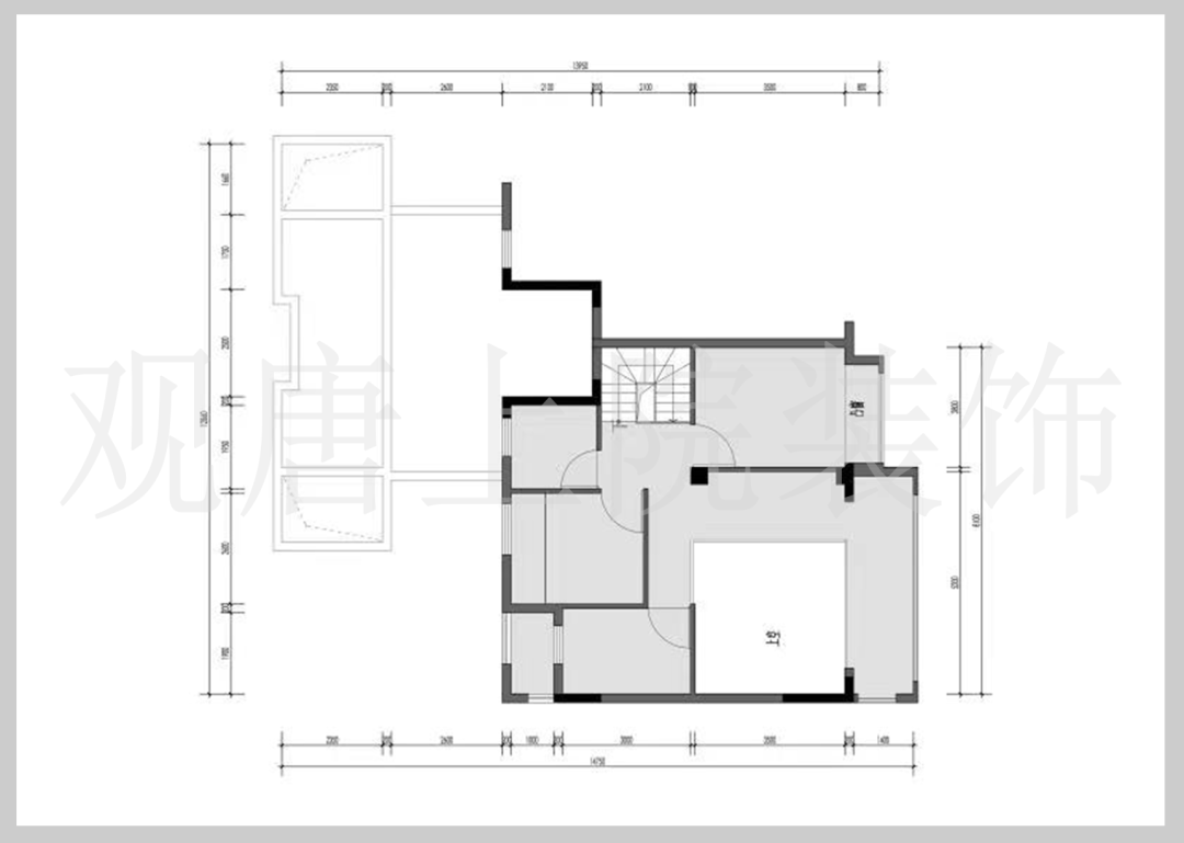
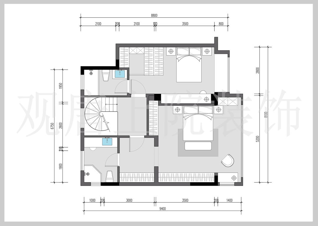
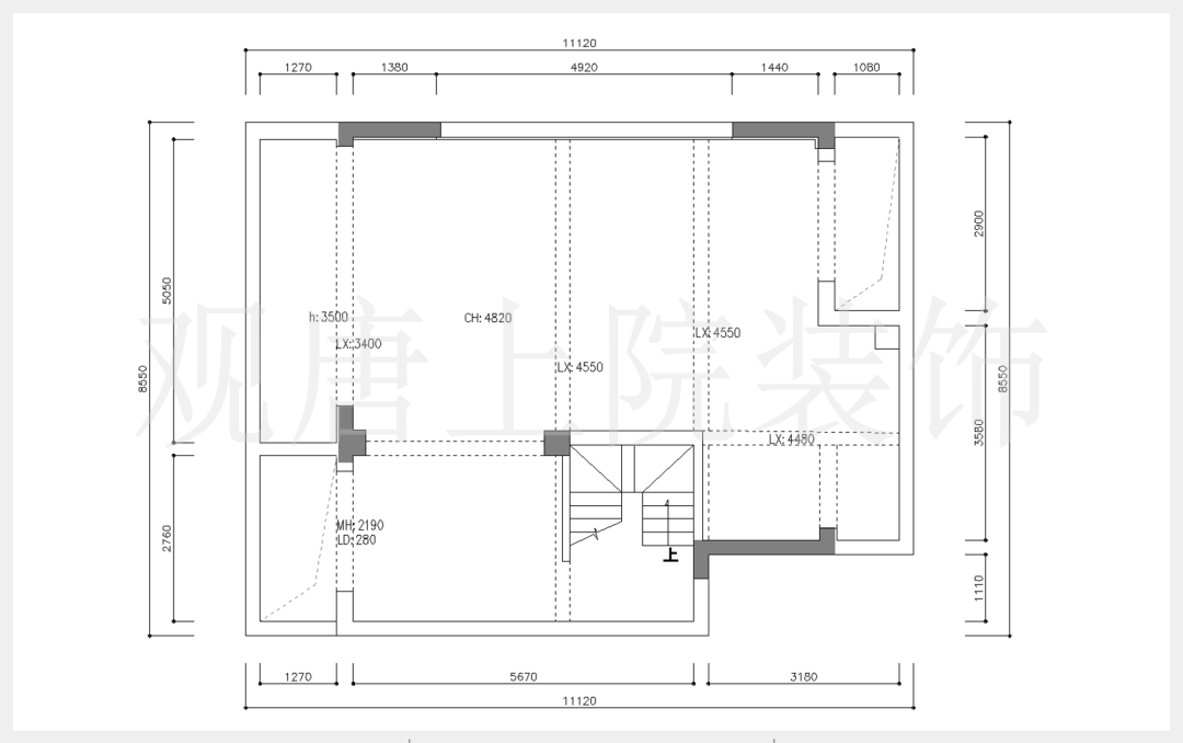
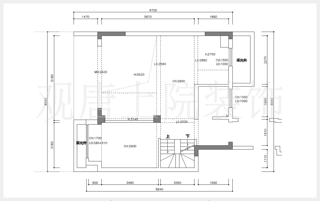
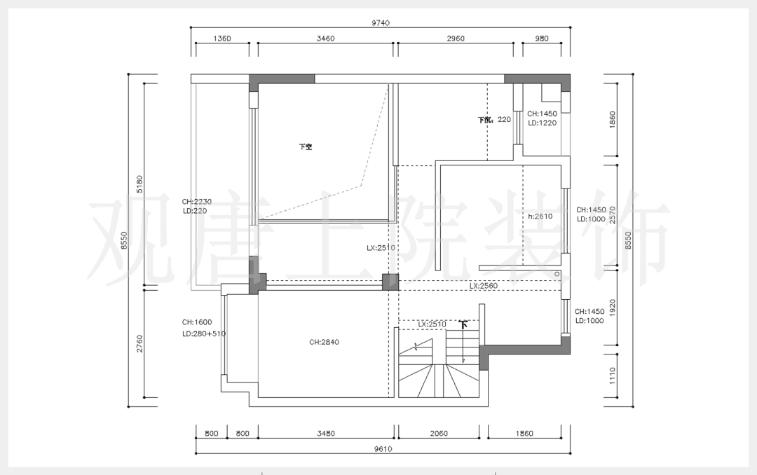
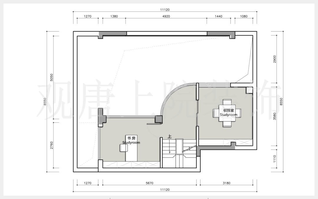
融创壹号院 上叠 李恺设计
原始结构图▲ 左右滑动查看更多
平面布置图▲ 左右滑动查看更多
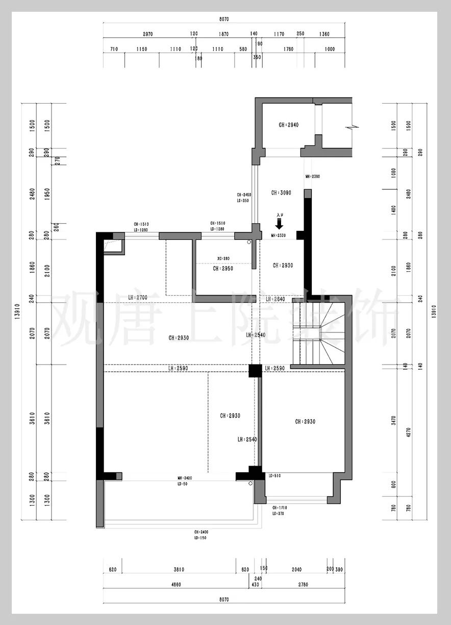
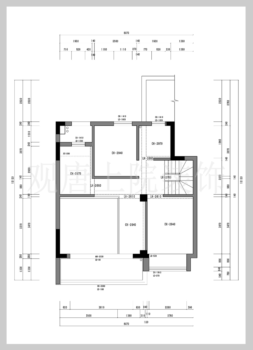
融创壹号院
中叠 解磊
设计
原始结构图▲ 左右滑动查看更多
平面布置图▲ 左右滑动查看更多
风格意向图▲ 左右滑动查看更多
(图片来源网络)
融创壹号院
下叠 蔡月风
设计
原始结构图▲ 左右滑动查看更多
平面布置图▲ 左右滑动查看更多
风格意向图▲ 左右滑动查看更多
(图片来源网络)
线上咨询 了解更多
春季焕新 设计巡礼
“小区专场户型解析”活动
点击进入小程序
即刻咨询线上报名
锁定“融创壹号院专场”活动优惠
原创实景作品展示
文章后
评论留言或拨打 400 0510 776 获取更多实景案例
24h 客服热线:400 0510 776
公司地址:无锡市滨湖区梁溪路 51 号万达写字楼 18 楼
-END-
客服
消息
收藏
下载
最近



































