查看完整案例


收藏

下载
▼
魔方,是变幻万千的奇妙天地。
方寸之间,玩转多种可能性。
▼
项目地址:蠡湖公馆
建筑面积:256㎡
设计机构:吾研设计事务所
魔方空间
Magic Square
居住是一件严肃的事,居住也可以是件有趣的事。
本案业主是一对中年夫妇,女儿在北京工作,偶尔回家居住。
为让业主充分体验到居住的趣味性,不把非日常生活空间当作一种消极静止的存在,在空间设计过程中,设计师尽可能避免孤立静止的空间组合,而是追求富有弹性的运动空间。
场域的开合,尺度的张弛,景别的大小,立体的空间组合形态,非对称的结构布局,都在赋予空间一种动态的韵律。
客厅是将日常生活与艺术表达融合的场域。
设计师采用了非对称设计,解放了沙发摆放的固有模式,让业主的起居生活更加随性。
主体采用了比较雅正的黑白米灰色系,局部叠合跳色,空间视觉感受上守正出奇,这也是当代设计的重要特征之一。
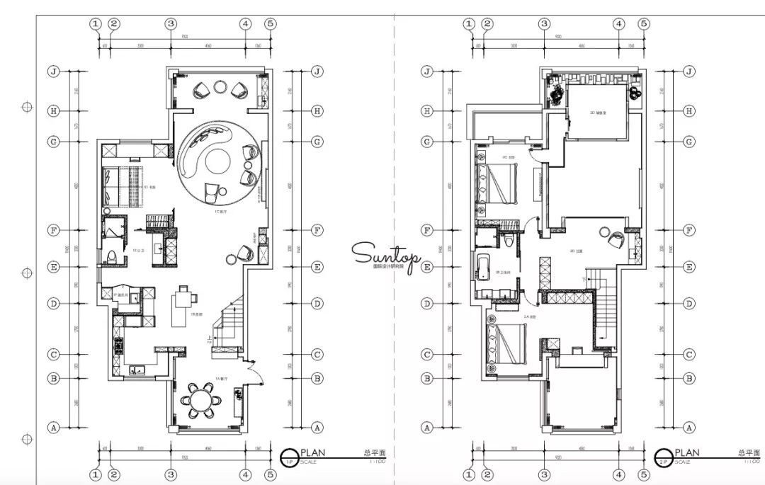
一楼是多个公共空间的组合。通过电动移门灵活的分隔,客房被赋予了双重属性。移门打开时,客房与客厅连通,可当做书房使用;移门合上后,便是一间完整的套房。
▼
流动空间还体现在空间垂直方向的分隔上。为保持二楼和一楼最大限度的交融与对话,设计师专门设计了两个黑色的“魔方”。
一个悬浮在北部,与主卧连接,被设计成日式的茶室,独占十里湖光。一个悬浮在客餐厅上方,作为女儿房功能的延伸。不仅加强了与客餐厅的交互性,两个“魔方”之间也互为景观。
安置在女儿房衣帽间的电动移门,在满足开阔视角的同时,也保障了女儿房的私密性,便于女儿房在使用与未使用两种状态下空间功能的灵活切换。
▼
把室外空间的自然景致引入室内,光影变化让空间富有诗意。
为充分利用南北方向的自然景观,设计师将入户花园改造成餐厅,给西厨与楼梯腾出空间,增强了空间的连续性和流畅感。
与此同时,通透的空间导入足够的自然光,让容易被“忽视”的西厨区域也能得到光的善待。
▼
西厨电器高柜的柜门做成了移门,保证了中西厨之间互相独立又自由连接。开合之间,空间属性自由切换。
西厨电器高柜和西厨中岛吧台的结合,彰显当代都市生活的品质格调。
▼
入户的鞋柜做了悬空的处理,既实现了空间水平方向上象征性的分割,又与楼梯组合成一个整体。
看似是楼梯踏步的模块,实际上却是鞋凳。两种材质的组合,两种功能的合体,成就了设计的趣味中心。
▼
在设计师眼中,室内设计是生活化与艺术性的融合。既不能过分强调艺术表达,也不能停留在功能空间的简单堆砌。二者取其中,方为设计之上策。
原始结构图
▼
平面布置图
▼
团队介绍
Our Team
吾研设计事务所
以
孙晋昌
先生为核心设计师,联合业内优秀的建筑、景观、机电、软装等专业设计师,以构建人居生活新品质为己任,研发针对各类住宅设计的全案定制服务解决方案体系,以专业的视角洞悉行业的发展,用卓越的品质服务赢得每一位客户的信赖。我们感悟生活的真谛,致力于创造健康、实用、舒适、科技的人居生活体验,甄选优质、环保、高性价比的产品,用匠心品质的原创设计,高诚信的人性化服务,塑造符合客户需求的装修感受,树立吾研室内设计的良好口碑及声誉!
更多观唐上院实景案例
观唐上院申旭 | 好 · 在
金科中心 | 净几
太湖国际社区 | 其实当下是最好的时光
许敏 | 人间至简是清欢
澜岸铭邸 | 借静
客服
消息
收藏
下载
最近































