查看完整案例


收藏

下载
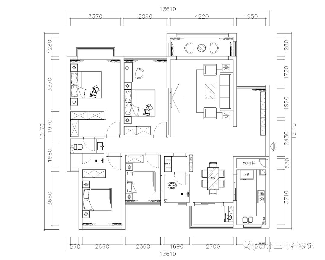
本案例位于安普•翡丽云邸,建筑面积140m²。
入户
Home entrance
入户地方采用的是入户柜,方便进出门收纳和拿放东西。
客厅
sitting room
客厅采用的是当下流行的无主灯设计,沙发是用灰色系与橙色系跳色搭配 ,长方形茶几增加几何感。惊喜之处在于客厅追加了麻将桌,好友聚会神器。
电视背景墙也使用当下流行元素岩板,视觉上看起来宽敞不拥挤。
岩板旁安装了单排的玻璃收纳柜,可以收纳一些喜欢的物件。
厨房
kitchen
厨房风格仍然是采用现代简约风,黑灰色的下橱柜+白色台面,优雅高贵,加上灰白色墙面,有干净、规整的感觉。
餐厅
Chichide restaurant
灰色的地面,定制黑白色系餐桌,与厨房移门呼应,大面积白色,黑色的冷硬对比,空间极简又有品位。
主卧
Master BedRoom
主卧的无主灯设计与整套房相呼应,地面没有采用与客厅厨房相同的瓷砖,而是使用木地板。
原始结构图
平面效果图
案例信息
地址:
安普•翡丽云邸
面积:140
m²
全案设计与施工:三叶石装饰
主案设计:杨继连
主案设计师 杨继连
客服
消息
收藏
下载
最近




















