查看完整案例


收藏

下载
01
项目背景
background
使用面积:155㎡
常住人口:婚房2人+
房屋位置:福建·福州
装修花费:85万
设计时间:2018年
完工时间:2019年
本案的业主是一对新婚的建筑师夫妇。作为“同行”的托付,兴奋又紧张。他们很明确要的是美式轻奢的风格,空间上身为建筑师的他们对空间尺寸的认知就很精确,清楚原户型的利弊。作为室内设计师,更多是从家庭成员构成、居住行为等角度予以分析,提供解决方案。本案空间规划的重点是如何提高餐厅空间品质。专业的沟通&信任,我们很快就把平面确定了。风格审美方向,兼顾男女业主的不同审美偏好,一套案子尝试运用两个色系进行空间穿插,丰富空间层次。
02
设计分析
design analysis
△原始户型图
本案位于36层,北面临公园,有良好的景观视野,东面无建筑遮挡,采光良好。但南北向三进深的户型空间,加上剪力墙限制,空间格局限制大,各空间互动性弱,且中部空间存在采光问题。与业主沟通后,明确将北面的视野大空间留给客厅,厨房区域剪力墙限制,基本无法变动,自然餐厅的最佳位置只能处于户型的最中间。但
如何保证餐厅空间的品质(采光&互动性)成为本案的关键。
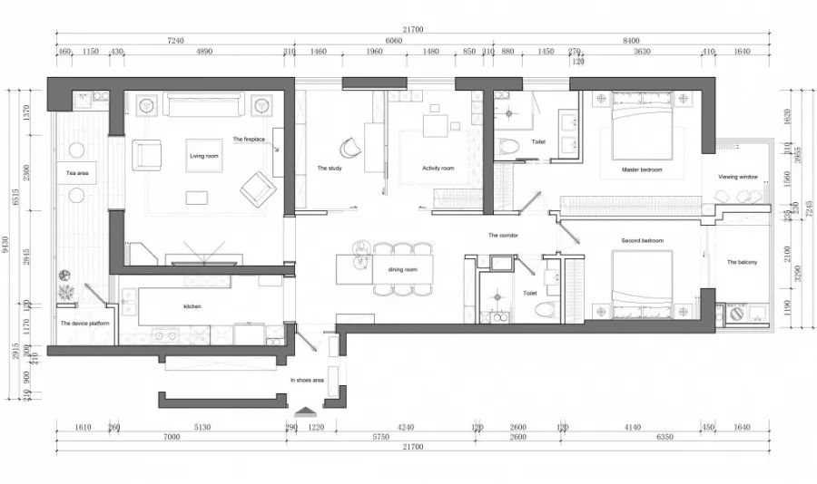
△设计户型图
基于业主常住人口与工作性质的需求,将中部东面区域设置成书房(办公)&儿童房(儿童活动室),以及餐厅,并
通过T形玻璃推拉门保证餐厅采光,形成可变的互动空间,为家提供更多的情感互动。
儿童房除了衣柜及吊柜,其他都为活动家具,随着宝宝的成长,变化不同的需求。家长用餐、办公的同时,儿童能在一眼看到的到地方自己玩耍。同时考虑儿童床的布局,预留开关插座,若有二胎,此房间可变化为儿童卧室。
03
实景照片
real photos
从书房望向餐厅,利用户外空间设置了玄关储物区,故户内玄关储物功能弱化,入户右侧利用边柜作为入户玄关柜,不破坏餐厅空间的整体感。
挂画后面是电表箱,底下的边柜作为二级入户玄关柜。
入户左侧,剪力墙限制的厨房空间,利用狭长厨房空间前端,形成衣帽区。
弧形门洞形成空间的分割,对面是冰箱及打扫物品归纳区(戴森充电收纳柜、扫地机器人的家)
- 客厅 -
不同墙色的空间,经过拱形门洞串联,丰富空间层次。剪力墙限制的客厅开口也很小,索性做成了弧形门洞,增添仪式感
客厅望向餐厅,浅驼色的墙色客厅,搭配墨绿色沙发椅,暖调子空间里点缀冷色调,同时与餐厅、卧室的绿色调子呼应。
地台划分出的茶室观景区域是全屋采光风景最好的地方,可坐、可躺,几个朋友、一壶茶、一个惬意的下午。
茶
室超高层的风景
- 厨房 -
剪力墙分割的厨房空间,刚好形成U型厨房,单边吊柜,另一边保证采光,用装饰性的小壁柜
- 餐厅 -
结合走道区域,几个门洞空间围合成了餐厅区域。
餐厅、书房、儿童活动房的关系。
T型推拉门打开,左侧是书房,右侧是儿童活动区,加强工作区、儿童活动区、餐桌区域的互动,同时保证餐厅采光。
家长用餐时,儿童能在一眼望的到的地方玩耍。
儿童房现在没有小孩,基本是空置所以没有拍照,希望里面的家具随着孩子的成长在增添变化。
T形推拉门关闭,各个空间相对独立,仍然保证餐厅采光
- 书房 -
- 卧室 -
卧室延续绿色调,运用更为浓重的墨绿色搭配橙色系,营造更为复古的美式轻奢调子
主卧的美式榻榻米空间,眺望城市景观,亦可作为育儿期的儿童床。
- 儿童房 -
作为新婚房,为将来的宝宝准备了专门的成长活动区(餐厅对面),所以次卧设计成标准卧室布局,作为偶尔客房及将来儿童卧室。
- 卫生间 -
白马赛克地面搭配爵士白墙砖,复古轻奢之感。美式黑色浴室柜搭配金色拉手龙头,增加精致
感。
原来
一直觉得装饰壁炉太不实用,很肤浅。
直到冬天常年在家办公,发现即使听着“啪~啪”的柴烧音乐声也会觉得温暖,那时就很渴望有个看着在燃烧的壁炉来骗过大脑。
在本案偌大的客厅,来个美式壁炉再合适不过了。
拍完完工照
(早就拍了,拖延症一直没发文
)
后几个月业主就入住了,最近收到了业主为自己家DIY的复刻台灯、落地灯的照片,真是太美了,感慨“家的样子,就是你的样子”。
我们为业主们提供硬装+软装设计服务,最后拍完工照,希望有个完整的作品呈现,但其实作为设计师,很不希望一屋子大大小小的物件都是设计师要求买买买的,特别是美式风格,需要许多小饰品去呈现效果。我们为屋主提供家宅胚子后,更希望随着时间推移,屋主们能加入自己的生活情趣,慢慢打磨成自己的“家”。
以下图片由屋主入住后提供
(感觉拍的比我好看多了
审美太在线了,这种业主给我来一打)
原来计划买的灯,业主复刻DIY做出来了!真是心灵手巧!没想到这波手工灯热情一发不可收拾,业主还在活动房增加了手工桌,复刻灯成为了业余爱好。
有兴趣的可以搜闲鱼号:
yayillo
04
Q&A
Welcome to choose
Q:
说说是什么给了你灵感,打造出现在这个作品的?
A:
第一次和业主沟通,他们就明确了美式轻奢的调子,但是具体美式也有很多的风格。
随着对业主的了解,发现女业主的衣着都是有点复古精致的方向,例如夏天丝光的面料,皮编的包包,以及复古精致的饰品。
莫名的觉得略复古的蓝绿色和女业主很契合,沟通后发现她也很喜欢绿色调,于是就有了方向。
Q:
你对这套作品最满意的地方在哪里,为什么?
A:
书房、儿童活动区域及餐厅的空间处理吧。
原来的户型格局公共区域缺少互动,餐厅空间偏暗,T型推拉门的运用解决了这两个问题。
Q:
在整个装修设计期间遇到最大的挑战是什么?
A:
男性女性的审美差异如何权衡,有时候觉得自己做设计太过中庸,不够极致。
Q:
回头再看这套房子,设计当中有什么遗憾的地方吗?
A:
女业主的接受度很大,可能当初再多点沟通会有更大的惊喜,还是保守了些。
Q:
为了满足客户的个性化需求,你在设计过程中做了哪些事情?
A:
基本都是满足业主的个性化需求了吧。
一些业主喜欢的元素:
黑胡桃鱼骨拼,墨绿色系等
客服
消息
收藏
下载
最近
























