查看完整案例

收藏

下载
suyuanfang
况倩倩
苏大人设计工作室设计师
长兴汤臣装饰设计工程有限公司主任设计师
奖项荣誉
AWARDS HONOR
2013 年自加入汤臣装饰设计工程有限公司
中国住宅设计效果大奖(2021-2022)别墅型优秀奖
SIDW.2021 年新锐设计奖
北斗
于荒野望天,星辰日月。何以明方向?北斗。
于迷茫观心,爱恨痴癫。何以定心神?吾家。
人生似一场旅程,安宅正路,成家立业。
人生是一场归途,倦鸟归巢,落叶归根。
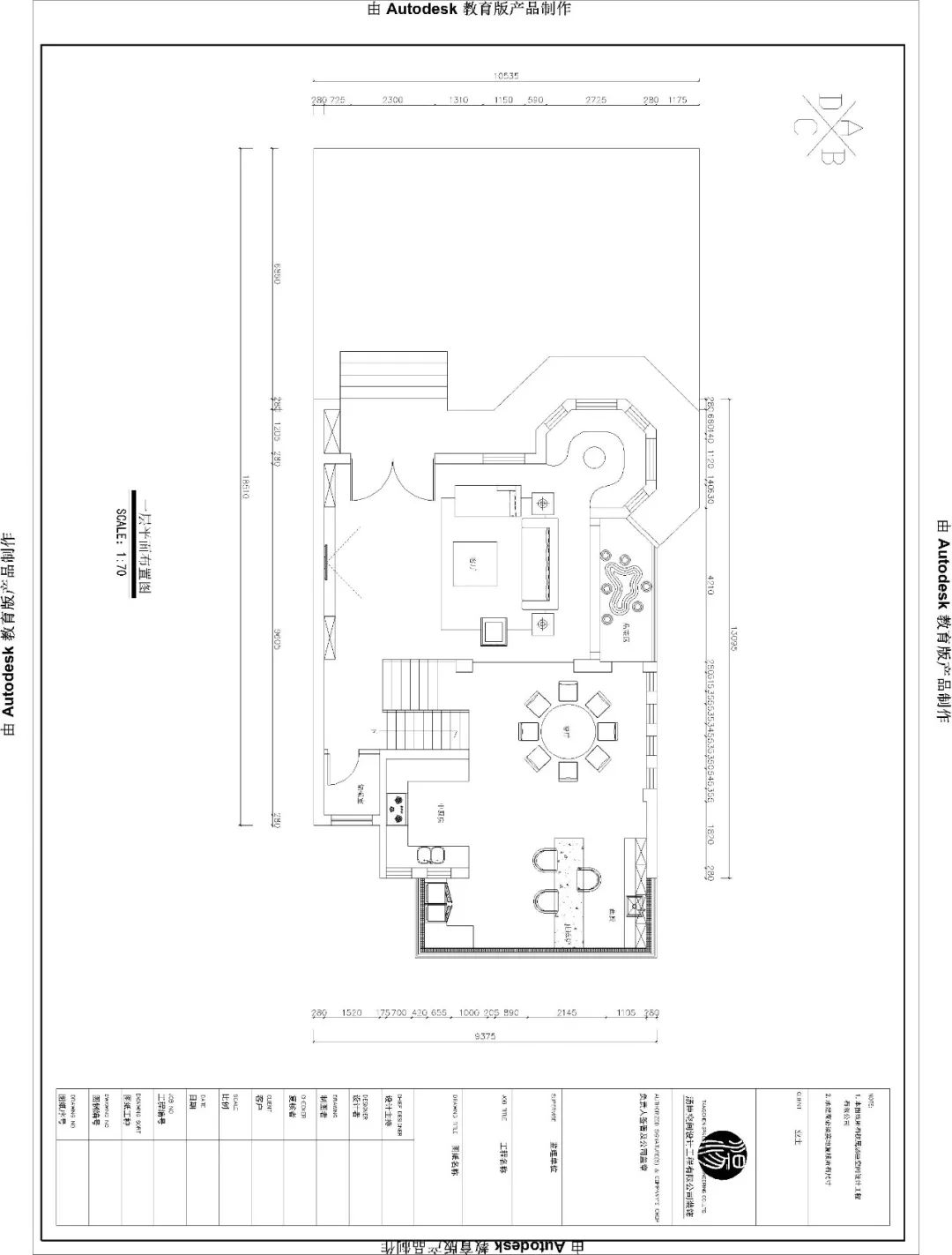
▼ 平面布置图
客厅 Living room 灰与蓝的沉静,皮革平衡温度;金与黑的神秘,摆件提升格调;轻柔的纱幔,摇曳着,整个空间不在是刻板的规圆矩方。
餐厅 Dining room 顺其自然的空间隔断,简餐聚餐皆可满足。沉稳气息蔓延至此,加入烟火气更显温馨。
楼梯 Stairs 中规中矩的表达,犹如一种不可颠覆的生活习惯。楼梯根据原结构虽是水到渠成的设置,却在无形中紧密了动线关系,整合了琐碎的布局感。
书房 Studyroom 透明隔断,保证了光线的同时也确保了私密性,同时缓解了局促感,书写区,查阅区,存储区井然有序。
卧室
Bedroom
门与温润的木饰面融为一体,原木色与灰色铺垫出细腻的感受,沉稳,安宁,是给予内心的庇佑。
向下滑动查看
几何切割的背景硬包,半透明的衣柜门,星空做顶的天花,未来感扑面而来。
卫生间 Washroom 简洁利落的空间,绝对私密的场所,这一刻我想做马桶上的思想家。
地下室 Basement 北斗七星依常在,欢歌笑语在此间。
【项目信息】
项目名称|五丰福地|356㎡
室内设计|汤臣装饰
项目地点|浙江湖州长兴
设计团队|苏远芳 况倩倩
133-2572-9900
汤臣装饰
浙江省湖州市长兴县龙山街道
明珠北路 1265 号
长按扫码关注哦~
设计日常新鲜放送
「特别提醒」
Special reminder
©本文图片归设计师苏远芳所有。
如非授权,禁转、禁商用!
如果您喜欢【苏大人】,可以“分享”给身边的朋友们。
客服
消息
收藏
下载
最近



















