查看完整案例

收藏

下载
设计之初,客户说:我不愿把过程仅仅当成装修工程,希望设计师能对美好事物的专注与追求。内敛也表达了你对生活、对世界的看法。于是,这便是我对郑州的记忆。
PROJECTS/郑州·别墅
项目名称|無·界
Project Name | Wu jie
项目地点|中国·郑州
Project Location | Zhengzhou, China
项目类型|私宅·别墅
Project Type | Private Residence
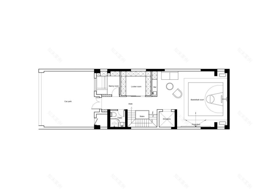
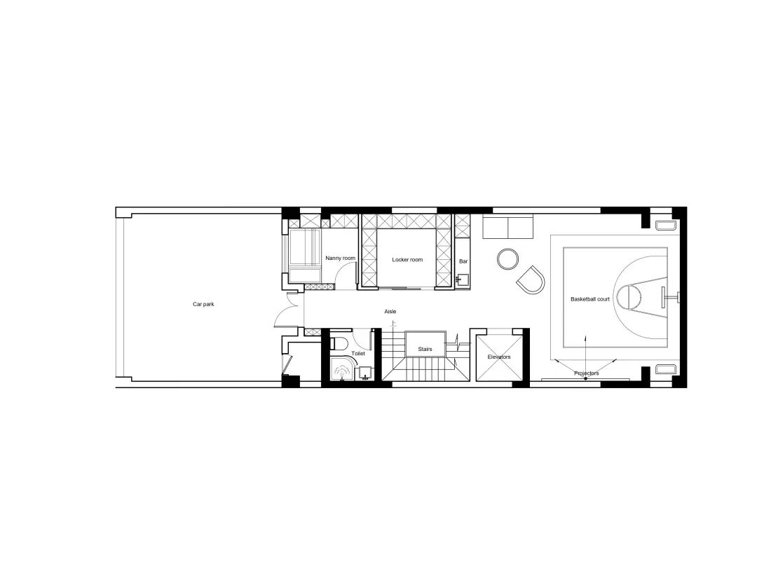
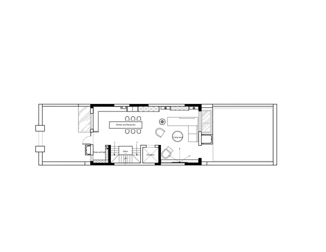
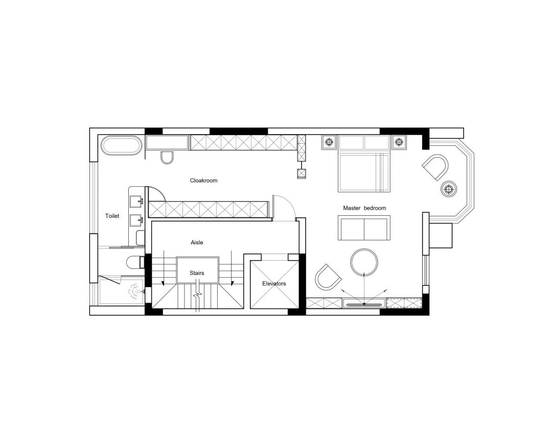
项目面积|500㎡
Project area | 500 square meters
设计主创|山乙建设
Designer | ShanYi
More
—
“山有小口,仿佛若有光”
“复行数十步,阔然开朗”
带着现代城市的印记,探寻生活的另一种方式
—
"The mountain has a small mouth, as if there is light"
"Repeat dozens of steps, open and cheerful"
With the imprint of a modern city
—
在这里,空间给人时髦轻快,年轻力十足的力量感。
而停下脚步,将日常与时光交织,细腻富有温度,抚慰人心。
生活包容生万象,万象间藏着鲜活的日子。
而经过时间的沉淀,空间也自然地呈现着最舒服的样子,以静默的方式表达着主人本身的气质与喜好。
—
Here, the space gives people a sense of chic lightness, youthful power.
Stop and interweave everyday life with time, delicate and warm, soothing.
Life is inclusive of all things, and there are living days hidden in all things.
And the precipitation of time, the space is also naturally the most comfortable, expressing the owner’s own temperament and preferences in a silent way.
—
步入楼梯间,设计通过纯色刻画出立体空间的明净透亮。
软装的艺术表达给予居所无限的想象,用心勾勒出所向往的梦和远方。
—
Stepping into the stairwell, the design depicts the clarity and transparency of the three-dimensional space through solid colors.
The artistic expression of soft decoration gives the residence unlimited imagination, and carefully outlines the dreams and distant places that it yearns for.
—
硬装方面尽量从简,从软装和材料选择搭配上来实现想要的效果。
细节质感的设计选择上,融入法式元素,简约的同时不显得平庸。
一束束透过窗帘跑进来的阳光调皮可爱,照在地板上,温暖又惬意。
—
In terms of hard decoration, try to simplify as much as possible, and achieve the desired effect from the selection of soft decoration and materials.
In the design choice of detail texture, French elements are integrated to increase the sense of sophistication, and it is simple without looking mediocre.
Beams of sunlight running in through the curtains are mischievous and cute, shining on the floor, warm and pleasant.
—
卧室直入心扉的是设计温度的包裹。
这份漫延舒宁的心安。
汇聚于此便是家的模样。
—
The bedroom is wrapped in design temperature.
This peace of mind that spreads comfort.
Gathered here, this is what a home looks like.
—
蓝色是不可或缺的童话颜色
极具跳跃性的趣味笔触构建出孩子心中的梦幻城堡
元素的驰骋演绎和色彩的沉淀安静
在不经意间触摸孩子心底的童趣
—
Blue is an indispensable fairy tale color
Jumpy and playful brushstrokes create the dream castle in children’s hearts
The galloping interpretation of elements and the precipitation of colors are quiet
Inadvertently touch the childlike fun of the child’s heart
山乙集团生根于北京,发展至长沙,拓展于各地。集团旗下共有 6 大设计品牌,设计遍布全球 78 个城市。
山乙建设:更懂年轻人的设计品牌
山乙山合:小众经典出品机构
山乙山全:致力功能,美学造物
山工木品:居所能居,美所能美
东久饰:坚持原创功能软装
供销设:生活功能美学研究所
长沙总部(凯乐微谷商务中心)占地 3000 平方米 4A 写字楼;里约荟店占地 800 平方米 4A 写字楼;旭辉国际广场店占地 600 平方米 4A 写字楼。
集团共有 200+优秀设计力量;40 名专业工程管理人员;30 名软装美学专家,为您提供一站式全案设计服务。
服务板块:设计|施工|软装|全案落地|毛坯|精装|公装|旧房改造
“开发商优选合作机构”
合作企业:兴盛优选、星河置业、华泉置业、长房时代、潭房时代、建发央著等
山乙建设
山乙 TEAM
客服
消息
收藏
下载
最近















































