查看完整案例


收藏

下载
熹所 :(
Interior
Deisgn
) | 全案设计
107㎡ :(
Built-up
Area
) | 建筑面积
四室一厅 : (
Unit Structure
) | 户型结构
现代北欧 : (
Design Style
) | 设计风格
盈基大厦 :
(
Project Address
)
| 工程地址
-
用有限空间,做无限设计
-
屋主是一对非常幽默的夫妻,男主是烧钱又逗比的极客大叔,女主是爱玩手办,爱看书的税务女王,夫妻选择了交通相对便利,方便孩子上学的老房子,但是又对房子设计不满意,那怎么办呢?
一个字,“改”!看看熹所设计团队如何化腐朽为神奇!
Ⅰ
原始空间vs改造后
Ⅰ
Original space vs. After reconstruction
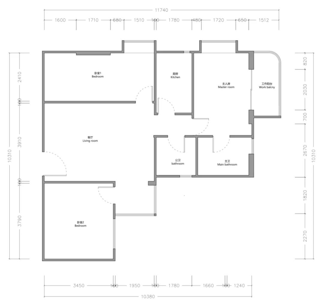
原始空间三室一厅
客厅狭窄,无充足光线
卧室狭长,空间利用不合理
收纳空间不足
屋主想要独立衣帽间,主卫占用空间过大
厨房闭塞
▸
原始户型
Original Layout
▸
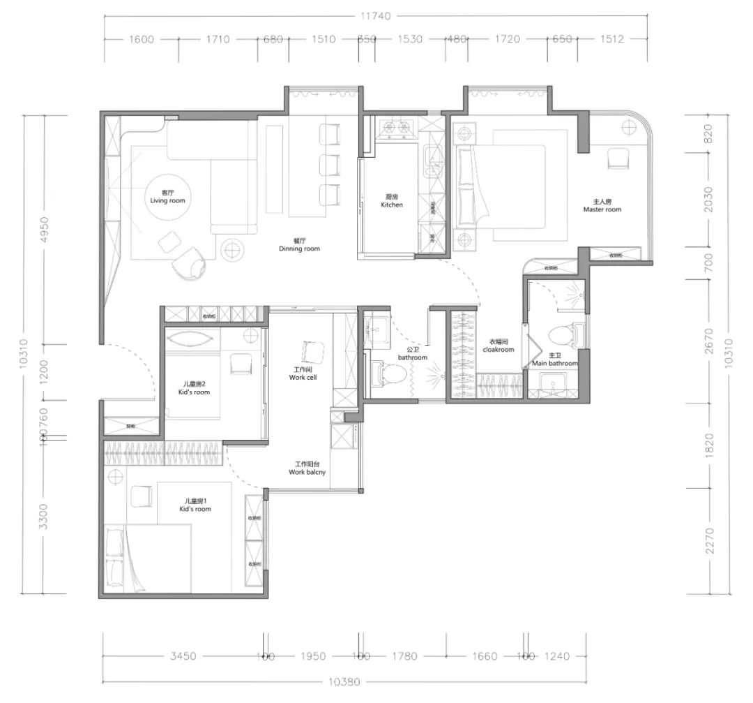
改造后户型
Layout reforming
原始三室一厅转变为四室一厅
打通原始客厅旁小卧室,扩大客厅面积,增加开阔感
打通主卧阳台,扩大主卧空间
工作阳台转变为卧室空间,增加收纳衣柜
两间次卧改造成两间温馨儿童房
将主卫一分为二,摇身变出精致衣帽间
厨房利用大面积玻璃隔断,制造通透感
Ⅰ
空间照片
Ⅰ
Space photograph
▸
客厅
Living room
打通小卧室后,客厅的空间范围得到了延展,加以线条设计使客厅空间更富有现代感。
智能灯光系统配合祖母绿、高级灰等装饰品以及充满生机的小摆件,使空间更具张力与通透性。让夫妻俩回家后,在舒适的客厅享受欢乐悠闲的亲子时光。
▸
餐厅
Dining room
温馨的小家,装修重点不止是客厅,厨房餐厅也是重点之一,利用大面积的玻璃进行隔断,巧妙的处理使得空间在视觉上得以延伸,变得灵动。
热爱手办的女主将手办摆放在客厅一处的书架上。
▸
主人房
Master room
每个女生都梦想拥有一个属于自己衣帽间,房屋女主身为都市女性,因为没有衣帽间感到遗憾,于是,设计师将原本空间过大的主卧卫生间一分为二,为女主打造出精致的衣帽间。
简洁的飘窗,干净的挂画,在每一个阳光明媚的清晨,拉开窗帘,阳光洒满房间,开启元气满满的每一天。
▸
主卫
Master washroom
▸
书房
Study room
“书中自有颜如玉,书中自有黄金屋”一个高品质的家,书房必不可少。
▸
儿童房
Kid's room
(A / B)
A
B
快乐是什么?对于孩子来说,快乐似天空的繁星,似乌云下的雨珠,似大海中的鱼儿。拥有一间充满快乐的自己的小天地,估计是每个孩子的梦想。
利用大面积的落地窗隔断儿童房与书房,清新的色彩搭配,让孩子自由自在的在自己的小天地玩耍。
.
.
.
从剑似简
玖龙台
几米阳光
光大花园
-END-
客服
消息
收藏
下载
最近








































