查看完整案例


收藏

下载
WuHu. 2021. LUBENDESIGN
无穷般若心自在,语默动静体自然
活得快乐的最重要因素是人生有事干、有人可去爱,以及生命中有所冀望。——约瑟夫·艾迪生
The most important factors of living happily are having something to do in life, having someone to love, and having hope in life—— Joseph Addison
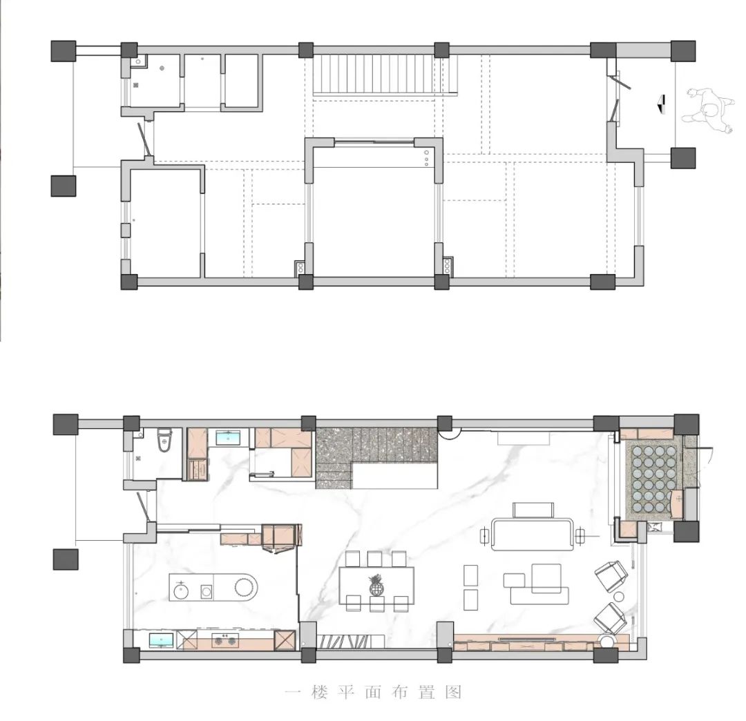
关于设计:这是一套为了孩子陪伴以及改善三代人居住环境的房子,交互的餐厅厨房空间是一家人重要的活动区域。一层整体空间包括家具以意式简约为基调,大面积白辅以高级色彩点缀给以孩童无限遐想空间。
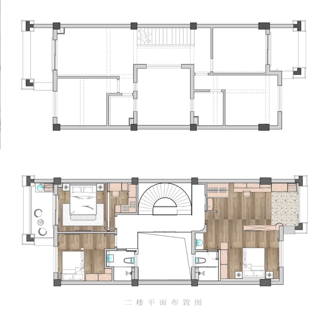
二层是孩子房和父母房区域,每个都有自己独立的风格偏好互不干扰。
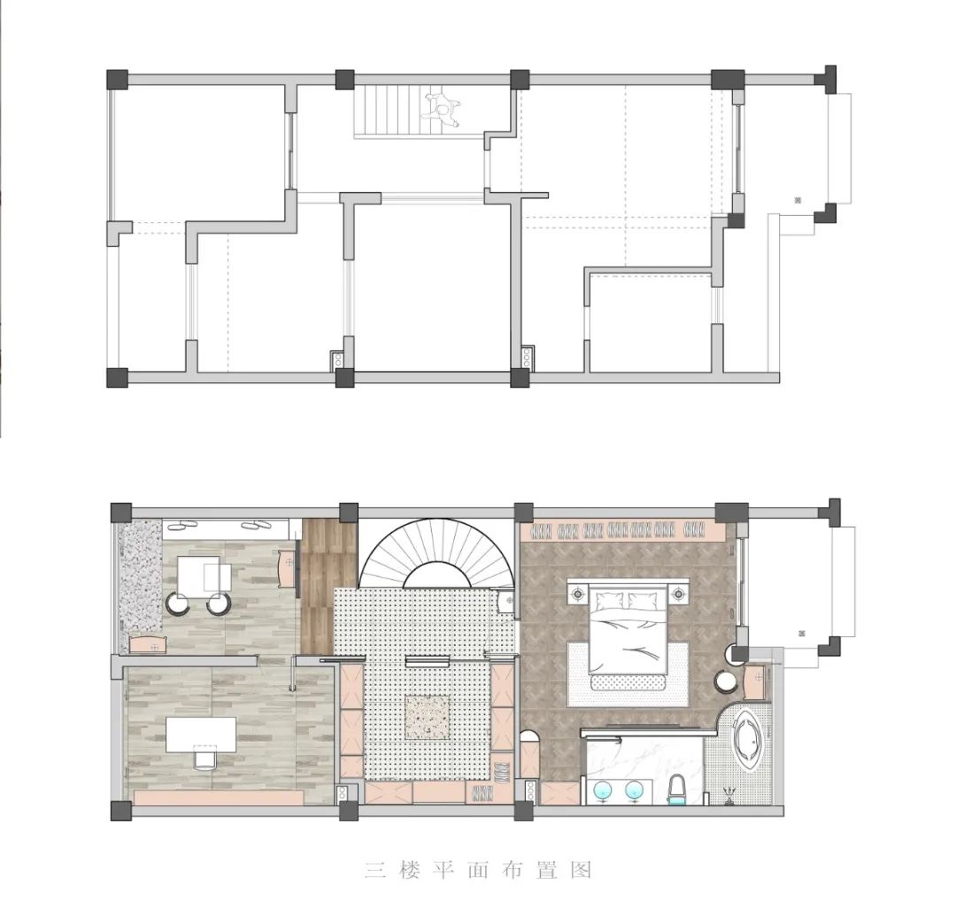
三层是主卧套间,以粉色和白色为主题给予屋主保持初心的浪漫情怀。
客厅
-LIVING ROOM
客餐厅和过道没有在固定形式的分割,而是通过色彩对比和立面造型自然的予以区分;电视背景的镂空和色彩对比增加了空间立体延展;过道和旋转楼梯保持一体白色,弱化楼梯的突兀感同时通过软装搭配自成静怡感。
▶
餐厅
-DINING ROOM
餐厅改变了原有的格局,不再是原先局促的空间,成了一层的核心的 C 位;挑高的结构空间给与设计师充分的发挥空间,立面墙特意为孩子设计的色彩组合,还是俯视下的华美的餐桌。厨房的立体四面操作空间适合一家子做大餐,与餐厅的开放式互通格局,最好的陪伴就是一起做每一顿温馨的饭菜。
▶ 厨房 -KITCHEN ROOM
▶ 楼梯
-KITCHEN ROOM
楼梯不可避免的占据家的中心位置,旋转楼梯的设计增加了满满的仪式感,白色的扶手和白色吊灯不自觉有了一丝仙的灵动。
▶主卧
- MASTERBEDROOM
主卧以白色为主搭配粉色营造空间隐隐的甜蜜感,量身定制的精致的软装物件都有独特的格调。独立双台盆和浴缸使用也是超级享受。
▶儿童房-CHILDREN’S ROOM
主卧儿童房用了不同颜色的跳色,增加了空间的活泼灵动;在灯具、柜体等造型上凸显了童年的乐趣。
▶ 父母房
-PARENT’S BEDROOM
父母房还是以稳重、低饱和度的材质颜色装饰,有独立的衣帽间和阳台,实用和休闲两不误。
▶休闲室
-LEISURE ROOM
负一层专门为孩子打造的娱乐空间,跳跃的空间活泼自然,还有专门的酒吧台和观影室,也是大人一起聚会的空间。
▶
户型图-LAYOUT
左右滑动查看更多
▶
项目信息-PROJECT INFO
Location | 芜湖·柏庄丽城
Design company |禄本设计
Design team | TT / 家家 / 波波 / 文涛 / 文娟
Area| 240m²
Photographer| 晟苏建筑摄影
Main materials| 本杰明摩尔乳胶漆/漆彩嘉艺术涂料/巴黎世家瓷砖/鑫迪木门/书香门第地板/禄本软装家具定制/禄本灯具定制
·
·
·
·
·
·
·
·
·
- 往 期 精 彩 -
荣誉奖项/ Honorary Award
▶ 2020
PChouse Award 私宅设计“年度 100 位杰出私宅设计师/设计机构”“城市榜无锡/合肥/芜湖 TOP10”
▶ 2020
芒果奖&十间坊优胜奖
▶ 2020
好好住营造家奖华东区 TOP150
▶ 2019
第九届筑巢奖普通户型优秀奖
▶ 2019
太平洋家居网 PChouse Award 私宅设计“年度 100 位杰出私宅设计师/设计机构”“城市榜无锡/合肥/芜湖 TOP10”
▶ 2019
芒果奖&十间坊优胜奖及创意奖
▶ 2019
金住奖-中国(芜湖)十大居住空间设计师
▶ 2019
M+星设计芜湖 TOP10
▶ 2018
设计本年度最具创新奖
芜湖禄本家居设计有限公司
客服微电:153-0963-9560
地址:安徽芜湖镜湖区万达广场一期三号写字楼 715-718 室
点击下方“阅读原文”查看禄本设计作品集
客服
消息
收藏
下载
最近























































