查看完整案例

收藏

下载
-静谧的色调充满质朴与温暖
项目信息
项目类别:全案设计
常出人口:X 先生
职业:原画师
地址:广州市天河区禺东西路
面积:113m²
客户需求:
客厅:需要满墙展示柜,整体空间需要宽敞,大气
餐厨空间:做饭时间少,希望中西厨区分,接受开放式厨房
卧室:希望有一个书房结合卫生间功能的卧室
卫生间:希望以灰色调为主,高级一点
阳台:把小阳台扩进客厅,显得客厅大一些
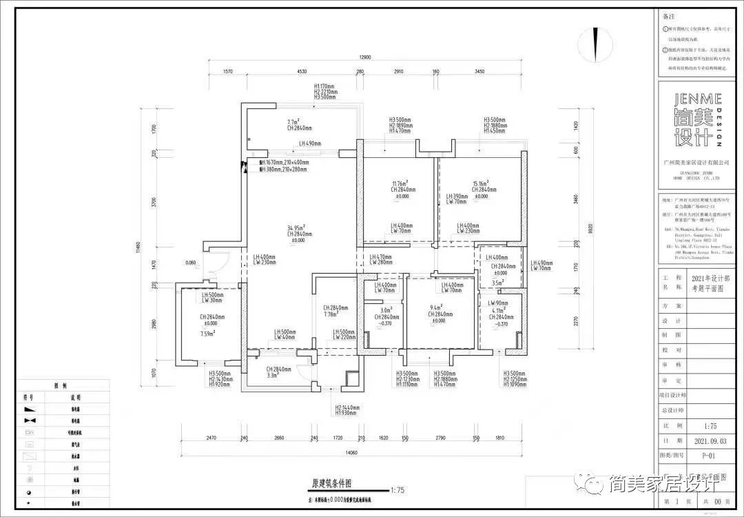
- 原始平面图 -
- 平面图 -
温暖的生活,追踪到本心;三五知己,家人健康。经历了这次疫情,我们待在家的时间更长了,更久了,静下心来,才明白家对我们的意义。
- 玄关 -
入户玄关采用深色的木饰面,用以门套装饰与分割处理空间形态,再加以温和的木色墙面结合简约深色的水泥漆地面,尽显温和与质朴。
入户玄关的对面直线与曲线的结合
木调与挂画的结合
艺术融入生活
- 衣帽间 -
阳光与绿植唤醒了原本的安静,在空间中抚慰静谧的时光,安享时光给予的惬意。线条的漆感结合抬空的矮柜,玻璃柜的呼吸感,装饰与功能并存。
- 客餐厅 -
客厅沿用温和的木色和水泥色为基调,以简洁的线条分割出宽敞舒适的空间形态。回型动线让空间有了呼吸感,灵动,大气,又不失温暖。
天花采用弧形吊顶,配用拱门元素的出风口元素点缀。
用线条形式的高柜,既呈现了柜体的装饰美感,又很好的融入了天花的造型;
电视背景选用抬空的矮柜形式延申至休闲区,简约又高级。
- 原阳台扩进至客餐厅,整体又统一。
- 抬高的处理方式又让休闲区的空间别出心裁。
- 浪漫且随性,惬意又舒心。
- 餐厅 -
餐厅采用了开放式对称处理结合,沿用客厅的回型动线。在木感的色调下,融入低调的设计,营造更高级,更温暖的环境。
- 餐桌兼具书桌的功能,线性灯与吊灯相结合,增强了空间的互动性,活跃感。
- 堆成的操作台面,将中西厨功能作区分。
- 透明的酒柜结合金属与木色的墙漆。
- 过道 -
摒弃了华丽浮躁的设计
别致,前卫的材质选择
使狭窄,迂回的过道空间浅藏着时光的印记
- 金属的贴面,弧形的天花,线性灯的墙面设计以及暗藏推拉门的结合,简约又高级。
- 花砖的墙面搭配上灯带的设计,独树一帜。
- 主卧
- 进入主卧
弧形的镜子结合石材的台面加以金属的柜体
拱面的造型映入眼帘
通透的柜体让空间不再压抑
- 茶玻与木面的结合
- 金属的框架感,复古的木地板
- 简单的软装陈设
- 打造一个静谧,透着质朴温暖的空间
- 书房 -
开放格充满竖向感,金属、灯带、直线,洁净又干练。
长虹玻璃的书柜加以挑空的书桌,弧线出现在墙身天花,使得整个空间富有艺术感又充满感染力。
- 卫生间 -
采用清水泥板与同色地砖
灰色的高级感满满
- 阳台 -
圆弧的天花,通铺的水泥自流平
质感尽显
- 设计师 -
家既要承担日常生活的细碎,更需要承载往后生活的烂漫
简美设计师 郭佳豪
- 部分参与空间设计项目 -
合景睿峰丨私宅设计
广粤尊府丨私宅设计
翡丽酒店丨公寓设计
万科四季花城丨叠层别墅设计
金山谷丨独栋别墅设计
万科中心南塔丨办公楼设计
客服
消息
收藏
下载
最近

































